ISTRA, ROVINJ - Komforan stan u novogradnji
Rovinjsko Selo, Rovinj
240.000€
3 692 €/m2
Tip
Stan
Površina
65 m2
Struktura
3
Detalji
- Tip
- Stan
- Struktura
- 3
- Cijena
- 240.000€
- Površina
- 65 m2 (3 692 €/m2)
- Kat
- 1
- Grijanje
- Podno grijanje
- Terasa
- Da
- Udaljenost od mora
- 9000m
- Ažuriran
- 06.10.2025
- ID
- 92534
Opis
ISTRA, ROVINJ - Komforan stan u novogradnji
Najatraktivniji pitoreskni istarski grad Rovinj, sa starogradskom jezgrom pod UNESCO-ovom zaštitom, vječna je inspiracija romantičara i umjetnika i jedna od najrazvijenijih turističkih destinacija u Hrvatskoj.
Smješten je na zapadnoj obali Istre i krasi ga izrazito razveden arhipelag sa čak 14 otočića i 6 hridi duž 67 kilometara priobalja koje je zaštićena prirodna baština.
Prekrasna razvedena obala, specifična blaga mediteranska mikroklima, izvrsna gastronomska ponuda, cjelogodišnja kulturna događanja i simpatični i ljubazni domaćini čine ovo mjestašce čarobnim.
U okolici grada Rovinja, na prodaju je komforan stan u novogradnji.
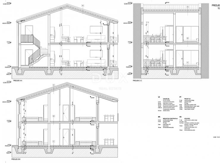
Poluugrađena obiteljska građevina bezvremenskog dizajna s dvije stambene jedinice se oblikovno i koloristički uklapa u naselje i krajolik i proteže se kroz prizemlje i prvi kat.
U izgradnji se koriste trajni i pouzdani materijali koji jamče dugoročno zadovoljstvo i sigurnost stanovanja a planiranje prostora svake etaže detaljno je provedeno što je rezultiralo kvalitetnim rasporedom prostorija čime je zajamčena potpuna iskoristivost prostora.
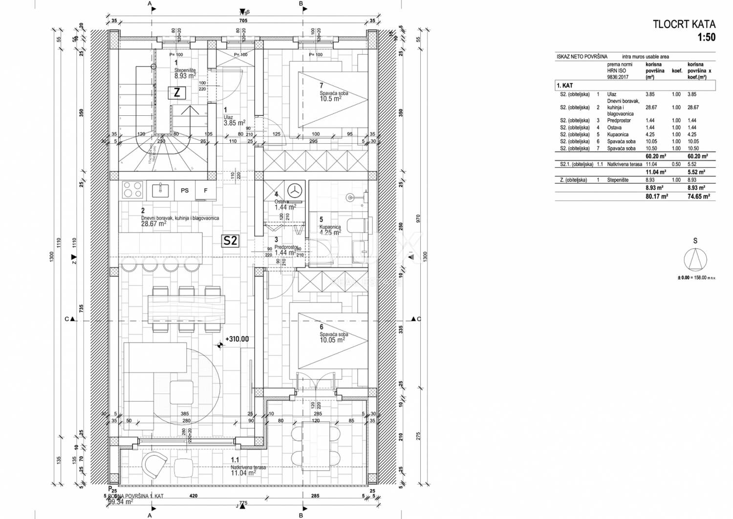
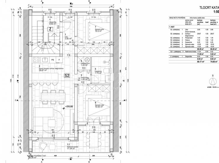
Predmet prodaje je stan koji se nalazi na prvom katu građevine.
Neto kvadratura s obračunatim koeficijentima iznosi 65,72 m² dok neto kvadratura bez obračunatog koeficijenta iznosi 71,24 m² a uključuje stambeni dio površine 60,20 m² i natkrivenu terasu površine 11,04 m².
Sastoji se od dvije spavaće sobe, kupaonice, o
Kontakt info

- Agencija
-
DUX NEKRETNINE
- Kontakt osoba
- Dux Nekretnine
- Telefon 1
- + 385 51 518... Prikaži broj
- Telefon 2
- + 385 91 480 ... Prikaži broj
- Adresa
- Tizianova 8
- Rijeka, Hrvatska
Slične nekretnine

ISTRA, ROVINJ - Stan u novogradnji
- 240.000€ 65 m2

ISTRA, ROVINJ - Stan u prizemlju novogradnje
- 240.000€ 65 m2

ISTRA, ROVINJ - Dvosoban stan u novogradnji
- 240.000€ 65 m2

ISTRA, ROVINJ - Komforan stan u prizemlju
- 240.000€ 65 m2

ISTRA, ROVINJ - Dvosoban stan u novogradnji
- 240.000€ 65 m2

ISTRA, ROVINJ - Stan u prizemlju novogradnje
- 240.000€ 65 m2

ISTRA, ROVINJ - Dvosoban stan u prizemlju novogradnje
- 240.000€ 65 m2

Rovinjsko selo - prodaja stana na mirnoj lokaciji
- 218.000€ 47 m2

ISTRA, ROVINJ - Trosoban stan u novogradnji
- 292.000€ 84 m2