BILICE- ZEMLJIŠTE S GRAĐ. DOZVOLOM ZA DVIJE LUKSUZNE VILLE
Bilice, Šibenik
280.000€
200 €/m2
Tip
Zemljiste
Površina
1400 m2
Detalji
- Tip
- Zemljiste
- Cijena
- 280.000€
- Površina
- 1400 m2 (200 €/m2)
- Ažuriran
- 03.10.2025
- ID
- 92205
Opis
Ekskluzivno građevinsko zemljište s pogledom na more – Bilice kraj Šibenika
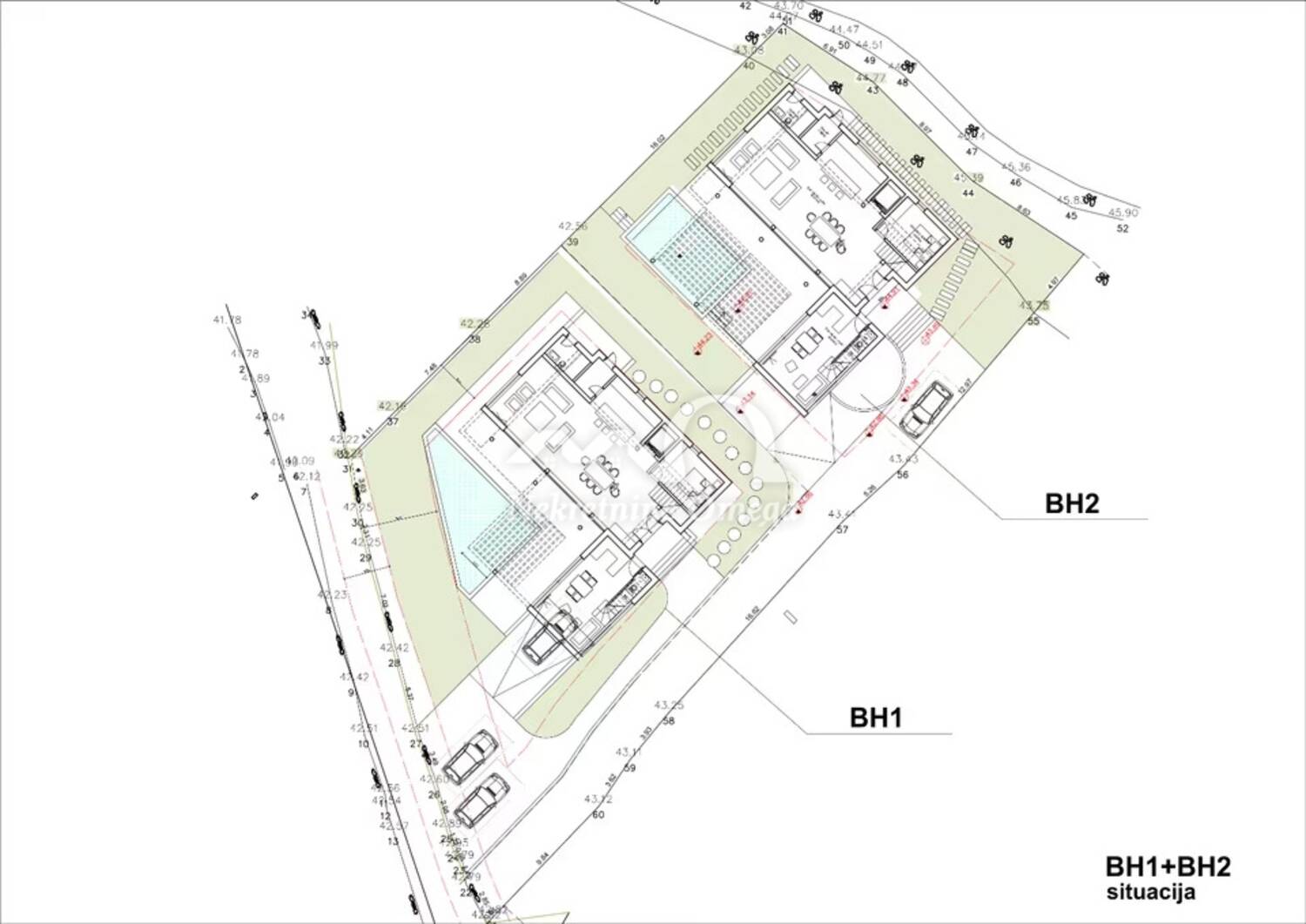
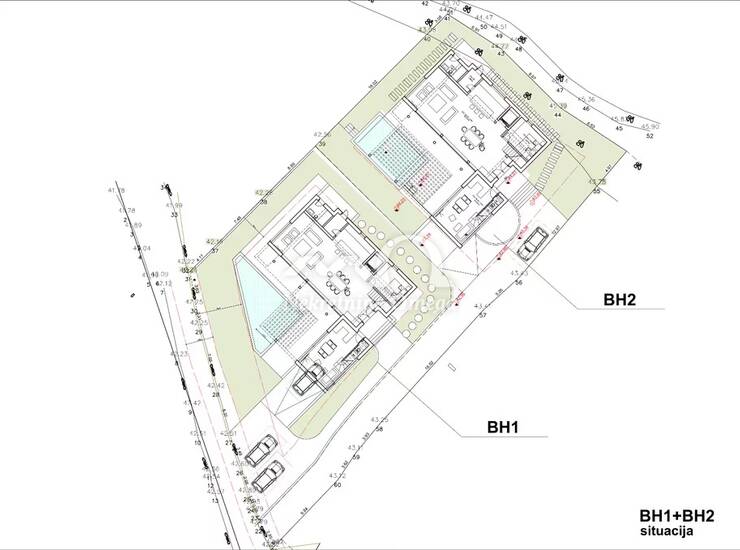
Na prodaju je građevinsko zemljište površine 1.400 m² u mirnom dijelu Bilica, svega nekoliko minuta od mora i povijesnog grada Šibenika. Posebna vrijednost ove ponude je odobren projekt i građevinska dozvola za gradnju dvije moderne luksuzne vile s panoramskim pogledom na more, bazenom, dizalom i garažom.
Osnovne informacije
Površina zemljišta: 1.400 m²
Lokacija: Bilice kraj Šibenika
Status: građevinsko zemljište s dozvolom
Mogućnost parcelacije na 2 odvojene čestice
Vlastiti pristupni put i svi priključci u blizini
Cijena: 280.000 € (uključuje projektnu dokumentaciju i građevinsku dozvolu)
Projekt luksuznih vila
Dvije samostojeće dizajnerske vile
Panoramski pogled na more i prirodu
Privatni bazen, garaža i dizalo u svakoj vili
Vrhunska arhitektura i moderna funkcionalnost
Vizualizacije projekta dostupne na zahtjev
Prednosti lokacije
Mirno okruženje u prirodi
Samo nekoliko minuta do Jadranske obale i centra Šibenika
Blizina plaža, marina, restorana i turističkih sadržaja
Idealno za gradnju luksuznih kuća za odmor ili turističkih vila s visokim potencijalom prihoda
ID KOD AGENCIJE: TBI-001
Paolo Miškić
Viši savjetnik
Mob: + 385 (0)95 527 ... Prikaži broj
Tel: + 385 (0)95 527 ... Prikaži broj
E-mail: paolo@nekretnine-omega.hr
www.nekretnine-omega.hr
Kontakt info

- Agencija
-
Nekretnine Omega
- Kontakt osoba
- Paolo Miškić
- Telefon 1
- 095527... Prikaži broj
- Telefon 2
- 091160... Prikaži broj
- Adresa
- Put Male Gospe 2
- Tribunj
- Šibenik, Hrvatska
Slične nekretnine

ŠIBENIK, BILICE - Građevinsko zemljište s pogledom na more - 2639 m2
- 395.850€ 2639 m2

ŠIBENIK, BILICE - Građevinsko zemljište
- 87.780€ 798 m2