ISTRA, TAR - 3SS+DB stan s terasom, smješten u visoko kvalitetnoj novogradnji
Tar, Tar-Vabriga
328.700€
3 572 €/m2
Tip
Stan
Površina
92 m2
Struktura
4
Detalji
- Tip
- Stan
- Struktura
- 4
- Cijena
- 328.700€
- Površina
- 92 m2 (3 572 €/m2)
- Kat
- 2
- Grijanje
- Sustav grijanja, klimatizacije i ventilacije
- Terasa
- Da
- Udaljenost od mora
- 350m
- Ažuriran
- 06.04.2026
- ID
- 92526
Opis
ISTRA, TAR – Ekskluzivan 3SS+DB stan na 1. katu kvalitetne novogradnje na svega 350m od mora
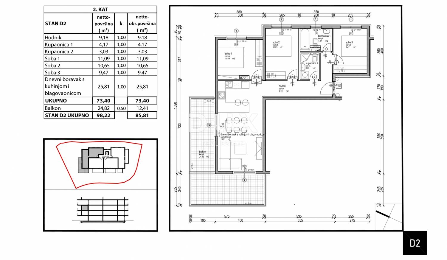
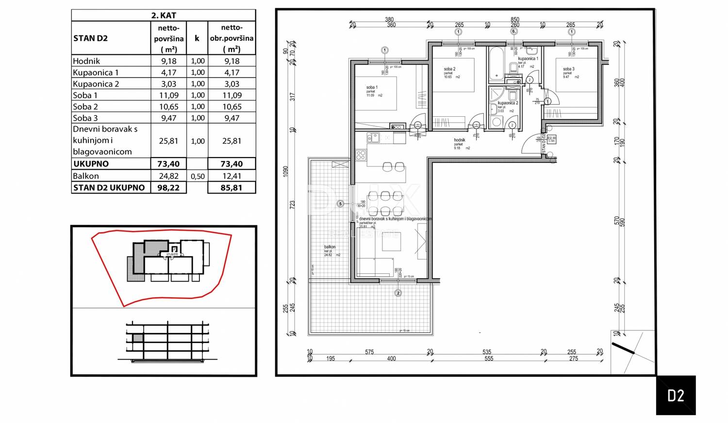
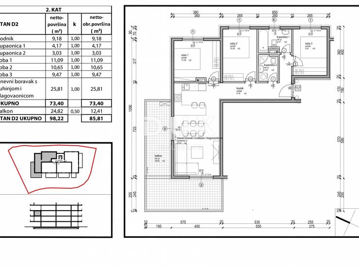
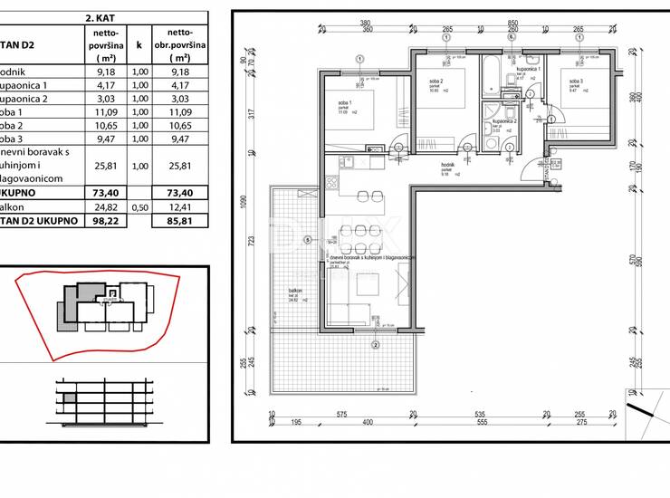
U mirnom naselju Tara, na svega 350 m od mora i desetak minuta šetnje do uređenih plaža, smjestila se moderna novogradnja vrhunske kvalitete s ukupno 13 stanova. Na samom drugom katu zgrade smješten je ovaj jedinstveni stan koji se prostire na čak 85,81 m² stambenog prostora i predstavlja spoj luksuza, komfora i vrhunskog pogleda.
OPIS STANA
Stan D2 prostire se na neto površini od 85,81 m². Raspored prostorija osmišljen je tako da maksimizira prostranost i prirodno svjetlo:
* Ulazno predvorje s predviđenim prostorom za garderobu
* Open space dnevni prostor – moderno koncipiran prostor koji objedinjuje dnevni boravak, kuhinju i blagovaonicu u jedno.
* Prostrana terasa – koja se prostire uz kuhinju i blagovaonicu, idealna za druženja i opuštanje s prijateljima i obitelji.
* Zatim i tri komotne spavaće sobe, te dvije kupaonice.
TEHNIČKE KARAKTERISTIKE ZGRADE - Zgrada je projektirana i građena prema najvišim građevinskim i energetskim standardima:
* Protupotresna konstrukcija
* Troslojna PVC stolarija
* Bešumne kanalizacijske instalacije
* Elektro podno grijanje u svim prostorijama stana
* Klima uređaji u svakoj prostoriji
* Kvalitetna 10 cm fasadna izolacija (stiropor i vuna)
* Lift u zgradi
* Protuprovalna vrata u stanovima
* Vrhunski sustav vodovoda (njemačke TC cijevi)
DODATNO
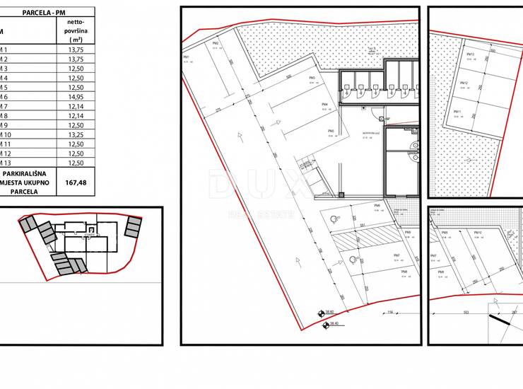
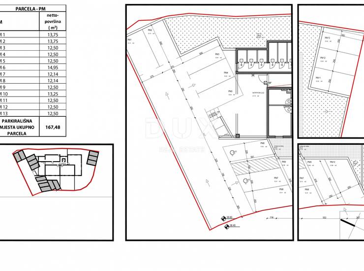
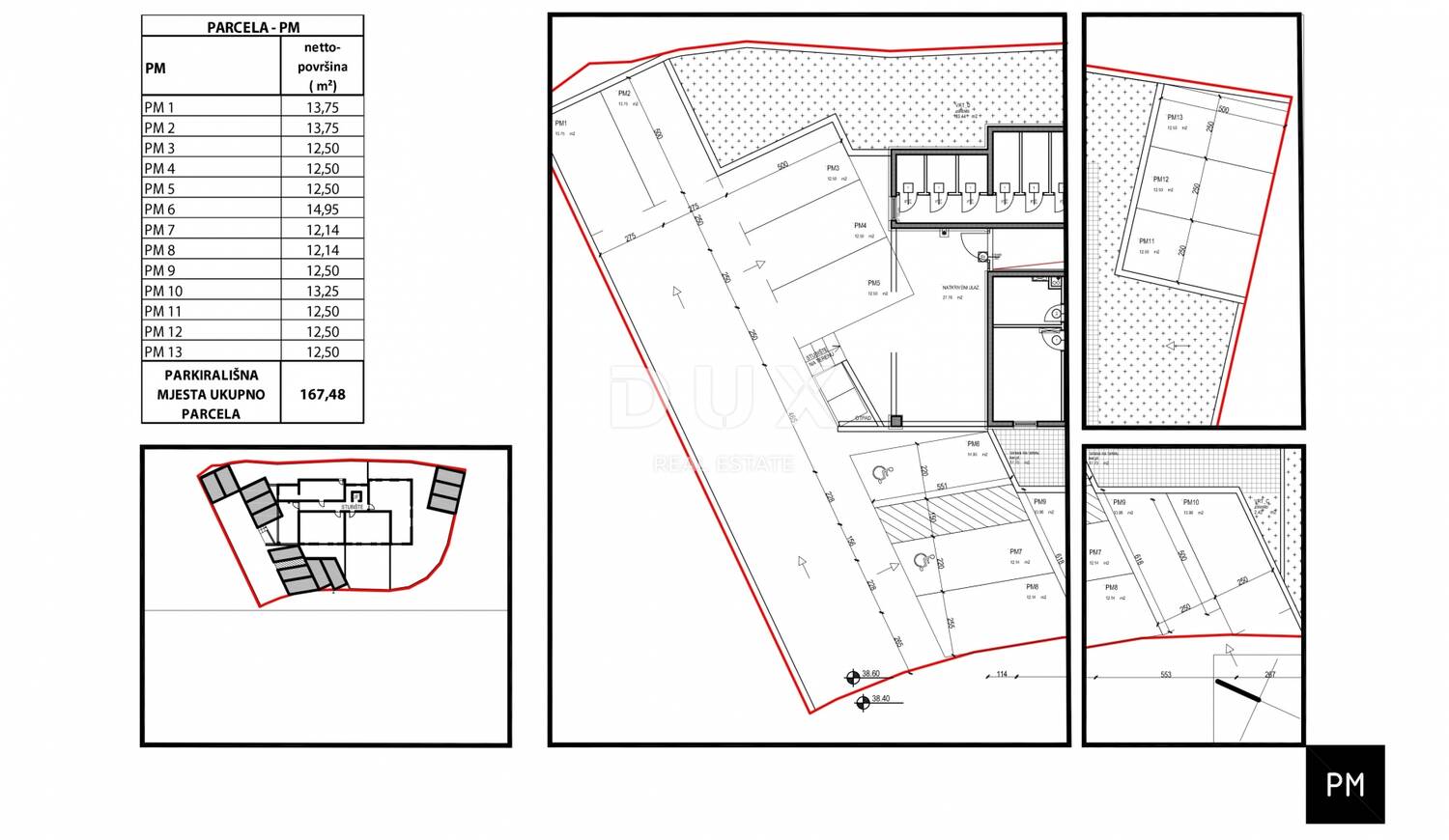
* Stanu pripadaju dva vlastita parkirna mjesta, uključena u cijenu
Kontakt info
- Agencija
-
DUX NEKRETNINE
- Kontakt osoba
- Dux Nekretnine
- Telefon 1
- + 385 51 518... Prikaži broj
- Telefon 2
- + 385 91 480 ... Prikaži broj
- Adresa
- Tizianova 8
- Rijeka, Hrvatska
Slične nekretnine
Vabriga, moderan stan sa krovnom terasom
- 325.000€ 87 m2
Vabriga, novogradnja, stan sa 3 spavaće sobe
- 325.000€ 87 m2
Vabriga, moderan stan u prizemlju sa velikim vrtom
- 325.000€ 87 m2
Vabriga, novogradnja, stan u prizemlju sa vrtom
- 325.000€ 87 m2
ISTRA, TAR, STANOVI U URBANOJ VILLI
- 336.480€ 76 m2
Moderan stan u srcu Tara - novogradnja
- 339.700€ 79 m2
Poreč, Tar - vrhunska novogradnja na odličnoj lokaciji
- 311.000€ 86 m2
ISTRA, TAR - Stan u novogradnji na izvrsnoj lokaciji
- 310.500€ 69 m2
Istra, Poreč - okolica, novogradnja, 86.78m2, 2s+db, balkon
- 310.000€ 86 m2
Tar, moderan stan na 1.katu
- 310.000€ 86 m2
Poreč, Tar - vrhunska novogradnja na odličnoj lokaciji
- 309.000€ 85 m2
Tar, prostrani stan u prizemlju sa vrtom
- 308.560€ 88 m2