Tar, moderan stan na 1.katu
Tar, Tar-Vabriga
310.000€
3 604 €/m2
Tip
Stan
Površina
86 m2
Struktura
3
Detalji
- Tip
- Stan
- Struktura
- 3
- Cijena
- 310.000€
- Površina
- 86 m2 (3 604 €/m2)
- Kat
- 1
- Grijanje
- Sustav grijanja, klimatizacije i ventilacije
- Terasa
- Da
- Udaljenost od mora
- 2000m
- Parkirno mjesto
- Da
- Ažuriran
- 25.04.2026
- ID
- 71010
Opis
Istra, Tar
Prodaje se moderan stan u centru Tara.
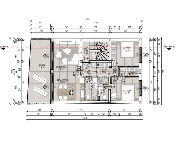
Stan se nalazi na 1.katu novoizgrađene stambene zgrade. Površina stambenog prostora iznosi 69.31 m2. Stan se sastoji od dnevnog boravka sa kuhinjom i blagovaonicom open space koncepta, 2 spavaće sobe, 2 kupaonice i hodnika. Iz dnevnog boravka se izlazi na prostranu natkrivenu terasu površine 22.44 m2. Sa terase se pruža pogled na prirodu.
Stan se grije putem podnog grijanja koje je postavljeno u svim prostorijama i klima uređaja. U samoj gradnji se koriste vrlo kvalitetni materijali. U spavaćim sobama su postavljeni parketi, a u dnevnom boravku i kupaonicama keramika. Vrata su protuprovalna, a stan ima i sustav video nadzora. Stolarija je troslojna sa antracit efektom.
Stan se prodaje u fazi ključ u ruke (završeni podovi i sanitarije, bez namještaja).
U vlasništvu stana su i 2 parkirna mjesta.
Planirani završetak gradnje je prosinac 2025.godine.
Iskazana cijena je cijena s PDV-om.
Stan se nalazi na traženoj lokaciji u centru Tara. Stan je udaljen svega nekoliko minuta vožnje od lijepih plaža i centra Poreča. U neposrednoj blizini stana se nalaze trgovine, restorani, kafići, trgovina, park, igralište, šetnice, biciklističke staze, škola, vrtić, banka, pošta i razni drugi sadržaji.
S obzirom da se radi o novoizgrađenom kvalitetnom stanu u samom centru Tara, stan je idealan za cjelogodišnje stanovanje, ali i za odmor i turističke svrhe.
ID KOD AGENCIJE: 427
SPECTRUM REAL ESTATE
Mob: +3
Kontakt info
- Agencija
-
SPECTRUM REAL ESTATE
- Reg. posrednika br.
- 75/2024
- Kontakt osoba
- Davide Malinarich
- Telefon 1
- 091955... Prikaži broj
- Adresa
- Ulica rijeke Dragonje 7
- Novigrad, Hrvatska
Slične nekretnine
Istra, Poreč - okolica, novogradnja, 86.78m2, 2s+db, balkon
- 310.000€ 86 m2
ISTRA, TAR - Stan u novogradnji na izvrsnoj lokaciji
- 310.500€ 69 m2
Poreč, Tar - vrhunska novogradnja na odličnoj lokaciji
- 311.000€ 86 m2
Poreč, Tar - vrhunska novogradnja na odličnoj lokaciji
- 309.000€ 85 m2
Tar, prostrani stan u prizemlju sa vrtom
- 308.560€ 88 m2
Poreč, Tar - vrhunska novogradnja na odličnoj lokaciji
- 306.000€ 84 m2
Poreč, Tar - vrhunska novogradnja na odličnoj lokaciji
- 303.000€ 83 m2
Tar, prostrani stan u prizemlju sa vrtom
- 302.500€ 88 m2
ISTRA, TAR - Stan u novogradnji na izvrsnoj lokaciji
- 302.000€ 67 m2
ISTRA, TAR - Stan u novogradnji na izvrsnoj lokaciji
- 302.000€ 67 m2
ISTRA, TAR - Stan u novogradnji na izvrsnoj lokaciji
- 302.000€ 67 m2