RIJEKA, VIŠKOVO - stan 2. ( 57 m2 ) U NOVOGRADNJI 2S+DB, URBANA GRADNJA VIŠKO
Marčelji, Viškovo
164.500€
2 885 €/m2
Tip
Stan
Površina
57 m2
Struktura
3
Detalji
- Tip
- Stan
- Struktura
- 3
- Cijena
- 164.500€
- Površina
- 57 m2 (2 885 €/m2)
- Kat
- Prizemlje
- Grijanje
- Sustav grijanja, klimatizacije i ventilacije
- Terasa
- Da
- Parkirno mjesto
- Da
- Ažuriran
- 10.04.2026
- ID
- 98918
Opis
RIJEKA, VIŠKOVO - stan 2. ( 57 m2 ) U NOVOGRADNJI 2S+DB, URBANA GRADNJA VIŠKOVO! PRILIKA!
Zgrada u izgradnji.
Planirani završetak radova je 10. mjesec 2026. godine.
U navedenu cijenu je uključeno jedno parkirno mjesto, a drugo parkirno mjesto je moguće kupiti po želji kupca.
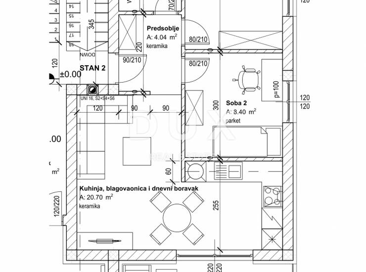
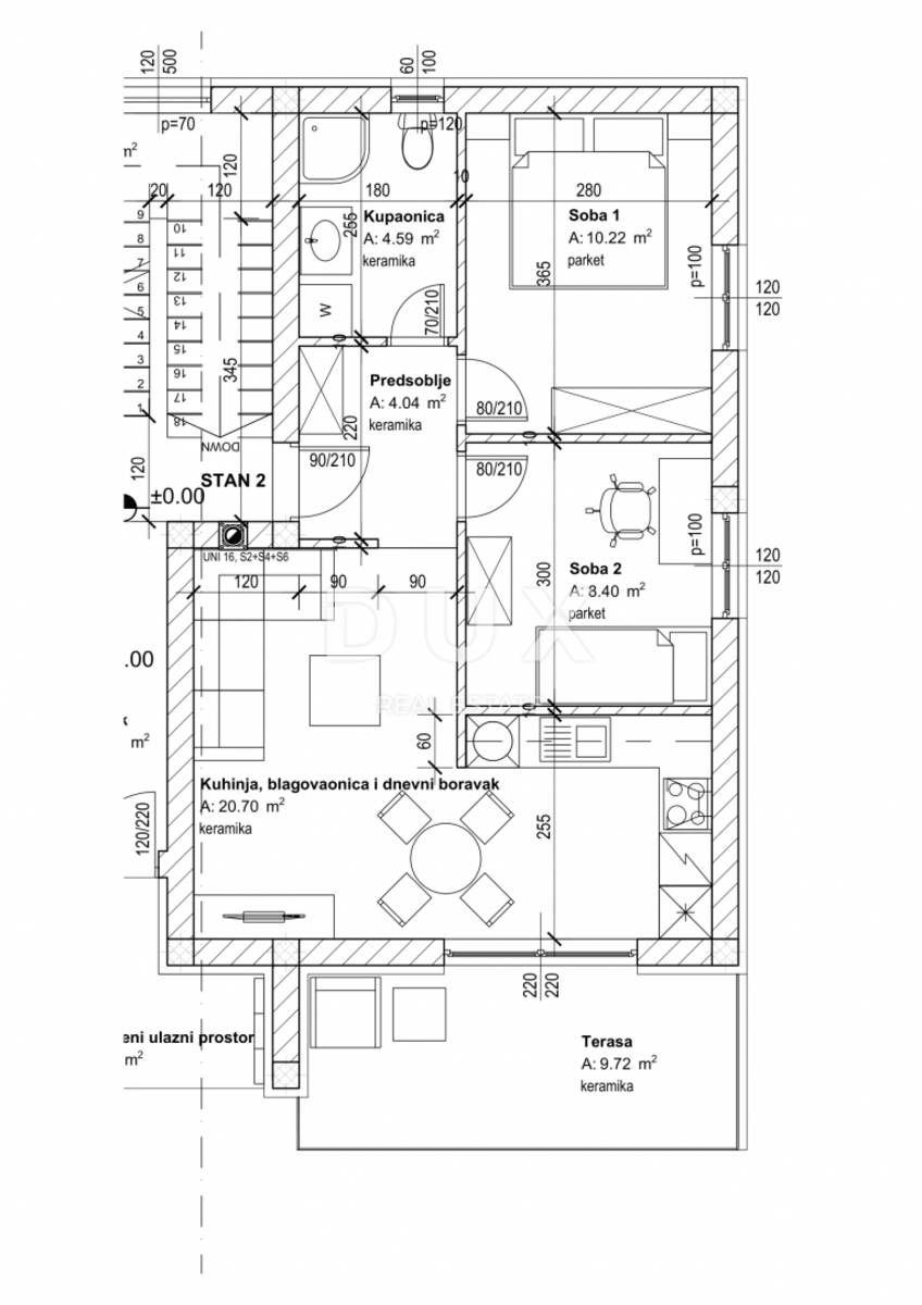
Stan 2 – prizemlje
Predsoblje: 4,04 m2
Kuhinja, blagovaonica i dnevni boravak: 20,70 m2
Terasa: 9,72m2 · Soba_1: 10,22 m2
Soba_2: 8,40 m2
Kupaonica: 4,59 m2
Stan 2 ukupno netto: 57,67 m2
Građevina je isključivo stambene namjene. Sadržavat će 6 stanova i parkirna mjesta na otvorenom.
U prizemlju su smještena 2 stana. Na 1.katu su smještena 2 stana. Na 2.katu su smještena 2 stana.
VANJSKI IZGLED I UREĐENJE OKOLIŠA:
Zgrada ima jednostavne i funkcionalne volumene. Pročelja su umjereno horizontalno i vertikalno razvedena. Obrada pročelja će biti izvedena suvremenim materijalima, u nekoj od nijansi bijele i sive boje. Vanjska stolarija će biti od PVC-a, u crnoj boji. Ograde balkona će biti staklene. Vrsta krova je ravni krov. Neizgrađeni dio građevne čestice bit će uređen kao kolno-pješačka površina, površina za pristup građevini, pješačka površina i zelena površina. Kolno-pješačka površina i površina za pristup građevini će
biti asfaltirana. Pješačka površina će biti opločena betonskim elementima, a zelene površine će biti travnate i hortikulturno uređene sadnjom niskog i visokog autohtonog raslinja
KONSTRUKCIJA:
Konstrukcija zgrade je zid
Kontakt info
- Agencija
-
DUX NEKRETNINE
- Kontakt osoba
- Dux Nekretnine
- Telefon 1
- + 385 51 518... Prikaži broj
- Telefon 2
- + 385 91 480 ... Prikaži broj
- Adresa
- Tizianova 8
- Rijeka, Hrvatska
Slične nekretnine
Viškovo - Marčelji, 34.91m2, 1s+db, okućnica na korištenje
- 138.000€ 34 m2
Marčelji, 34.91m2, 1s+db s okućnicom i parkingom
- 138.000€ 34 m2
Viškovo, stan 1S+DB u novogradnji sa parkingom
- 124.000€ 41 m2
Viškovo, Marčelji, 2s+db, 49.80m2, lođa, pogled na more
- 218.000€ 49 m2
MARČELJI, NAMJEŠTEN TROSOBAN STAN
- 218.000€ 49 m2
Stan Marčelji 3S+DB
- 227.000€ 75 m2
VIŠKOVO, MARČELJI - komforan 3s+db, garaža, pogled more
- 240.000€ 98 m2
MARČELJI, OBITELJSKI STAN S OKUĆNICOM
- 263.000€ 170 m2