OTOK CRES, CRES - Stan 2S+DB u novogradnji
Cres
302.000€
4 194 €/m2
Tip
Stan
Površina
72 m2
Struktura
3
Detalji
- Tip
- Stan
- Struktura
- 3
- Cijena
- 302.000€
- Površina
- 72 m2 (4 194 €/m2)
- Površina zemljišta
- 55
- Kat
- Prizemlje
- Grijanje
- Sustav grijanja, klimatizacije i ventilacije
- Terasa
- Da
- Udaljenost od mora
- 280m
- Garaža
- Da
- Ažuriran
- 22.10.2025
- ID
- 74437
Opis
OTOK CRES, CRES - Stan 2S+DB u novogradnji
PRILIKA NA CRESU!!
U izgradnji je moderna novogradnja sa svega 3 stambene jedinice. Smještena je na rubu zelenog pojasa te se s lokacije pruža prekrasan panoramski pogled na more i Cresku uvalu. Novogradnja će imati garažna mjesta, što je rijetkost na tom području!
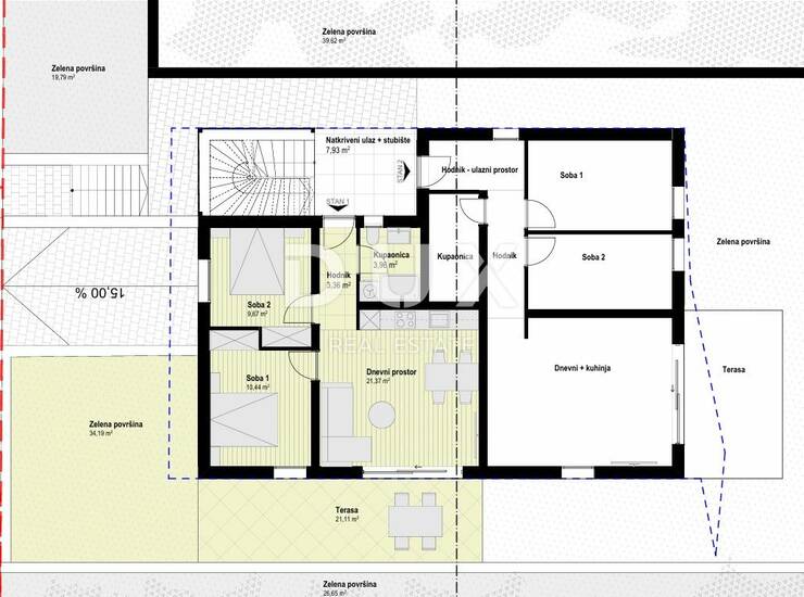
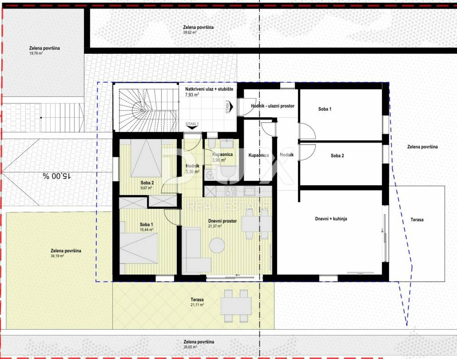
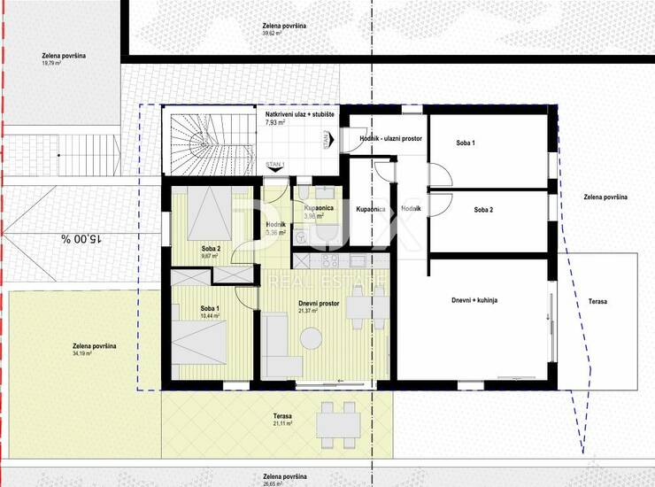
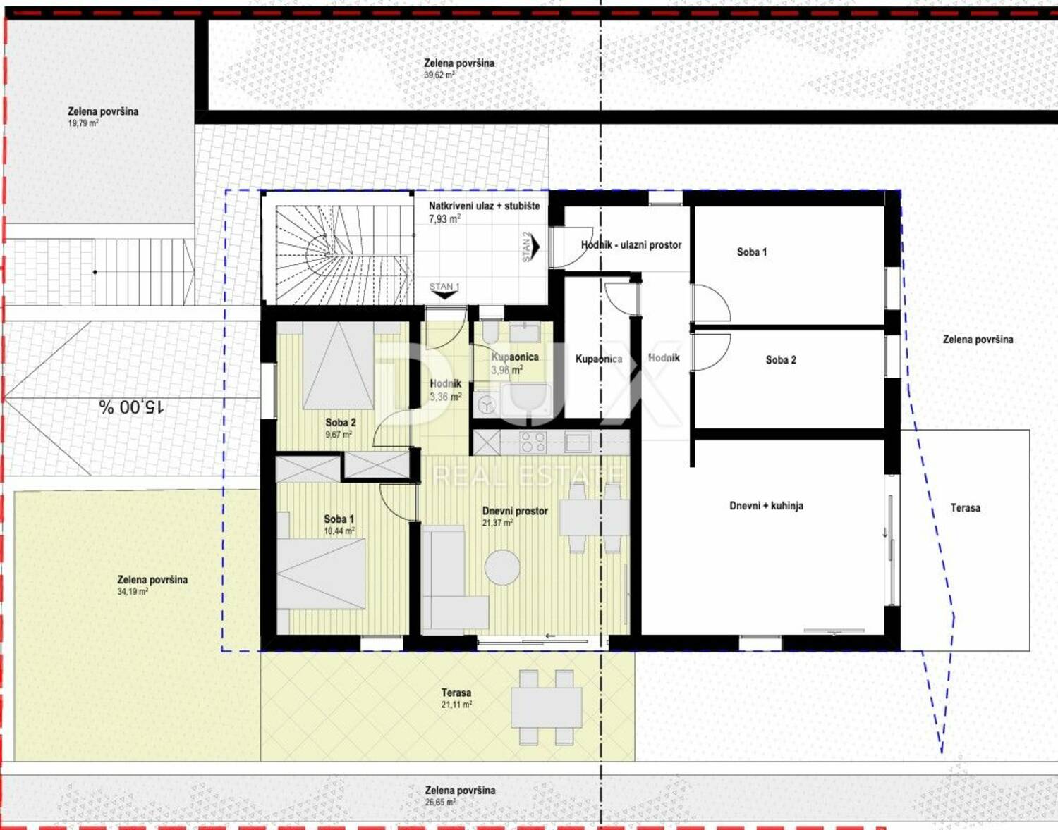
Kuća se proteže na tri etaže: ukopana garaža gdje se nalaze i spremišta, prizemlje koje je sadržano od dva manja stana te kat gdje je smješten penthouse s panoramskim pogledom.
Stan 1 u prizemlju, stambene površine 48,80 m2 sastoji se od ulaznog hodnika, dvije spavaće sobe, kupaonice te dnevnog prostora s kuhinjom, blagovaonicom i mjestom za opuštanje. Iz dnevnog prostora pristupa se vanjskom dijelu, gdje se nalazi popločana terasa i lijepi zeleni vrt. U garaži ovom stanu pripada 1 parkirno mjesto i spremište 10,47 m2.
Planirani završetak radova je na proljeće 2026.
Budite spremni dočekati ljeto u modernoj novogradnji u samom gradu Cresu!
***
Poštovani klijenti, agencijska provizija naplaćuje se u skladu s Općim uvjetima poslovanja:
www.dux-nekretnine.hr/opci-uvjeti-poslovanja
ID KOD AGENCIJE: 37023
Iva Mršić
Agent s licencom
Mob: + 385 91 575 ... Prikaži broj
Tel: + 385 91 480 ... Prikaži broj
E-mail: iva@dux-nekretnine.hr
www.dux-krk.com
Kontakt info
- Agencija
-
DUX NEKRETNINE
- Kontakt osoba
- Dux Nekretnine
- Telefon 1
- + 385 51 518... Prikaži broj
- Telefon 2
- + 385 91 480 ... Prikaži broj
- Adresa
- Tizianova 8
- Rijeka, Hrvatska
Slične nekretnine
CRES, STAN U NOVOGRADNJI
- 302.000€ 72 m2
Cres - Stan na izvrsnoj lokaciji
- 299.000€ 69 m2
Cres - Stan na izvrsnoj lokaciji
- 299.000€ 69 m2
OTOK CRES, CRES - Divan jednosoban stan s vrtom
- 312.000€ 75 m2
CRES, STAN U NOVOGRADNJI
- 312.000€ 75 m2
Cres - Novi stan na odličnoj lokaciji
- 269.900€ 72 m2
Cres, 99m2, novogradnja, 2s+db, terasa
- 340.000€ 99 m2
GRAD CRES, STAN S TERASOM I POSLOVNI PROSTOR
- 260.000€ 65 m2
Cres, 60.20m2, novogradnja, 1s+db, lođa
- 260.000€ 60 m2