OTOK CRES, CRES - Moderan stan s vlastitim vrtom
Cres
385.000€
4 184 €/m2
Tip
Stan
Površina
92 m2
Struktura
3
Detalji
- Tip
- Stan
- Struktura
- 3
- Cijena
- 385.000€
- Površina
- 92 m2 (4 184 €/m2)
- Površina zemljišta
- 89
- Kat
- Prizemlje
- Grijanje
- Sustav grijanja, klimatizacije i ventilacije
- Terasa
- Da
- Udaljenost od mora
- 280m
- Garaža
- Da
- Ažuriran
- 24.10.2025
- ID
- 74395
Opis
OTOK CRES, CRES - Moderan stan s vlastitim vrtom
PRILIKA NA CRESU!!
U izgradnji je moderna novogradnja sa svega 3 stambene jedinice. Smještena je na rubu zelenog pojasa te se s lokacije pruža prekrasan panoramski pogled na more i Cresku uvalu. Novogradnja će imati garažna mjesta, što je rijetkost na tom području!
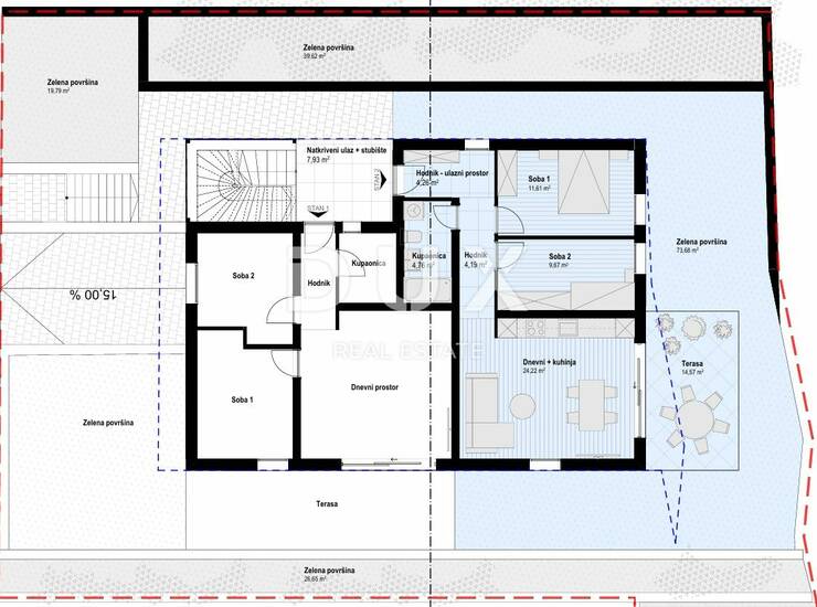
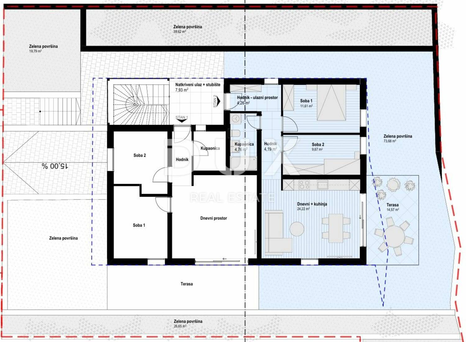
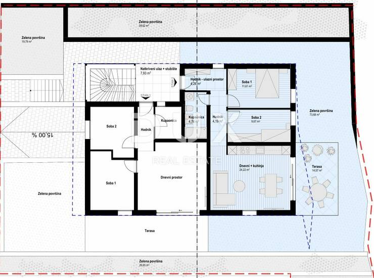
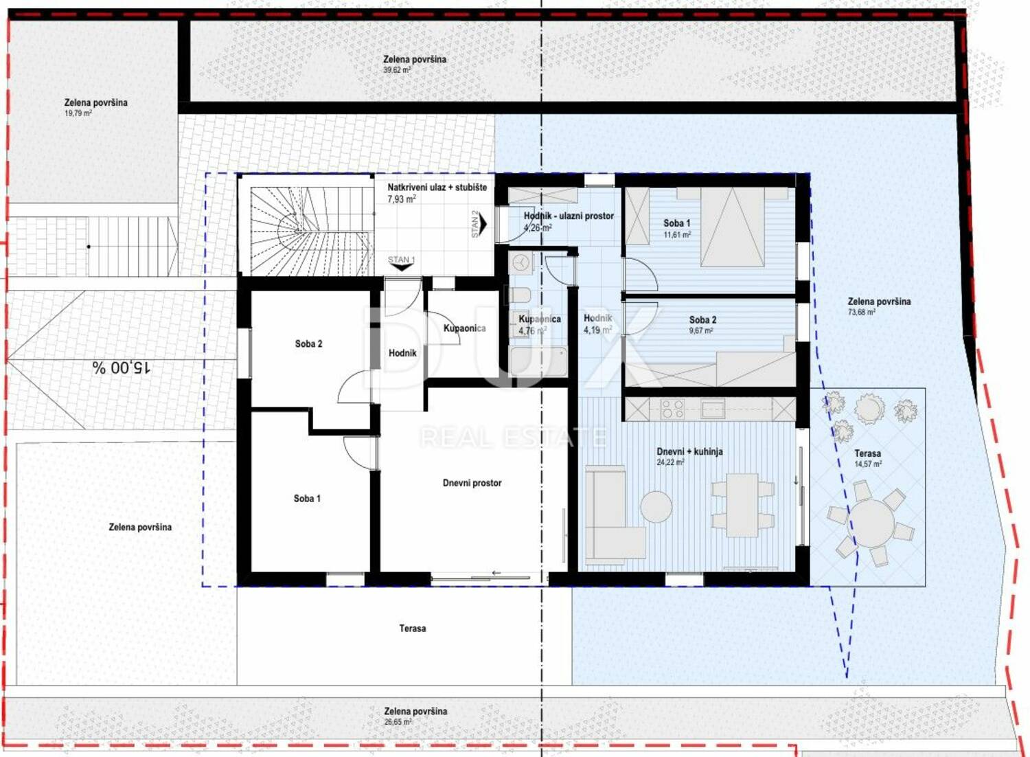
Kuća se proteže na tri etaže: ukopana garaža gdje se nalaze i spremišta, prizemlje koje je sadržano od dva manja stana te kat gdje je smješten penthouse s panoramskim pogledom.
Stan 2 u prizemlju, stambene površine 58,71 m2 sastoji se od ulaznog dijela, hodnika, dvije spavaće sobe, kupaonice te dnevnog prostora s kuhinjom, blagovaonicom i mjestom za opuštanje. Iz dnevnog prostora pristupa se vanjskom dijelu, gdje se nalazi popločana terasa i lijepi zeleni vrt 74 m2. U garaži ovom stanu pripadaju 2 parkirna mjesta i spremište 10,67 m2.
Planirani završetak radova je na proljeće 2026.
Budite spremni dočekati ljeto u modernoj novogradnji u samom gradu Cresu!
***
Poštovani klijenti, agencijska provizija naplaćuje se u skladu s Općim uvjetima poslovanja:
www.dux-nekretnine.hr/opci-uvjeti-poslovanja
ID KOD AGENCIJE: 37079
Iva Mršić
Agent s licencom
Mob: + 385 91 575 ... Prikaži broj
Tel: + 385 91 480 ... Prikaži broj
E-mail: iva@dux-nekretnine.hr
www.dux-krk.com
Kontakt info
- Agencija
-
DUX NEKRETNINE
- Kontakt osoba
- Dux Nekretnine
- Telefon 1
- + 385 51 518... Prikaži broj
- Telefon 2
- + 385 91 480 ... Prikaži broj
- Adresa
- Tizianova 8
- Rijeka, Hrvatska
Slične nekretnine
CRES, STAN U NOVOGRADNJI S OKUĆNICOM
- 386.000€ 92 m2
Cres - prodaja stanova u novogradnji s pogledom na more
- 390.000€ 68 m2
Cres - prodaja stanova u novogradnji s pogledom na more
- 390.000€ 68 m2
Cres, 97.60m2, novogradnja, 2s+db, terasa
- 379.000€ 97 m2
Stanovi Cres
- 376.000€ 97 m2
OTOK CRES, LUKSUZNI ČETVEROSOBNI STAN, 376.000,00€
- 376.000€ 122 m2
Cres - prodaja stanova u novogradnji s pogledom na more
- 399.000€ 69 m2
Cres - prodaja stanova u novogradnji s pogledom na more
- 399.000€ 69 m2
OTOK CRES, CRES - Stan s vrtom, parkingom i pogledom na more
- 405.000€ 99 m2