RIJEKA, KOSTRENA - ekskluzivan stan 141,72m2 novogradnja s prekrasnim pogledom
Kostrena
595.300€
4 221 €/m2
Tip
Stan
Površina
141 m2
Struktura
4
Grijanje
Centralno
Detalji
- Tip
- Stan
- Struktura
- 4
- Cijena
- 595.300€
- Površina
- 141 m2 (4 221 €/m2)
- Površina zemljišta
- 59
- Kat
- 1
- Grijanje
- Centralno
- Terasa
- Da
- Parkirno mjesto
- Da
- Ažuriran
- 09.03.2026
- ID
- 99255
Opis
RIJEKA, KOSTRENA - ekskluzivan stan 141,72m2 novogradnja s prekrasnim pogledom na more + okućnica 59,94m2 - S1-A
U ponudi imamo nekretninu koja vam pruža moderni dizajn i eleganciju, komfor i vrhunsku opremu, a nalazi se na lijepoj mirnoj lokaciji nedaleko javnog prijevoza, škole, vrtića, trgovačkih centara te desetak minuta vožnje od Rijeke.
Kompleks od 4 stambene zgrade s ukupno 8 stanova nalazi se sjeverno od jadranske magistrale na području “Zelene Kostrene” odakle se pruža prekrasan pogled na
cijeli Kvarner.
U neposrednoj blizini nalazi se 10 kilometara uređenih pješačkih, biciklističkih i trim staza koje prolaze najvišim dijelovima Kostrene od vrha Solin do vrha Sopalj.
Pristup kućama uređen je s gornje ceste gdje se planira uređenje i proširenje postojeće prometnice.
Svakoj kući pripadaju četiri vanjska parkirna mjesta, odnosno dva parkirna mjesta po stambenoj jednici.
Svaka kuća sastoji se od dva stana.
Stanovi na gornje dvije parcele smješteni su jedan iznad drugoga, dok su na donje dvije parcele smješteni jedan pored drugoga.
Svakom stanu pripada dio okućnice.
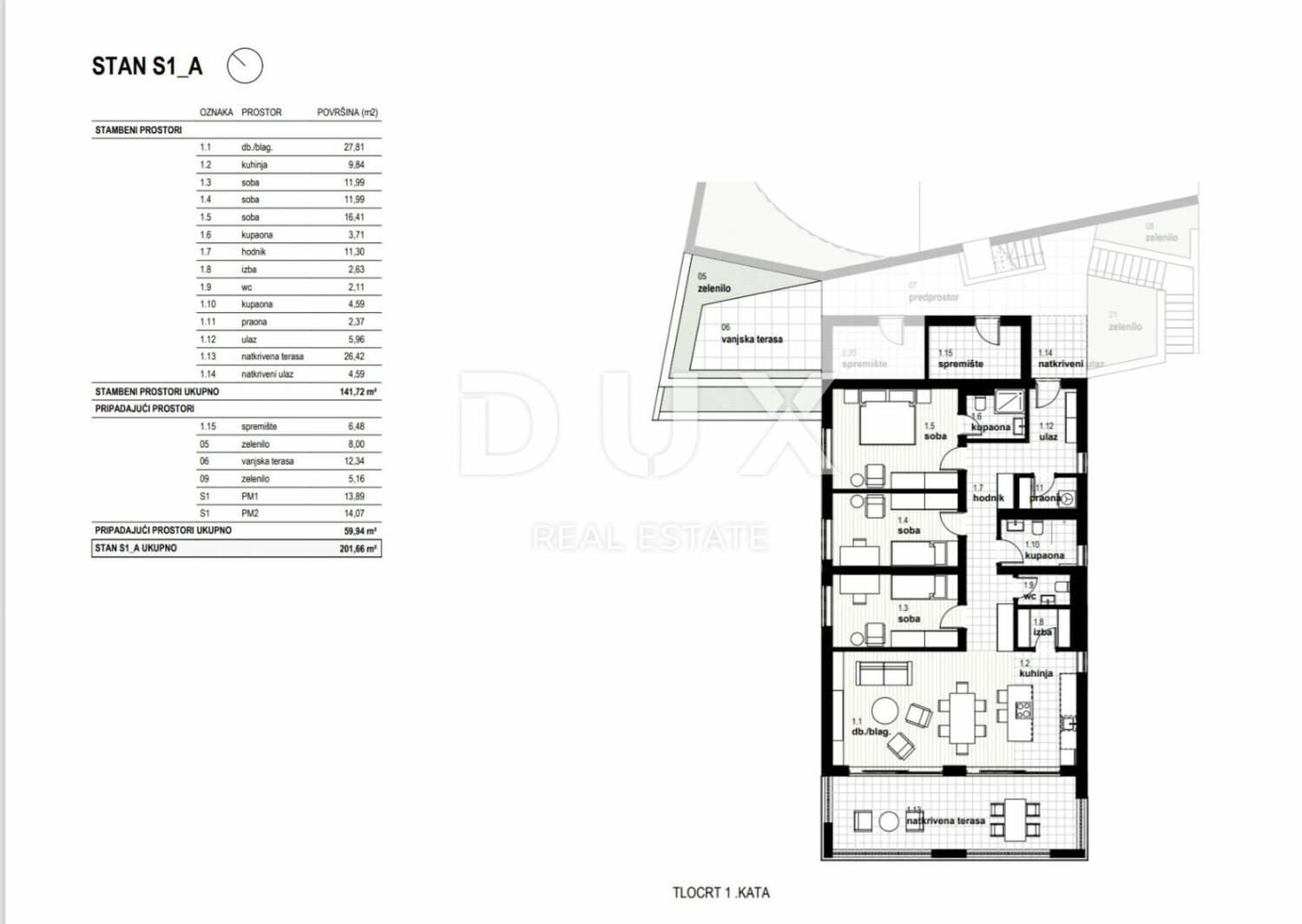
KUĆA A stan S1 - A:
STAMBENI PROSTORI:
- dnevni boravak / blagovaonica 27,81
- kuhinja 9,84
- soba 11,99
- soba 11,99
- soba 16,41
- kupaona 3,71
- hodnik
Kontakt info
- Agencija
-
DUX NEKRETNINE
- Kontakt osoba
- Dux Nekretnine
- Telefon 1
- + 385 51 518... Prikaži broj
- Telefon 2
- + 385 91 480 ... Prikaži broj
- Adresa
- Tizianova 8
- Rijeka, Hrvatska
Slične nekretnine
Kostrena, 3S+DB, pogled na more
- 620.000€ 105 m2
Kostrena, novogradnja 3s+db
- 550.000€ 123 m2
Kostrena, novogradnja, 3s+db, 126m2, parking
- 550.000€ 126 m2
Kostrena,2s+db, stan u novogradnji, 192.600,00 EUR
- 550.000€ 72 m2
Kostrena, stan u novogradnji
- 549.000€ 123 m2
Kostrena, stan sa okućnicom
- 549.000€ 125 m2
Kostrena, luksuzan prostrani stan
- 549.000€ 123 m2
Kostrena, kvalitetna novogradnja, 140.85m2, 3s+db, terasa
- 650.000€ 140 m2
Kostrena, kvalitetna novogradnja, 140.90m2, 3s+db, terasa
- 650.000€ 140 m2
Kostrena
- 666.000€ 138 m2