RIJEKA, KOSTRENA - ekskluzivan dvoetažni stan 209,14m2 novogradnja s prekrasni
Kostrena
878.400€
4 202 €/m2
Tip
Stan
Površina
209 m2
Struktura
5+
Grijanje
Centralno
Detalji
- Tip
- Stan
- Struktura
- 5+
- Cijena
- 878.400€
- Površina
- 209 m2 (4 202 €/m2)
- Površina zemljišta
- 356
- Kat
- Suteren
- Grijanje
- Centralno
- Terasa
- Da
- Parkirno mjesto
- Da
- Ažuriran
- 16.12.2025
- ID
- 91092
Opis
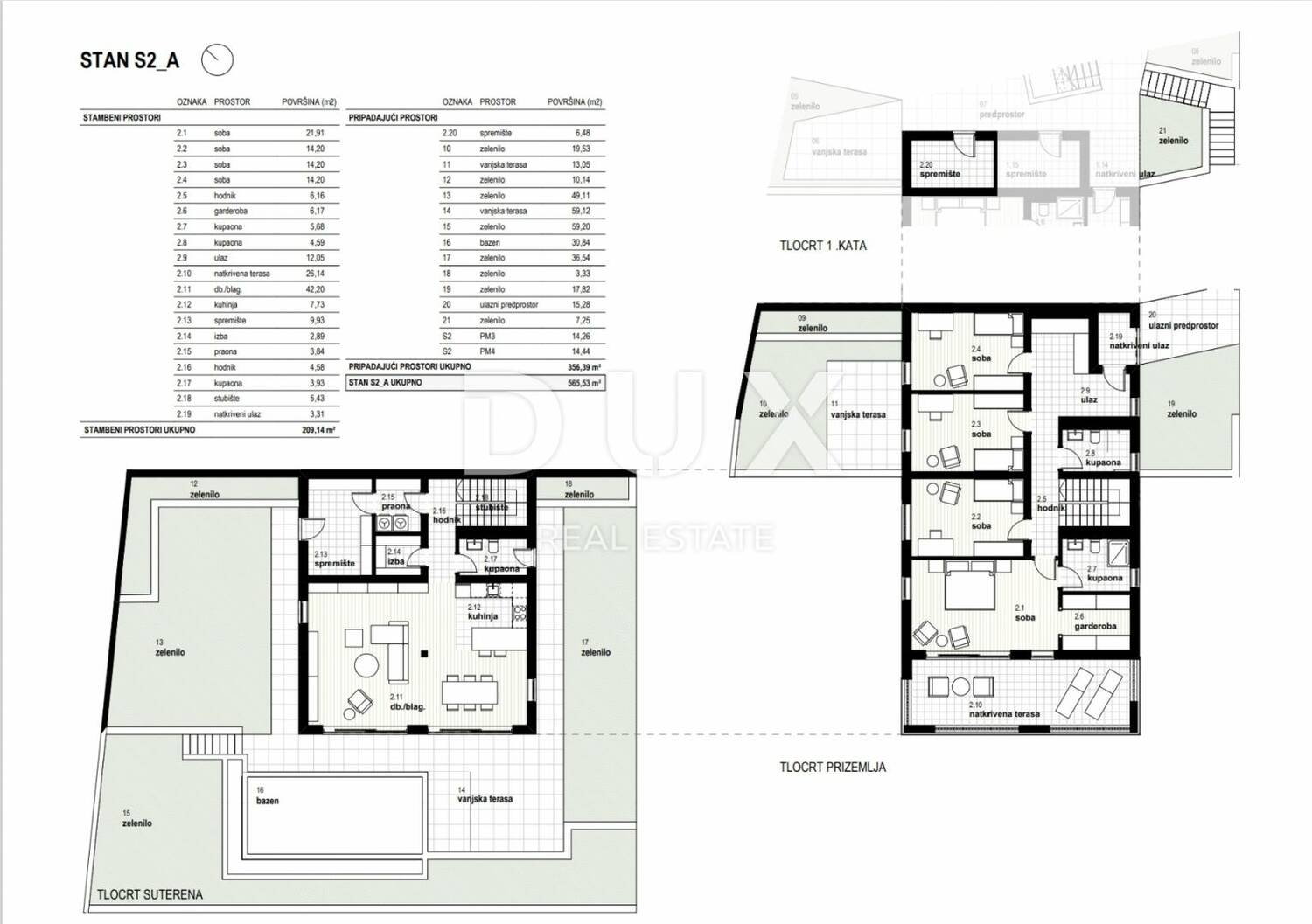
RIJEKA, KOSTRENA - ekskluzivan dvoetažni stan 209,14m2 novogradnja s prekrasnim pogledom na more i bazenom + okućnica 356,39 m2 - S2-A
U ponudi imamo nekretninu koja vam pruža moderni dizajn i eleganciju, komfor i vrhunsku opremu, a nalazi se na lijepoj mirnoj lokaciji nedaleko javnog prijevoza, škole, vrtića, trgovačkih centara te desetak minuta vožnje od Rijeke.
Kompleks od 4 stambene zgrade s ukupno 8 stanova nalazi se sjeverno od jadranske magistrale na području “Zelene Kostrene” odakle se pruža prekrasan pogled na
cijeli Kvarner.
U neposrednoj blizini nalazi se 10 kilometara uređenih pješačkih, biciklističkih i trim staza koje prolaze najvišim dijelovima Kostrene od vrha Solin do vrha Sopalj.
Pristup kućama uređen je s gornje ceste gdje se planira uređenje i proširenje postojeće prometnice.
Svakoj kući pripadaju četiri vanjska parkirna mjesta, odnosno dva parkirna mjesta po stambenoj jednici.
Svaka kuća sastoji se od dva stana.
Stanovi na gornje dvije parcele smješteni su jedan iznad drugoga, dok su na donje dvije parcele smješteni jedan pored drugoga.
Svakom stanu pripada dio okućnice.
KUĆA A stan S2 - A:
STAMBENI PROSTORI:
- soba 21,91
- soba 14,20
- soba 14,20
- soba 1
Kontakt info
- Agencija
-
DUX NEKRETNINE
- Kontakt osoba
- Dux Nekretnine
- Telefon 1
- + 385 51 518... Prikaži broj
- Telefon 2
- + 385 91 480 ... Prikaži broj
- Adresa
- Tizianova 8
- Rijeka, Hrvatska
Slične nekretnine
Kostrena
- 870.000€ 210 m2
Kostrena
- 870.000€ 209 m2
Kostrena, novogradnja
- 901.200€ 164 m2
Kostrena, luksuzni troetažni stan sa bazenom
- 902.000€ 164 m2
Kostrena, novogradnja
- 902.000€ 212 m2
Kostrena,novogradnja sa bazenom i uređenom okućnicom
- 770.000€ 147 m2
Kostrena - Unikatna niskoenergetska kuća
- 757.000€ 198 m2
Kostrena, moderan stan sa bazenom u novogradnji
- 750.000€ 110 m2
Kostrena vrhunska nekretnina
- 750.000€ 198 m2