OPATIJA, IČIĆI - građevinsko zemljište za vilu s bazenom blizu Opatije s gr
Ičići, Opatija
320.000€
492 €/m2
Tip
Zemljiste
Površina
650 m2
Detalji
- Tip
- Zemljiste
- Cijena
- 320.000€
- Površina
- 650 m2 (492 €/m2)
- Udaljenost od mora
- 1800m
- Ažuriran
- 08.12.2025
- ID
- 37366
Opis
OPATIJA, IČIĆI - građevinsko zemljište za vilu blizu Opatije s građevinskom dozvolom, pogled na more
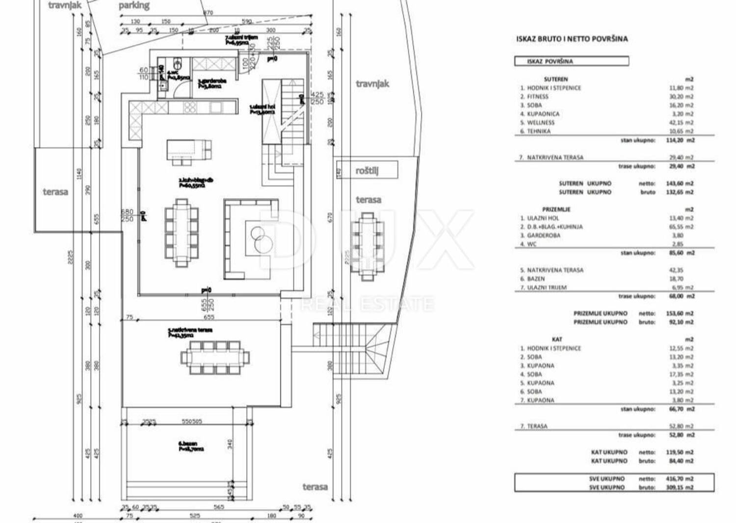
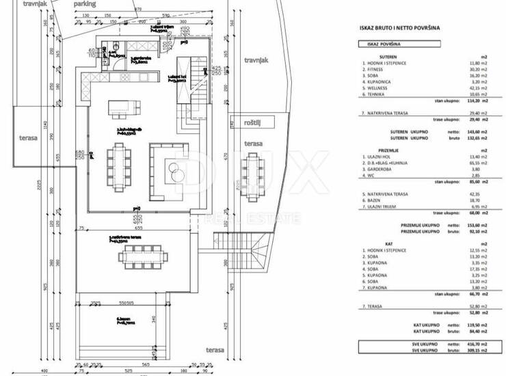
Posredujemo u mogućnosti kupnje prekrasnog zemljišta za izgradnju kuće blizu Opatije. Radi se o građevinskom zemljištu od 650m2 s ishodovanom građevinskom dozvolom za modernu vilu veličine 417m2 s vlastitim bazenom.
Građevinski teren smjestio se u privatnoj ulici s izuzetno kvalitetnim susjedstvom samo 3 minute vožnje od plaže Ičići. Ulica je okružena zelenilom planine Učka te prekrasnim panoramskim pogledom na more. Buduća vila sastojati će se prema projektu od suterena s wellness zonom te izlazom na vlastiti bazen, open space velikog prizemlja i prvoga kata sa spavaćim sobama. (SVEUKUPNO 4 SPAVAĆE SOBE, 4 KUPAONICE + 1 WC !)
Spomenuti pogled je fantastičan, a uzvišena pozicija garantira pogled zauvijek.
Do terena jeste struja i voda te se s gradnjom može početi odmah. Nekoliko metara od zemljišta počinje poljoprivredna zona gdje nema gradnje, time je osigurano mirno okruženje.
Vožnja do mora jeste 1.8km, a put nizbrdo od 900 metara (zračna linija također) traje oko 10 minuta pješice. Fantastična mogućnost za izgradnju privatne vile s bazenom u Ičićima, najljepše mjesto uz Opatiju.
Poštovani klijenti, agencijska provizija naplaćuje se u skladu s Općim uvjetima poslovanja
www.dux-nekretnine.hr/opci-uvjeti-poslovanja
ID KOD AGENCIJE: 25517
Marko Šutanovac
Agent s licencom
Mob: + 385 91 189 ... Prikaži broj
Tel: + 385 91 480 ... Prikaži broj
E-
Kontakt info
- Agencija
-
DUX NEKRETNINE
- Kontakt osoba
- Dux Nekretnine
- Telefon 1
- + 385 51 518... Prikaži broj
- Telefon 2
- + 385 91 480 ... Prikaži broj
- Adresa
- Tizianova 8
- Rijeka, Hrvatska
Slične nekretnine
Ičići, građevinski teren s pogledom
- 310.000€ 771 m2
Oglas
- 300.000€ 1368 m2
Opatija, Ičići, građevinsko zemljište 649m2, pogled na more
- 353.000€ 649 m2
Ičići - prodaja poljoprivrednog zemljišta, 13.419 m2 !
- 250.000€ 13419 m2
Opatija, Ičići, 3565m2, građevinsko zemljište
- 420.000€ 3565 m2
Ičići - građevinsko zemljište s prekrasnim pogledom na more
- 208.000€ 771 m2
Ičići - građevinsko zemljište s prekrasnim pogledom na more
- 208.000€ 771 m2
Opatija, Ičići, zemljište 771m2 - veći dio građevinski!
- 207.500€ 771 m2
Ičići
- 207.000€ 771 m2