Poreč - stan u renovaciji u centru grada
Poreč
260.000€
5 098 €/m2
Tip
Stan
Površina
51 m2
Struktura
3
Detalji
- Tip
- Stan
- Struktura
- 3
- Cijena
- 260.000€
- Površina
- 51 m2 (5 098 €/m2)
- Kat
- 1
- Udaljenost od mora
- 300m
- Ažuriran
- 18.05.2025
- ID
- 65048
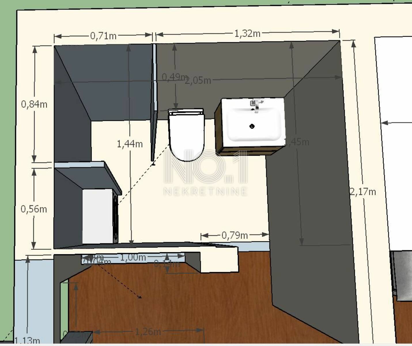
Opis
Prodaje se stan u samom centru Poreča, na izuzetnoj lokaciji, samo 100 m od rive i mora.
Stan je trenutno u procesu potpune renovacije, koja uključuje sve od instalacija, zidova, podova, pa do stolarije.
Predviđeni završetak radova je u studenom 2024. godine, što budućem vlasniku omogućava da bude prvi korisnik potpuno novog, modernog prostora.
Stan veličine 49 m2 se nalazi u zgradi okruženoj zelenim površinama i u blizini se nalaze gradska parkirna mjesta, što doprinosi udobnosti i praktičnosti življenja u centru grada. Prve plaže, gradske plaže, udaljene su svega 500 m od stana, što ovu nekretninu čini idealnom i za stalni boravak i za turistički najam.
Stan se prodaje nenamješte*, što budućem vlasniku pruža mogućnost da ga uredi po vlastitim željama i stilu.
Pripada mu drvarnica u prizemlju zgrade.
Svi papiri i dokumentacija su uredni, što omogućava brzu i sigurnu kupoprodaju.
Ovo je rijetka prilika za kupovinu nekretnine na jednoj od najtraženijih lokacija u Poreču!
Agencijska provizija naplaćuje se u skladu s Općim uvjetima poslovanja koji su dostupni na stranici www.no1-nekretnine.hr/opci-uvjeti-poslovanja.
Nekretninu je moguće razgledati isključivo uz potpisani ugovor o posredovanju koji je temelj za daljnje radnje vezane za kupoprodaju i naplatu provizije, a sve sukladno Zakonu o posredovanju u prometu nekretnina.
ID KOD AGENCIJE: 2528
Agencija No.1
Agent
Mob: 09825... Prikaži broj
Tel: 05126... Prikaži broj
E-mail: sandra.vrsalovic5@g
Kontakt info
- Agencija
-
No.1 nekretnine
- Reg. posrednika br.
- 15/2023
- Kontakt osoba
- Dejan Dunjić
- Telefon 1
- 098901... Prikaži broj
- Telefon 2
- 09825... Prikaži broj
- Adresa
- Riva 4
- Centar
- Rijeka, Hrvatska
Slične nekretnine
Istra, Poreč centar - prodaja novorenoviranog stana
- 260.000€ 51 m2
Poreč okolica, prodaja stana u novogradnji...
- 260.000€ 78 m2
ISTRA, POREČ – Stan na 1.katu novogradnje 1km od mora
- 260.000€ 52 m2
Poreč, okolica, novi gotov stan na prvom katu!
- 260.000€ 65 m2
Poreč, okolica, idealan stan na prvom katu!
- 260.000€ 52 m2
Poreč okolica, moderan stan sa krovnom terasom
- 260.420€ 91 m2
Poreč - J01, novogradnja 800 m od mora
- 259.000€ 54 m2
POREČ, MODERAN STAN NA DRUGOM KATU NOVOGRADNJE
- 259.000€ 49 m2
POREČ, MODERAN STAN NA TREĆEM KATU NOVOGRADNJE
- 259.000€ 47 m2
Poreč, suvremeni stan u kvalitetnoj novogradnji
- 259.000€ 85 m2