ISTRA, ROVINJ - Stan 86 m2 u prizemlju sa vrtom!
Rovinj
909.590€
10 701 €/m2
Tip
Stan
Površina
85 m2
Struktura
3
Detalji
- Tip
- Stan
- Struktura
- 3
- Cijena
- 909.590€
- Površina
- 85 m2 (10 701 €/m2)
- Površina zemljišta
- 163
- Kat
- Prizemlje
- Terasa
- Da
- Udaljenost od mora
- 500m
- Ažuriran
- 30.09.2025
- ID
- 81589
Opis
ISTRA, ROVINJ - Stan 86 m2 u prizemlju sa vrtom!
ROVINJ - Grad smješten na zapadnoj obali istarskog poluotoka, nekad je bio luka i ribarsko naselje, a danas je jedna od najrazvijenijih turističkih destinacija sa svojom jedinstvenom kombinacijom tradicionalnog i modernog. Uspješno spaja tradiciju ribarskog mjesta s modernim turističkim trendovima, bogatom gastronomskom ponudom i visokim standardom turističke usluge. Upravo zbog toga privlači brojne posjetitelje iz godine u godinu i bilježi rekordnih 3 milijuna noćenja tijekom sezone.
Zbog svojih prirodnih ljepota kao što su brojni otoci koji ga okružuju i kristalno čisto more, gosti mu se svake godine iznova vraćaju.
U ponudi imamo stan u prizemlju manje stambene zgrade sa samo 4 stana. Ima površinu od 86 m2 a sastoji se od ulaznog hodnika, 2 spavaće sobe svaka sa svojom vlastitom kupaonicom, WC sa praonicom, kuhinje sa blagovaonicom i prostranim dnevnim boravkom iz kojeg se putem velikih staklenih stijena vrši komunikacija sa vanjskim dijelom i vrtom površine 161 m2.
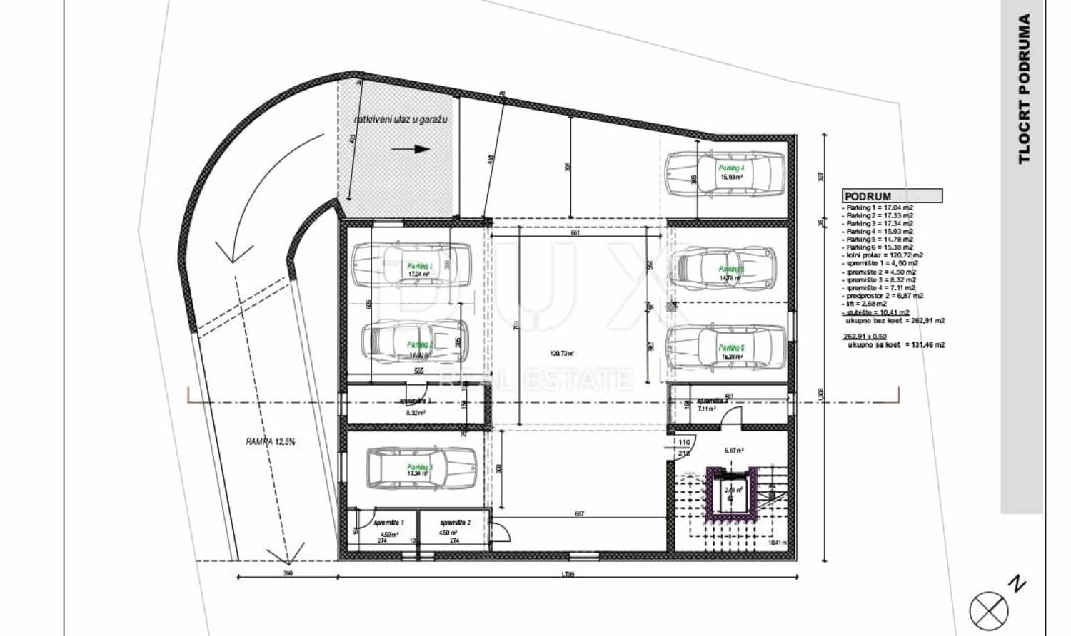
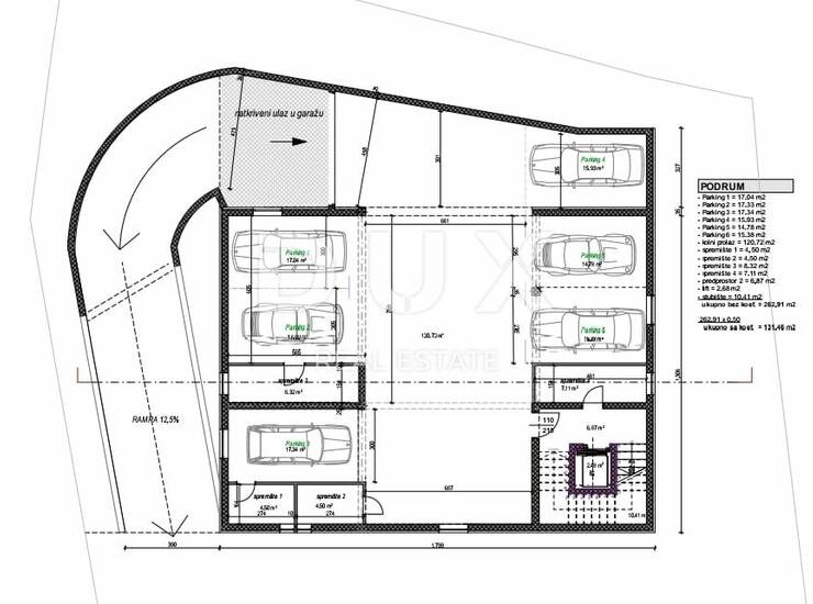
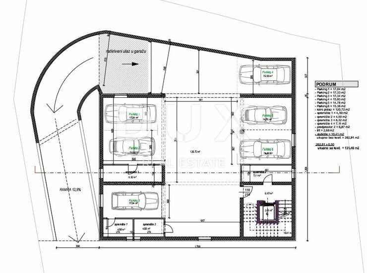
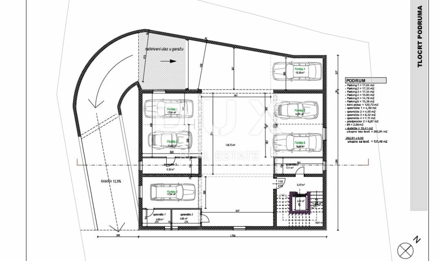
Stanu pripada strojarnica površine 4,50m2 i garaža 15,59 m2.
Zgrada ima lift koji povezuje sve etaže počev od garaže.
Stan se nalazi na udaljenosti od 500 m od mora i glavne šetnice.
U neposrednoj blizini nalaze se svi sadržaji kao što su trgovine, tržnica, javne ustanove, restorani, caffe barovi.
Cijena na upit!
Ne propustite ovu priliku. Nazovite nas još danas i dogovorite svoj razgled!
Cijenjeni klijenti, napominjemo k
Kontakt info

- Agencija
-
DUX NEKRETNINE
- Kontakt osoba
- Dux Nekretnine
- Telefon 1
- + 385 51 518... Prikaži broj
- Telefon 2
- + 385 91 480 ... Prikaži broj
- Adresa
- Tizianova 8
- Rijeka, Hrvatska
Slične nekretnine

Rovinj - prodaja stana u novogradnji, 142, 35m2, pogled na more!
- 910.000€ 142 m2

ROVINJ - luksuzni stan prizemlje, udaljen 400m od mora
- 918.000€ 149 m2

Stan u prizemlju u blizini centra i mora, Rovinj
- 918.000€ 148 m2

Rovinj - dvoetažni stan u novogradnji, 150m od mora!
- 920.000€ 202 m2

Rovinj, fantastičan luksuzni stan nadomak plaža
- 920.000€ 202 m2

Atraktivan novi stan sa okućnicom na korak do centra Rovinja
- 899.000€ 126 m2

Rovinj - Luksuzni stan s pogledom na more, samo 280m od plaže!
- 895.000€ 167 m2

ISTRA, ROVINJ - Stan 89 m2 u prizemlju sa vrtom!
- 877.200€ 88 m2

ISTRA, ROVINJ - luksuzni stan nadomak centra
- 870.000€ 129 m2