ISTRA, TAR - 2SS+DB stan smješten u visoko kvalitetnoj novogradnji na svega 35
Tar, Tar-Vabriga
192.850€
3 571 €/m2
Tip
Stan
Površina
54 m2
Struktura
3
Detalji
- Tip
- Stan
- Struktura
- 3
- Cijena
- 192.850€
- Površina
- 54 m2 (3 571 €/m2)
- Kat
- 2
- Grijanje
- Sustav grijanja, klimatizacije i ventilacije
- Udaljenost od mora
- 350m
- Ažuriran
- 08.10.2025
- ID
- 92530
Opis
ISTRA, TAR – Atraktivan 2SS+DB stan u modernoj novogradnji na svega 350 m od mora
Predstavljamo vam priliku za kupnju moderno projektiranog stana smještenog u kvalitetnoj novogradnji u Taru, jednoj od najtraženijih lokacija zapadne Istre. Na svega 3 minute vožnje od kristalno čistog mora i tek 5 minuta vožnje od Poreča, ovaj stan predstavlja savršen spoj udobnosti, funkcionalnosti i suvremenog načina življenja.
OPIS STANA
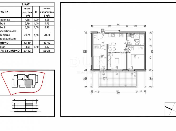
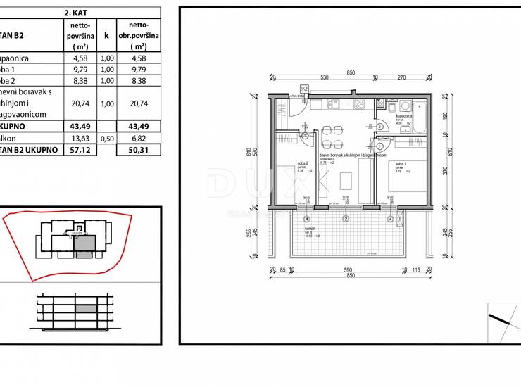
Stan B2 nalazi se na drugom katu zgrade i prostire se na neto površini od 50.31 m². Raspored prostorija osmišljen je tako da maksimizira prostranost i prirodno svjetlo:
* Ulazno predvorje s predviđenim prostorom za garderobu
* Open space dnevni prostor – moderno koncipiran prostor koji objedinjuje dnevni boravak, kuhinju i blagovaonicu u jedno.
* Prostran balkon, koji se prostire uz dnevni prostor stana, te kojemu pristup imaju i obje spavaće sobe, idealan je za druženja i opuštanje s prijateljima i obitelji.
* Zatim i dvije komotne spavaće sobe, te jedna kupaonica.
TEHNIČKE KARAKTERISTIKE ZGRADE - Zgrada je projektirana i građena prema najvišim građevinskim i energetskim standardima:
* Protupotresna konstrukcija
* Troslojna PVC stolarija
* Bešumne kanalizacijske instalacije
* Elektro podno grijanje u svim prostorijama stana
* Klima uređaji u svakoj prostoriji
* Kvalitetna 10 cm fasadna izolacija (stiropor i vuna)
* Lift u zgradi
* Protuprovalna vrata u stanovima
* Vrhunski sustav vodovoda (njemačke TC cijevi)
DODAT
Kontakt info

- Agencija
-
DUX NEKRETNINE
- Kontakt osoba
- Dux Nekretnine
- Telefon 1
- + 385 51 518... Prikaži broj
- Telefon 2
- + 385 91 480 ... Prikaži broj
- Adresa
- Tizianova 8
- Rijeka, Hrvatska
Slične nekretnine

ISTRA, POREČ - Novoadaptirani stan u na odličnoj lokaciji
- 192.000€ 52 m2

Vabriga, stan sa bazenom
- 195.000€ 68 m2

Stan u Izgradnji, Tar...
- 199.700€ 62 m2

ISTRA,TAR - Stan u izgradnji na super lokaciji
- 200.000€ 67 m2

Tar-Vabriga, Istra: Moderan stan na prvom katu na prodaju
- 185.000€ 57 m2

Istra, Tar – atraktivan stan na drugom katu - NOVOGRADNJA
- 203.000€ 58 m2

Istra, Tar, Moderan novogradnja stan s pristupom liftu
- 203.350€ 63 m2

Tar, novogradnja, stan sa potencijalom
- 205.000€ 63 m2

Moderan stan u prizemlju, novogradnja, Tar
- 206.465€ 58 m2

Vabriga, moderan stan na 2.katu
- 207.415€ 48 m2