Tar, moderan stan na 1.katu
Tar, Tar-Vabriga
227.500€
3 554 €/m2
Tip
Stan
Površina
64 m2
Struktura
3
Detalji
- Tip
- Stan
- Struktura
- 3
- Cijena
- 227.500€
- Površina
- 64 m2 (3 554 €/m2)
- Kat
- 1
- Grijanje
- Sustav grijanja, klimatizacije i ventilacije
- Terasa
- Da
- Udaljenost od mora
- 2000m
- Parkirno mjesto
- Da
- Ažuriran
- 11.04.2026
- ID
- 94789
Opis
Istra, Tar
Prodaje se moderan stan u Taru.
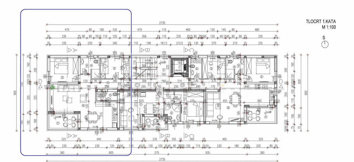
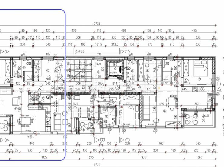
Stan se nalazi na 1.katu novoizgrađene stambene zgrade sa 11 stambenih jedinica. Površina stana iznosi 64.81 m2. Stan se sastoji od dnevnog boravka sa kuhinjom i blagovaonicom open space koncepta, 2 spavaće sobe, kupaonice, wc-a, hodnika i natkrivene terase. Na terasu se dolazi iz dnevnog boravka. Sa terase se pruža pogled na Tar i na prirodu.
Stan se grije putem podnog grijanja na struju, a završena je i prva faza za ugradnju klima uređaja. Stan se prodaje u fazi ključ u ruke (završeni podovi i sanitarije, bez namještaja). U izgradnji su korišteni kvalitetni materijali, a stolarija je troslojna PVC.
Zgrada u kojoj se stan nalazi ima lift.
Stanu pripadaju 2 parkirna mjesta koja se nalaze odmah pored same zgrade.
Planirani završetak gradnje je ljeto 2027.godine.
Iskazana cijena je cijena s PDV-om.
Stan se nalazi na traženoj lokaciji u Taru. Stan je udaljen svega nekoliko minuta vožnje od lijepih plaža i centra Poreča. U neposrednoj blizini stana se nalaze trgovine, restorani, kafići, trgovina, park, igralište, šetnice, biciklističke staze, škola, vrtić, banka, pošta i razni drugi sadržaji.
S obzirom da se radi o novoizgrađenom stanu u Taru, stan je idealan za cjelogodišnje stanovanje, ali i za odmor i turističke svrhe.
ID KOD AGENCIJE: 615
SPECTRUM REAL ESTATE
Mob: + 385 91 955 ... Prikaži broj
E-mail: info@spectrum-realestate.eu
www.spectrum-realestate.eu
Kontakt info
- Agencija
-
SPECTRUM REAL ESTATE
- Reg. posrednika br.
- 75/2024
- Kontakt osoba
- Davide Malinarich
- Telefon 1
- 091955... Prikaži broj
- Adresa
- Ulica rijeke Dragonje 7
- Novigrad, Hrvatska
Slične nekretnine
Tar, stan u zgradi sa liftom
- 227.500€ 64 m2
trosobni stan na prvome katu novogradnje
- 229.000€ 65 m2
Tar, stan u zgradi sa liftom
- 230.000€ 65 m2
Tar, komforan stan u prizemlju
- 225.000€ 70 m2
Poreč, Tar - PRILIKA! Zadnji stan u prizemlju zgrade
- 230.000€ 77 m2
ISTRA, POREČ - Prekrasan stan na 1. katu novogradnje
- 219.000€ 60 m2
ISTRA, POREČ - Prekrasan stan na 2. katu novogradnje
- 219.000€ 60 m2
ISTRA, POREČ - Prekrasan stan na 1. katu novogradnje
- 237.000€ 65 m2
ISTRA, POREČ - Prekrasan stan na 2. katu novogradnje
- 218.000€ 60 m2
ISTRA, POREČ - Prekrasan stan na 1. katu novogradnje
- 218.000€ 60 m2
trosobni stan na drugome katu moderne novogradnje
- 218.000€ 62 m2
ISTRA, POREČ - Prekrasan stan s vrtom u novogradnji
- 238.000€ 65 m2