RIJEKA, VIŠKOVO - stan 3. ( 67 m2 ) U NOVOGRADNJI 2S+DB, URBANA GRADNJA VIŠKO
Marčelji, Viškovo
236.000€
3 522 €/m2
Tip
Stan
Površina
67 m2
Struktura
3
Detalji
- Tip
- Stan
- Struktura
- 3
- Cijena
- 236.000€
- Površina
- 67 m2 (3 522 €/m2)
- Kat
- 1
- Grijanje
- Sustav grijanja, klimatizacije i ventilacije
- Terasa
- Da
- Parkirno mjesto
- Da
- Ažuriran
- 09.11.2025
- ID
- 88624
Opis
RIJEKA, VIŠKOVO - stan 3. ( 67 m2 ) U NOVOGRADNJI 2S+DB, URBANA GRADNJA VIŠKOVO! PRILIKA!
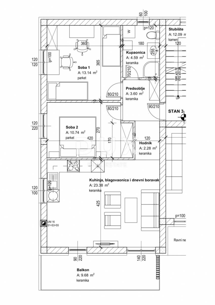
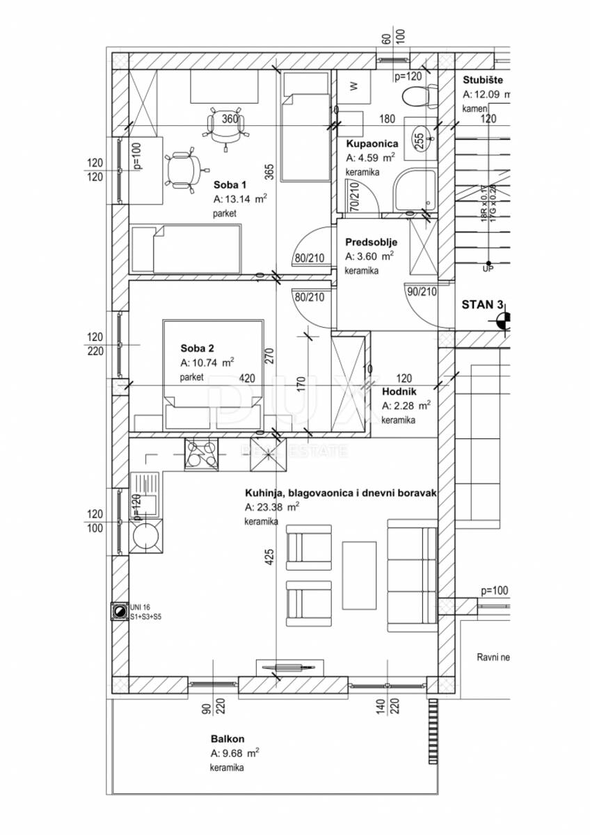
Stan 3 – prvi kat
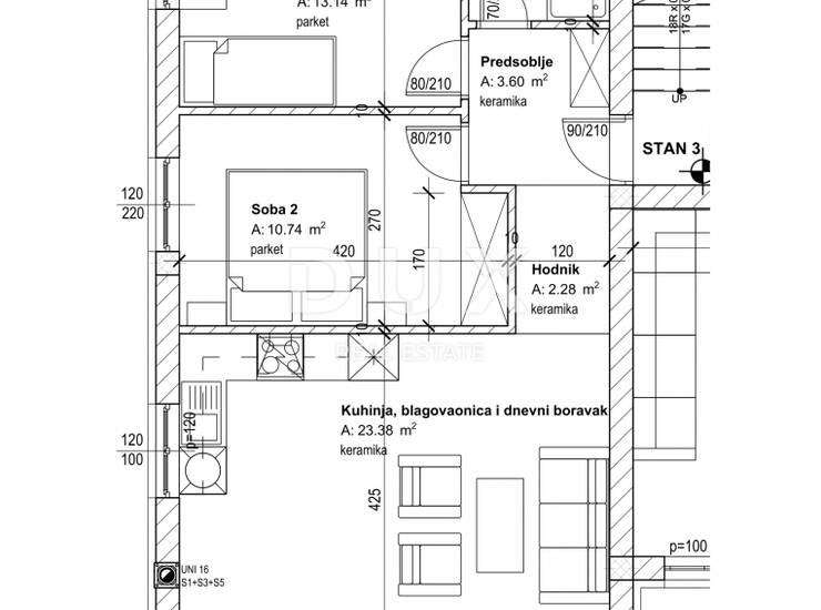
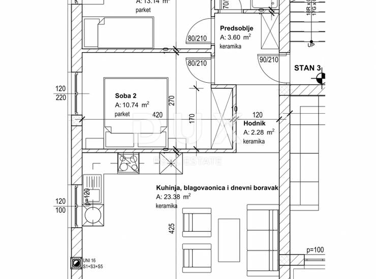
Predsoblje: 3,60 m2
Hodnik: 2,28 m2
Kuhinja, blagovaonica i dnevni boravak: 23,38 m2
Balkon: 9,68 m2 · Soba_1: 13,14 m2
Soba_2: 10,74 m2
Kupaonica: 4,59 m2
Stan 3 ukupno netto: 67,41 m2
Građevina je isključivo stambene namjene. Sadržavat će 6 stanova sa pripadajućim spremištima u podrumu i parkirnim mjestima na otvorenom.
U podrumu je smješteno 6 spremišta za 6 stanova.
U prizemlju su smještena 2 stana. Na 1.katu su smještena 2 stana. Na 2.katu su smještena 2 stana.
VANJSKI IZGLED I UREĐENJE OKOLIŠA:
Zgrada ima jednostavne i funkcionalne volumene. Pročelja su umjereno horizontalno i vertikalno razvedena. Obrada pročelja će biti izvedena suvremenim materijalima, u nekoj od nijansi bijele i sive boje. Vanjska stolarija će biti od PVC-a, u crnoj boji. Ograde balkona će biti staklene. Vrsta krova je ravni krov. Neizgrađeni dio građevne čestice bit će uređen kao kolno-pješačka površina, površina za pristup građevini, pješačka površina i zelena površina. Kolno-pješačka površina i površina za pristup građevini će
biti asfaltirana. Pješačka površina će biti opločena betonskim elementima, a zelene površine će biti travnate i hortikulturno uređene sadnjom niskog i visokog autohtonog raslinja
KONSTRUKCIJA:
Konstrukcija zgrade je zidana od blok opeke, osim podrumskih zidova koji su armiranobetonski. Zidovi od
Kontakt info
- Agencija
-
DUX NEKRETNINE
- Kontakt osoba
- Dux Nekretnine
- Telefon 1
- + 385 51 518... Prikaži broj
- Telefon 2
- + 385 91 480 ... Prikaži broj
- Adresa
- Tizianova 8
- Rijeka, Hrvatska
Slične nekretnine
VIŠKOVO, MARČELJI - komforan 3s+db, garaža, pogled more
- 240.000€ 98 m2
Stan Marčelji 3S+DB
- 227.000€ 75 m2
Viškovo, Marčelji, 2s+db, 49.80m2, lođa, pogled na more
- 218.000€ 49 m2
MARČELJI, NAMJEŠTEN STAN 2S+DB
- 218.000€ 49 m2
MARČELJI, OBITELJSKI STAN S OKUĆNICOM
- 263.000€ 170 m2
Viškovo, Marčelji, 64.85m2, 2-sobni s dnevnim, parking
- 192.000€ 64 m2