Viškovo, Marinići - prodaja dvoetažnog stana u novogradnji!
Marinići, Viškovo
405.000€
3 091 €/m2
Tip
Stan
Površina
131 m2
Struktura
3
Detalji
- Tip
- Stan
- Struktura
- 3
- Cijena
- 405.000€
- Površina
- 131 m2 (3 091 €/m2)
- Ukup. katova
- 1
- Grijanje
- Klima uređaj,Toplinska pumpa
- Terasa
- Da
- Parkirno mjesto
- Da
- Ažuriran
- 08.12.2025
- ID
- 54613
Opis
Viškovo, Marinići - prodaja dvoetažnog stana u novogradnji!
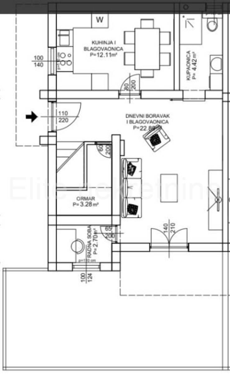
Posredujemo u prodaji dvoetažnog stana u urbanoj vili na mirnoj lokaciji u Marinićima. Nalazi se u zasebnom djelu kuće te ima odvojeni ulaz. Stan se sastoji u prizemlju od dnevnog boravka, odvojene kuhinje i blagovaone, kupaone sa tuš kadom sa zatvorenom kabinom te wc-a, radnog prostora, hodnika i stepeništa sa ostavom te velike terase sa pogledom. Na katu se nalaze dvije prostrane spavaće sobe sa balkonima, kupaona sa wc-om, hodnika. Svi prostori raspolažu sa velikim brojem utičnica a raspored omogućuje kombinirano korištenje soba kao spavaćih dječijih ili radnih. Stan ima svoj zasebni natkriveni ulaz, svoje dvorište cca 100 m2(3 parkirna mjesta ). Stan je uređen moderno sa vrhunskim sanitarijama, sustavom podnog grijanja - dizalice topine Daikin, klimatizacijski uređaji sa Wi-Fi kontrolom u svakoj prostoriji i to Daikin visoka klasa. Sva stolarija je Aluminijska,sa Alu K profilima i okovima. Vrata su visoke klase . Stan ima ukupno raspoloživo 17,4 KW snage struje i pripremu za punioce za EMV. Kompletna rasvjeta, voda i komunalije su odvojene (nema zajedničke potrošnje) Stan ima svoje spremište za sortirani otpad.
Ispred zgrade je i zelena površina a sam stan raspolaže sa velikom terasom sa mogućnošću natkrivanja dijela u zimski vrt-dnevni boravak a ograda je djelomično staklena. Sva vanjska rasvjeta i rasvjeta balkona je led sa puno rasvjetnih tijela.
Stan je useljiv sa 01.07.2024 godine.
Agencijska provizija naplaćuje se u skladu s Općim uvjetima poslovanja koji su dostupni na stranici www.elite-nekretnine.hr/opci-uvjeti-poslovanja.
Kontakt info
- Agencija
-
Elite nekretnine
- Kontakt osoba
- Luana Valjan
- Mobilni telefon
- + 385 91 526 ... Prikaži broj
- Adresa
- Ciottina 24 b
- Centar
- Rijeka, Hrvatska
Slične nekretnine
MARINIĆI -DVOETAŽNI STAN S GARSONJEROM I DVA PARKIRNA MJESTA
- 402.000€ 162 m2
Rijeka okolica, Marinići, vrlo komforan dvoetažni stan od 390m2
- 360.000€ 390 m2
VIŠKOVO, MARINIĆI - Dvoetažni stan,130m2, novogradnja
- 473.000€ 130 m2
Marinići - vrhunski dvoetažni stan u urbanoj vili
- 475.000€ 131 m2
Marinići - vrhunski dvoetažni stan u urbanoj vili
- 475.000€ 131 m2
Viškovo, komforan i luksuzan dvoetažni stan u mirnom okruženju
- 479.000€ 131 m2
Viškovo, Marinići, 178.66m2, dvoetažni 4-sobni s dnevnim
- 325.000€ 178 m2
Marinići, dvoetažni stan od 170 m2
- 320.000€ 168 m2
VIŠKOVO, MARINIĆI - Stan 2S+DB, 87m2, novogradnja
- 316.000€ 87 m2
Marinići - vrhunski stan u urbanoj vili
- 310.800€ 85 m2
Marinići 3s+db, 2 balkona, novogradnja
- 310.000€ 105 m2