Njivice, kuća u nizu s bazenom u novogradnji!
Njivice, Omišalj
480.000€
4 285 €/m2
Tip
Kuća
Površina
112 m2
Struktura
4
Detalji
- Tip
- Kuća
- Struktura
- 4
- Cijena
- 480.000€
- Površina
- 112 m2 (4 285 €/m2)
- Grijanje
- Klima uređaj + Podno grijanje
- Terasa
- Da
- Udaljenost od mora
- 600m
- Parkirno mjesto
- Da
- Ažuriran
- 10.05.2026
- ID
- 101081
Opis
Njivice, prodaje se moderna kuća u nizu u novogradnji, neto površine 121 m2, s bazenom, u blizini mora i centra.
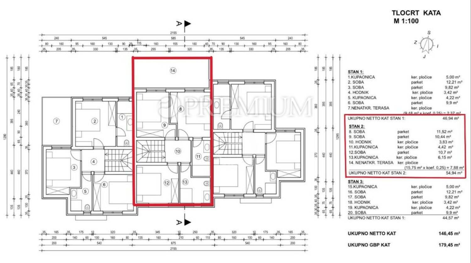
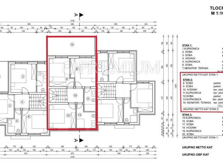
Kuća se prostire na dvije etaže: prizemlje i kat.
Kat se sastoji od hodnika, tri spavaće sobe od kojih dvije imaju izlaz na terasu i dvije kupaonice.
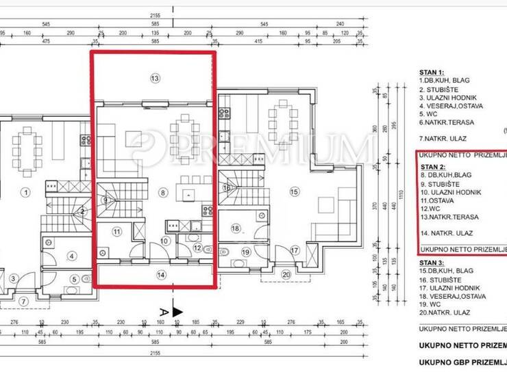
U prizemlju se nalazi prostrana moderna kuhinja, blagovaonica, dnevni boravak, spremište i gostinjski WC. Iz dnevnog boravka izlazi se na natkrivenu terasu i okućnicu.
Na okućnici su predviđeni bazen dimenzija 5,30 × 2,50 i sunčalište, a na zajedničkom dijelu parcele se nalaze dva parkirna mjesta.
Kuća je opremljena vrhunskom PVC stolarijom, klima uređajima u svim prostorijama, podnim grijanjem putem e-bloka te prvoklasnim keramičkim pločicama i sanitarijama.
Prodaje se po sistemu ključ u ruke, a useljenje je planirano za kraj 2026. godine.
Ova nekretnina savršena je za cijelogodišnje korištenje. Blizina mora, kvalitetna izgradnja i moderna oprema čine ovu kuću idealnim izborom za one koji traže udoban dom ili investiciju.
ID KOD AGENCIJE: 4597
Premium nekretnine Malinska
Mob: + 38591547... Prikaži broj
Tel: + 3855185... Prikaži broj
E-mail: info@premium-nekretnine.com
Kontakt info
- Agencija
-
Premium Nekretnine
- Kontakt osoba
- Premium Nekretnine
- Telefon 1
- + 385 91 5474... Prikaži broj
- Telefon 2
- + 385 51 858... Prikaži broj
- Dubašljanska 76
- Krk, Hrvatska
Slične nekretnine
Prodaja kuće u nizu s bazenom
- 495.000€ 112 m2
Njivice, dvojna kuća s dva apartmana, prilika!
- 425.000€ 130 m2
Njivice
- 650.000€ 350 m2
Njivice - prodaja prostrane kuće s pogledom na more!
- 675.000€ 217 m2
Njivice – kuća na prodaju s pogledom na more!
- 680.000€ 197 m2
Prodaja kuće s pogledom na more – Njivice
- 685.000€ 217 m2
Njivice - prodaja luće sa okućnocom, parking, balkon !
- 685.000€ 217 m2
Otok Krk, Njivice, samostojeća kuća, pogled na more
- 685.000€ 155 m2
Otok Krk, Njivice - Samostojeća kuća sa velikom okućnicom
- 790.000€ 386 m2
OTOK KRK, NJIVICE - Dvojna kuća s pogledom na more, 276m2
- 790.000€ 276 m2
Njivice kuća
- 790.000€ 400 m2
NJIVICE, OTOK KRK, KUĆA SA POGLEDOM NA MORE I GARAŽOM
- 790.000€ 276 m2