Istra, Poreč, luksuzan stan s bazenom, 77.03m2, 2s+db
Poreč
468.800€
6 088 €/m2
Tip
Stan
Površina
77 m2
Struktura
3
Detalji
- Tip
- Stan
- Struktura
- 3
- Cijena
- 468.800€
- Površina
- 77 m2 (6 088 €/m2)
- Kat
- Prizemlje
- Terasa
- Da
- Udaljenost od mora
- 800m
- Parkirno mjesto
- Da
- Ažuriran
- 29.04.2026
- ID
- 78188
Opis
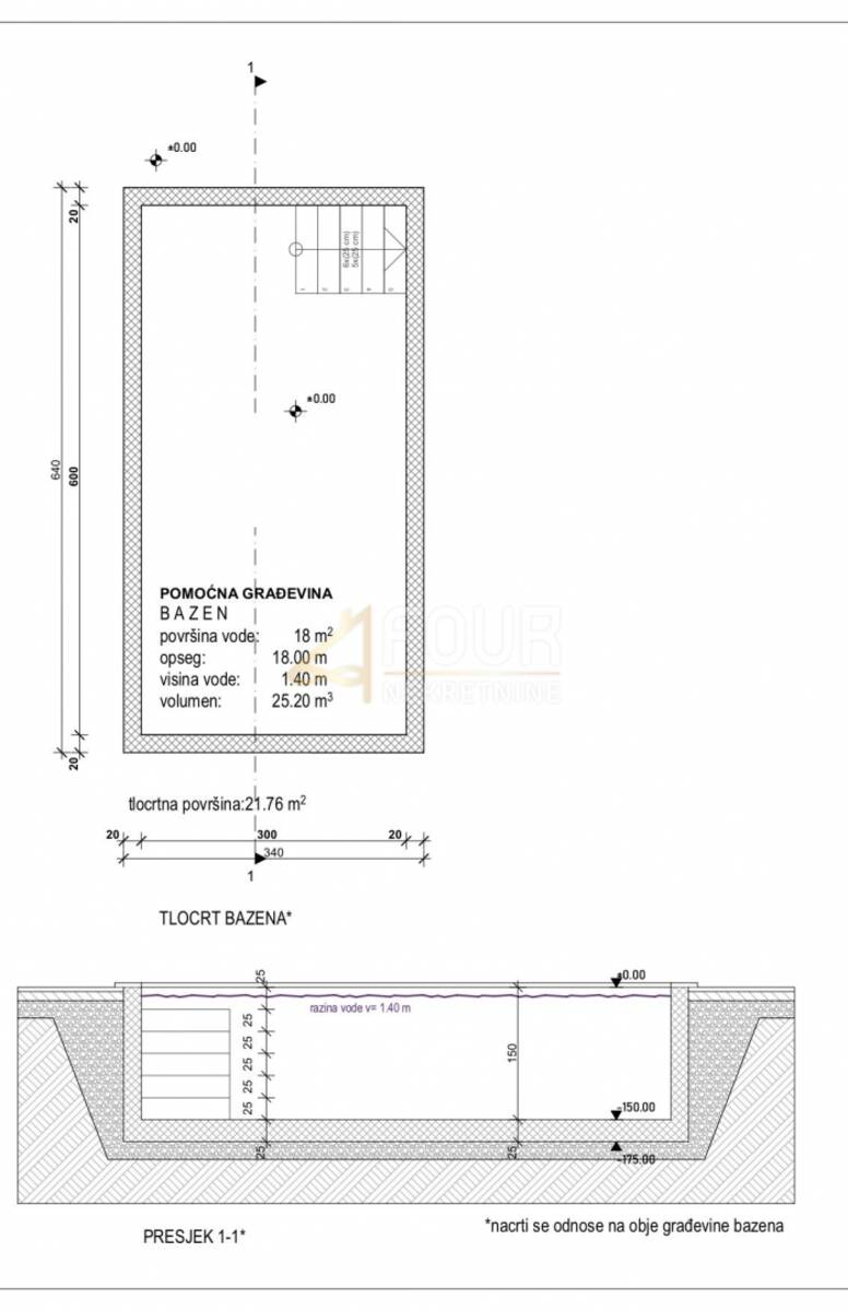
Luksuzni stan s privatnim bazenom – Savršen spoj udobnosti i moderne gradnje.
Na prodaju je atraktivan stan u novogradnji, površine 77.03m2, smješten na izvrsnoj lokaciji, svega 800 metara od mora. Ovaj luksuzni stan s privatnim bazenom nudi vrhunski kvalitetan životni prostor u srcu prirode i blizini svih sadržaja.
Sastoji se od dvije spavaće sobe, prostranog dnevnog boravka, kuhinje s blagovaonicom, dvije kupaonice te degažmana. Posebnost ove nekretnine je terasa od 8.93m2 s jugo-zapadnom orijentacijom, koja omogućava uživanje u sunčanim danima.
U izgradnji koja je planirana za 2026. godinu, postavljeni su najnoviji standardi u tehnologiji i opremi: podno grijanje, klima uređaj, dizalica topline, alu stolarija, protuprovalna vrata, električne rolete i kotlovnica, što osigurava visoku energetsku učinkovitost i udoban boravak tijekom cijele godine.
Za potpunu privatnost, stan ima zaseban ulaz, dok su dva vanjska parkirna mjesta osigurana za vlasnike. Privatni bazen bit će pravo osvježenje tijekom vrućih ljetnih dana, a blizina mora omogućava uživanje u svim čarima obale.
Ova nekretnina predstavlja savršenu priliku za sve koji traže moderan, luksuzan dom s privatnim sadržajem. Ne propustite priliku postati vlasnikom ovog ekskluzivnog stana!
Poštovani klijenti, agencijska provizija naplaćuje se u skladu s Općim uvjetima poslovanja.
ID KOD AGENCIJE: S3085
Ured Istra
Mob: + 38599444... Prikaži broj
E-mail: info@four-nekretnine.hr
www.four-nekretnine.hr
Kontakt info
- Agencija
-
Four Nekretnine d.o.o.
- Reg. posrednika br.
- 040441798
- Kontakt osoba
- Four Nekretnine
- Telefon 1
- 05161... Prikaži broj
- Telefon 2
- 38591494... Prikaži broj
- Adresa
- Trpimirova 4A
- Centar
- Rijeka, Hrvatska
Slične nekretnine
Istra, Poreč, luksuzan stan s bazenom, 77.03m2, 2s+db
- 468.800€ 77 m2
Istra, Poreč, luksuzan stan s bazenom, 77.03m2, 2s+db
- 468.800€ 77 m2
Istra, Poreč, luksuzan stan s bazenom, 77.03m2, 2s+db
- 468.800€ 77 m2
ISTRA, POREČ - Penthouse na top lokaciji
- 465.000€ 177 m2
ISTRA, POREČ - Moderan stan sa pogledom na more
- 473.750€ 86 m2
Poreč, izvrstan PENTHOUSE sa pogledom na more!
- 475.000€ 126 m2
Poreč, izvrstan stan sa pogledom na more!
- 475.000€ 137 m2
Prostrani luksuzni stan na elitnoj lokaciji, Poreč
- 475.000€ 138 m2
Istra, Poreč – Moderan stan s krovnom terasom i pogledom na more
- 475.000€ 126 m2