Prodajemo luksuzni stan iz kojeg se pruža predivan pogled na more! Stan se...
Tar, Poreč
437.750€
3 367 €/m2
Tip
Stan
Površina
130 m2
Struktura
3
Detalji
- Tip
- Stan
- Struktura
- 3
- Cijena
- 437.750€
- Površina
- 130 m2 (3 367 €/m2)
- Površina zemljišta
- 0
- Kat
- 1
- Ukup. katova
- 2
- Udaljenost od mora
- 3000m
- Parkirno mjesto
- Da
- Ažuriran
- 22.05.2026
- ID
- 98548
Opis
Prodajemo luksuzni stan iz kojeg se pruža predivan pogled na more!
Stan se nalazi u zgradi sa sveukupno 4 stana.
Stan se proteže na 2 kata.
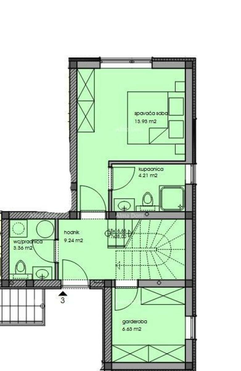
U doljnem katu stana oznake 3 se nalazi hodnik, praona s WC-om, odvojena velika garderoba i spavaća soba sa svojim kupatilom.
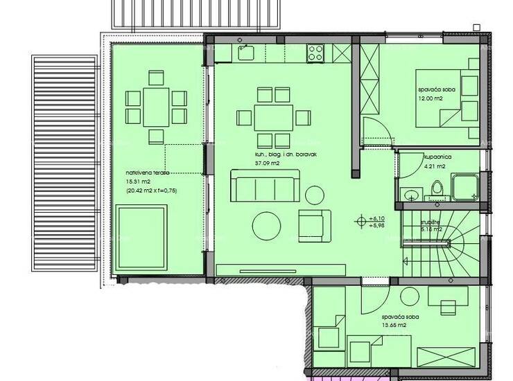
Iz hodnika stubištem se ide na gornji kat stana na kojem se nalaze dnevni boravak s kuhinjom i blagovaonom otvorenog tipa s izlazom na prostranu natkrivenu terasu, gdje je predviđeno korištanje jacuzzi-a, 2 spavaće sobe i kupaonica.
Doljni kat stana 3 (1.kat zgrade):
- hodnik 9.24 m2
- spavaća soba 13.93 m2
- kupaonica 4.21m2
- WC/praonica 3.36 m2
- garderoba 6,63 m2
- stubište 5.18 m2
Gornji kat stana 3:
- kuhinja, blagovaona i dnevni boravak 37,09m2
- natkrivena terasa 20,42 m2*koef.0,75=15,32 m2
- spavaća soba 12,00m2
- spavaća soba 13,65 m2
- kupaonica 4.21 m2
UKUPNO STAN 3 - 124,82m2
Parkirno mjesto 3 - 12.50m2*koef.0,50=2.50 m2
Spremište 3 - 6,51m2*koef.0,50=3.26 m2
UKUPNO 130,57 m2
Useljenje je 5/2024 god.
Nazovite nas i rezervirajte stan!
Info:
+ 385 91 611 ... Prikaži broj
+ 385 9842... Prikaži broj
azra@almadominvest.com
Kontakt info
- Agencija
-
Alma Dom
- Kontakt osoba
- Alma Dom
- Telefon 1
- + 385 52 213... Prikaži broj
- Telefon 2
- + 385 52 210... Prikaži broj
- Adresa
- Istarska 10
- Pula, Hrvatska