Poreč, okolica, zemljište sa dozvolom za 5 kuća u nizu
Poreč
450.000€
255 €/m2
Tip
Zemljiste
Površina
1759 m2
Detalji
- Tip
- Zemljiste
- Cijena
- 450.000€
- Površina
- 1759 m2 (255 €/m2)
- Ažuriran
- 11.05.2026
- ID
- 105134
Opis
Poreč, okolica – Građevinsko zemljište s dozvolom za 5 kuća u nizu
U mirnom naselju u okolici Poreča, na ugodnoj udaljenosti od grada i mora, smješteno je zemljište koje nudi idealan spoj privatnosti i dostupnosti.
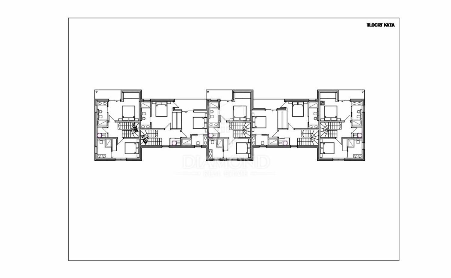
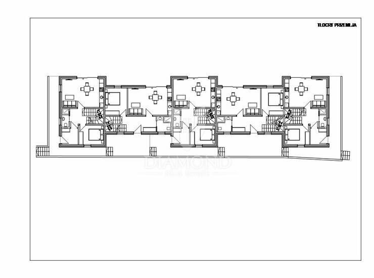
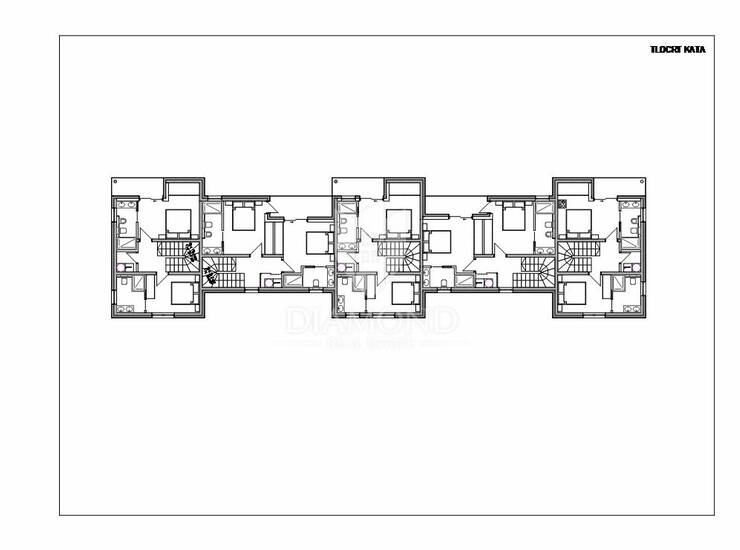
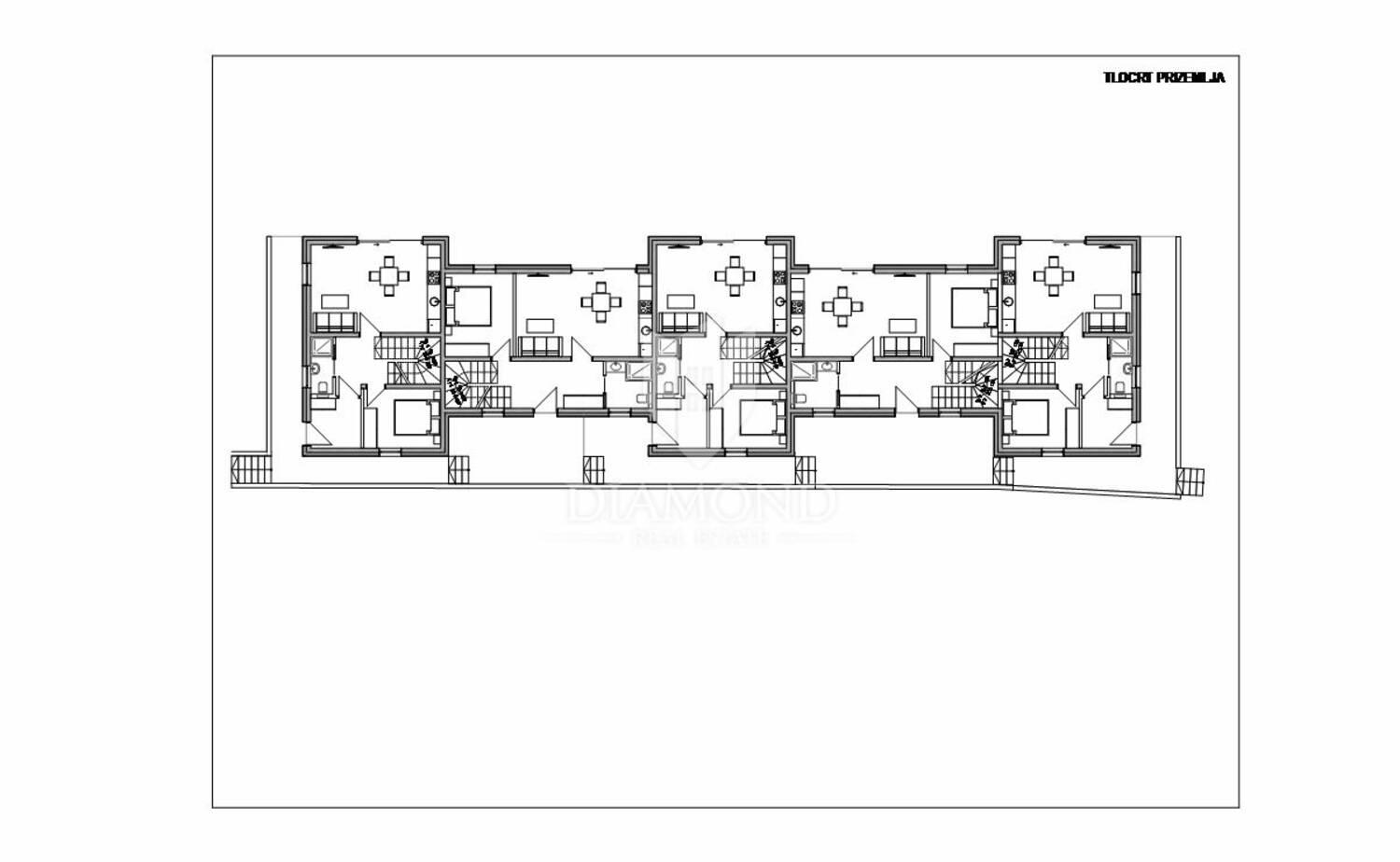
Na prodaju je građevinsko zemljište površine cca 1.760 m², pravilnog oblika, s pravomoćnom građevinskom dozvolom za izgradnju 5 kuća u nizu. Projekt je koncipiran kao moderna i funkcionalna cjelina, prilagođena današnjim potrebama tržišta.
Svaka kuća projektirana je na dvije etaže, ukupne površine oko 120 m²:
Sastoji se od prizemlja s dnevnim boravkom, kuhinjom i blagovaonicom s izlazom u vrt, jednom spavaćom sobom i gostinjskim toaletom, Na katu su dvije spavaće sobe, svaka sa svojom kupaonicom.
Dostupna su dva parkirna mjesta po svakoj jedinici
Riječ je o projektu koji je već pripremljen i spreman za realizaciju – bez čekanja, bez nepoznanica.
Pozicija, raspored i tipologija nekretnina jasno su usmjereni prema tržištu koje traži funkcionalne kuće u blizini Poreča.
Za detalje, projektnu dokumentaciju i daljnje informacije – stojim na raspolaganju.
ID KOD AGENCIJE: 1032-304
Kontakt info
- Agencija
-
Diamond Real Estate
- Kontakt osoba
- Robert Pinzan
- Telefon 1
- + 385 (0)52 210... Prikaži broj
- Adresa
- Partizanska 5A
- Poreč, Hrvatska
Slične nekretnine
Prodaje se zemljište s građevinskom dozvolom – Tar, Poreč
- 450.000€ 120000 m2
Poreč, okolica, 4 zemljišta za izgradnju kuća!
- 445.000€ 4923 m2
Poreč – ekskluzivno zemljište 1.265 m², 500 m od mora!
- 442.750€ 1265 m2
ISTRA,POREČ(OKOLICA) - Građevinsko zemljište u centru naselja
- 465.305€ 3209 m2
Poreč, okolica, zemljište sa započetom gradnjom na iznimnoj lokaciji!
- 470.000€ 11564 m2
Poreč, okolica, prostrano građevinsko zemljište u mirnom mjestu!
- 426.500€ 3612 m2
Poreč, okolica, 4 zemljišta za izgradnju kuća!
- 420.000€ 3366 m2
Poreč, okolica, zemljište sa projektom na 100 m od mora!
- 420.000€ 376 m2
Poreč, prostrano građevinsko zemljište
- 418.000€ 2200 m2
Poreč, građevinsko zemljište na traženoj lokaciji!
- 415.000€ 1028 m2
Jedinstvena pozicija zemljišta u prirodi, okružena šumom, Istra, Poreč
- 410.000€ 12550 m2