ISTRA, PULA - Stan u novogradnji s terasom
Štinjan, Pula
223.129€
3 914 €/m2
Tip
Stan
Površina
57 m2
Struktura
3
Detalji
- Tip
- Stan
- Struktura
- 3
- Cijena
- 223.129€
- Površina
- 57 m2 (3 914 €/m2)
- Kat
- 1
- Grijanje
- Sustav grijanja, klimatizacije i ventilacije
- Terasa
- Da
- Udaljenost od mora
- 800m
- Parkirno mjesto
- Da
- Ažuriran
- 30.04.2026
- ID
- 107416
Opis
ISTRA, PULA - Stan u novogradnji s terasom
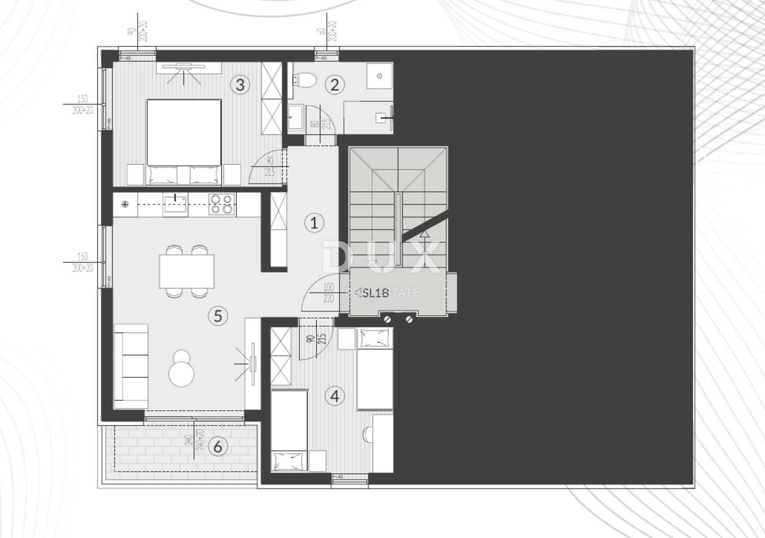
U sklopu modernog stambenog projekta u Štinjanu, na prodaju je stan stambene površine 54,01 m² smješten u prvom katu manje stambene građevine s ukupno četiri stambene jedinice, što osigurava dodatnu privatnost i mirno okruženje.
Ulaz je osiguran iz skupnog stubišta.
RASPORED STANA
- Hodnik + garderoba — 6,28 m²
- Dnevni boravak + kuhinja + blagovaonica — 18,46 m²
- Spavaća soba — 10,32 m² (južna orijentacija)
- Spavaća soba — 12,15 m² (zapadna orijentacija)
- Kupaonica — 4,46 m²
- Natkrivena terasa — 2,34 m²
Dodatna vrijednost koja je uključena u cijeni
- Parkirno mjesto PM1 — 12,50 m² po koef. 0,25 - 3,12 m²
Stan je dio moderne novogradnje planirane izgradnje 2028. godine, koja nudi visoku kvalitetu gradnje, suvremenu arhitekturu i mogućnost odabira završnih materijala.
PREDNOSTI STANA
*Parkirno mjesto
*Funkcionalan raspored
*Mirna lokacija
*Idealno za stanovanje ili investiciju
*Novogradnja visoke kvalitete
*Omogućena personalizacija kupaonskih pločica i podnih obloga, sve keramičke pločice su I. klase renomiranih talijanskih proizvođača.
Ovaj stan predstavlja idealnu priliku za miran obiteljski život, ali i sigurnu investiciju na jednoj od najperspektivnijih lokacija u okolici Pule.
Za više informacija o projektu i dostupnosti slobodno nas kontaktirajte.
Poštovani klijenti, agencijska provizija naplaćuje se u skladu s Općim uvjetima poslovanja:
www.dux-nekretnine.hr
Kontakt info
- Agencija
-
DUX NEKRETNINE
- Kontakt osoba
- Dux Nekretnine
- Telefon 1
- + 385 51 518... Prikaži broj
- Telefon 2
- + 385 91 480 ... Prikaži broj
- Adresa
- Tizianova 8
- Rijeka, Hrvatska
Slične nekretnine
ISTRA, PULA - Stan u novogradnji s lođom
- 223.130€ 58 m2
Dvosoban stan, novogradnja, Štinjan - 2. kat, 58,10m2
- 223.100€ 58 m2
Štinjan - stan na 1. katu - TOP lokacija
- 223.100€ 58 m2
Novogradnja na atraktivnoj lokaciji
- 223.100€ 55 m2
Stan u izgradnji Štinjan – idealno za život ili investiciju
- 220.515€ 58 m2
Stan u izgradnji Štinjan – moderan stan blizu mora
- 220.515€ 57 m2
Stan u blizini mora i plaže - 2. kat
- 228.250€ 61 m2
Atraktivna novogradnja - Štinjan
- 228.250€ 61 m2
ISTRA, PULA - Stan u novogradnji s terasom
- 217.940€ 58 m2
ISTRA, PULA - Stan u novogradnji s lođom
- 217.940€ 58 m2
ISTRA, PULA - Dvosoban stan u novogradnji s vrtom
- 228.318€ 61 m2