ISTRA, ROVINJ - Prostrani stan od 192 m2 500m od mora!
Rovinj
1.648.050€
8 583 €/m2
Tip
Stan
Površina
192 m2
Struktura
4
Detalji
- Tip
- Stan
- Struktura
- 4
- Cijena
- 1.648.050€
- Površina
- 192 m2 (8 583 €/m2)
- Kat
- 1
- Terasa
- Da
- Udaljenost od mora
- 500m
- Garaža
- Da
- Ažuriran
- 27.01.2026
- ID
- 81588
Opis
ISTRA, ROVINJ - Prostrani stan od 192 m2 500m od mora!
ROVINJ - Grad smješten na zapadnoj obali istarskog poluotoka, nekad je bio luka i ribarsko naselje, a danas je jedna od najrazvijenijih turističkih destinacija sa svojom jedinstvenom kombinacijom tradicionalnog i modernog. Uspješno spaja tradiciju ribarskog mjesta s modernim turističkim trendovima, bogatom gastronomskom ponudom i visokim standardom turističke usluge. Upravo zbog toga privlači brojne posjetitelje iz godine u godinu i bilježi rekordnih 3 milijuna noćenja tijekom sezone.
Zbog svojih prirodnih ljepota kao što su brojni otoci koji ga okružuju i kristalno čisto more, gosti mu se svake godine iznova vraćaju.
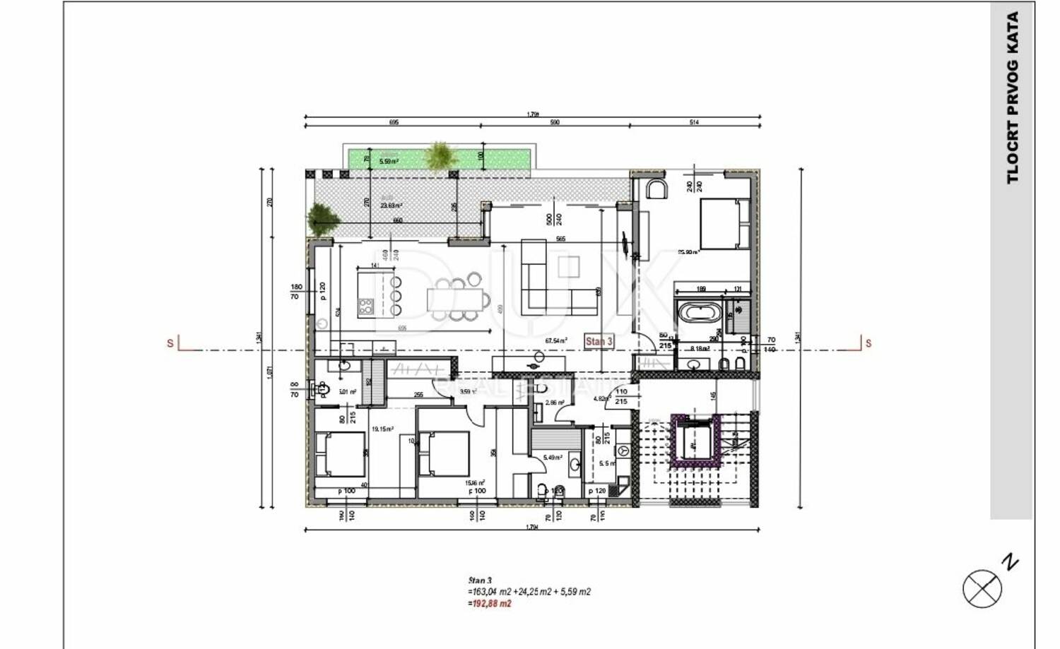
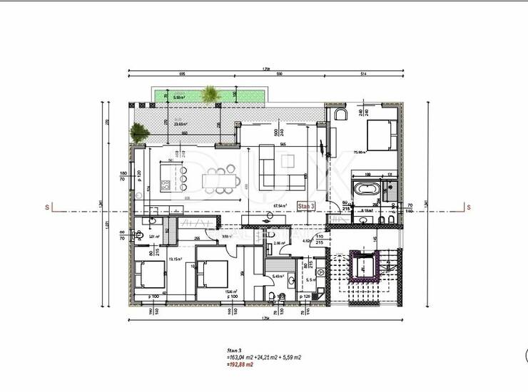
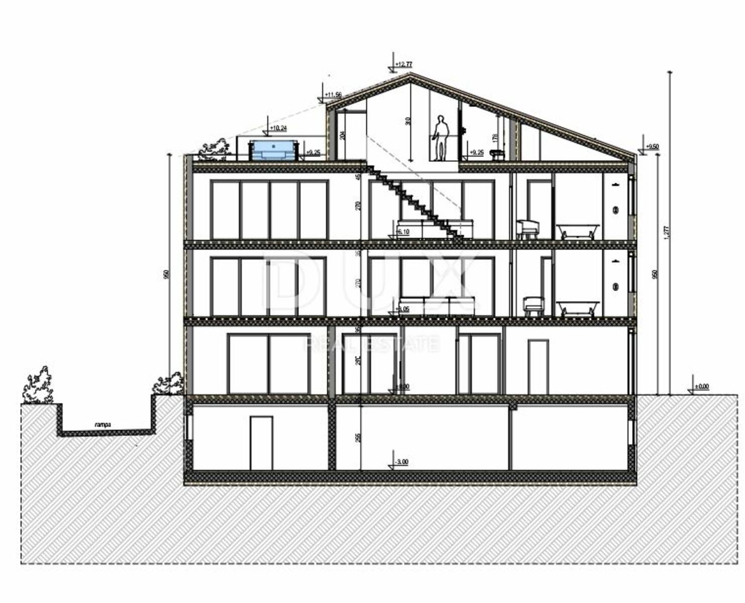
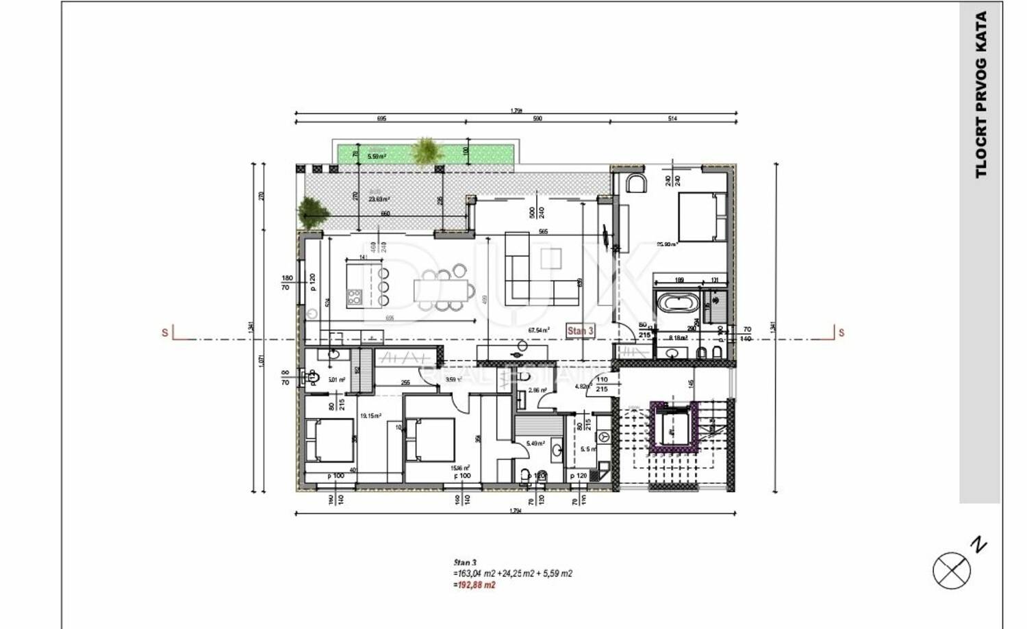
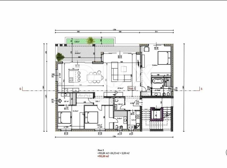
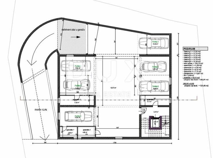
U ponudi imamo stan na prvom katu manje stambene zgrade sa samo 4 stana. Ima sveukupnu površinu od 192,88 m2 a sastoji se od ulaznog hodnika, 3 spavaće sobe svaka sa svojom vlastitom kupaonicom, WC sa praonicom, kuhinje sa blagovaonicom i prostranim dnevnim boravkom (ukupne površine 163 m2) iz kojeg se putem velikih staklenih stijena vrši komunikacija sa vanjskim dijelom tj. prostranom natkrivenom terasom od 24 m2.
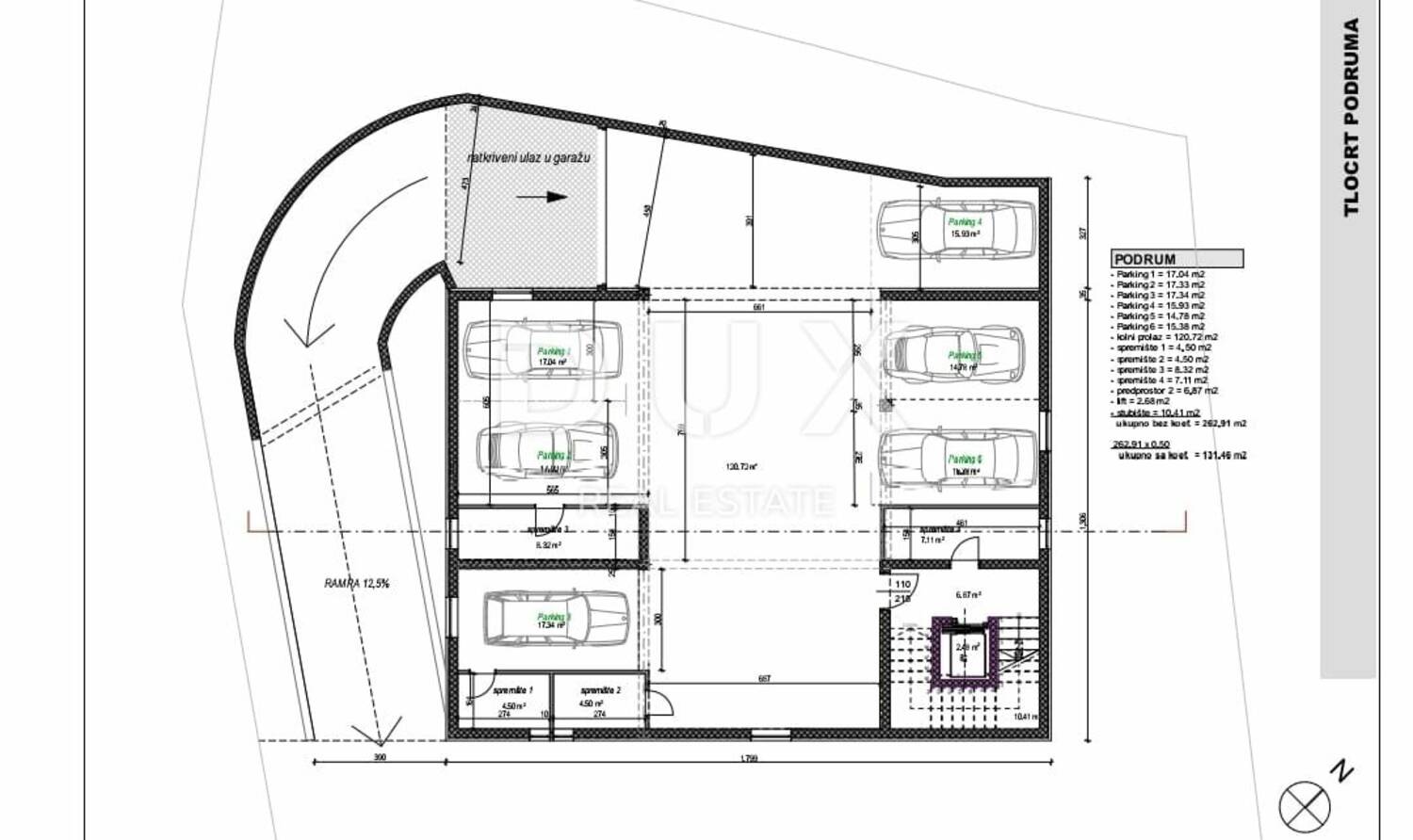
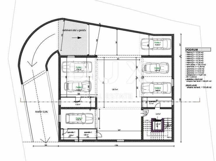
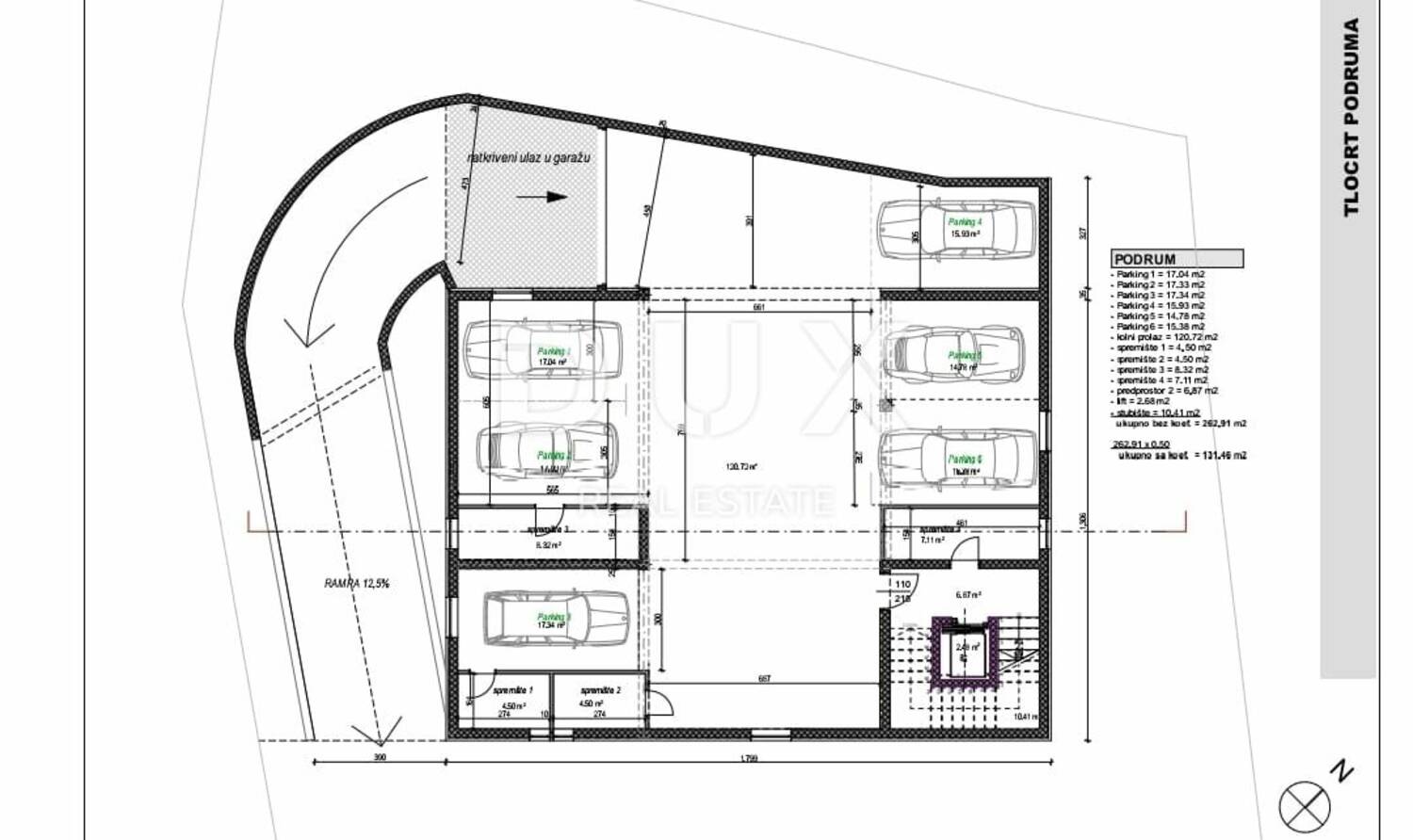
Stanu pripada strojarnica površine 7,11 m2 i garaža površine 14,78 m2 + 15,38 m2.
Zgrada ima lift koji povezuje sve etaže počev od garaže.
Stan se nalazi na udaljenosti od 500 m od mora i glavne šetnice.
U neposrednoj blizini nalaze se svi sadržaji kao što su trgovine, tržnica, javne ustanove, restorani, caffe barovi.
Cijena na upit!
Ne propustite ovu prili
Kontakt info
- Agencija
-
DUX NEKRETNINE
- Kontakt osoba
- Dux Nekretnine
- Telefon 1
- + 385 51 518... Prikaži broj
- Telefon 2
- + 385 91 480 ... Prikaži broj
- Adresa
- Tizianova 8
- Rijeka, Hrvatska
Slične nekretnine
ISTRA, ROVINJ - luksuzni stan nadomak centra sa garažom
- 1.575.000€ 210 m2
Luksuzni novi stan u centru Rovinja
- 1.575.000€ 210 m2
Rovinj, tri atraktivna apartmana u prvom redu do mora
- 1.520.000€ 205 m2
Penthouse s pogledom u blizini centra i mora, Rovinj
- 1.395.000€ 227 m2
ROVINJ - luksuzni penthouse udaljen 400m od mora
- 1.395.000€ 155 m2
Rovinj, luksuzni stan u prizemlju sa velikim vrtom
- 1.373.960€ 136 m2
Ekskluzivni stan u prizemlju s prostranom terasom i privatnim vrtom
- 1.364.450€ 146 m2
Ekskluzivna novogradnja u Rovinju - blizina mora i centra
- 1.353.100€ 149 m2
Nova luksuzna rezidencija na atraktivnoj lokaciji u Rovinju
- 1.305.750€ 142 m2
Stan I.red do mora na traženoj lokaciju u Rovinju
- 1.300.000€ 158 m2
Rovinj, luksuzni stan na neponovljivoj lokaciji
- 2.000.000€ 125 m2
Rovinj, luksuzna novogradnja na prvom katu blizu mora
- 1.293.300€ 149 m2