ŠIBENIK, BRODARICA – 2. red uz more, pogled, terasa, NOVOGRADNJA!
Brodarica, Šibenik
421.000€
6 378 €/m2
Tip
Stan
Površina
66 m2
Struktura
3
Grijanje
Sustav grijanja, klimatizacije i ventilacije
Detalji
- Tip
- Stan
- Struktura
- 3
- Cijena
- 421.000€
- Površina
- 66 m2 (6 378 €/m2)
- Kat
- 1
- Grijanje
- Sustav grijanja, klimatizacije i ventilacije
- Terasa
- Da
- Udaljenost od mora
- 50m
- Parkirno mjesto
- Da
- Ažuriran
- 28.04.2026
- ID
- 107206
Opis
ŠIBENIK, BRODARICA – 2. red uz more, pogled, terasa, NOVOGRADNJA!
Blizina mora na svega nekoliko koraka (2. red uz more) i otvoren pogled na more s terase – upravo ta kombinacija čini ovaj stan u Brodarici, jednoj od najtraženijih lokacija u okolici Šibenika, toliko privlačnim.
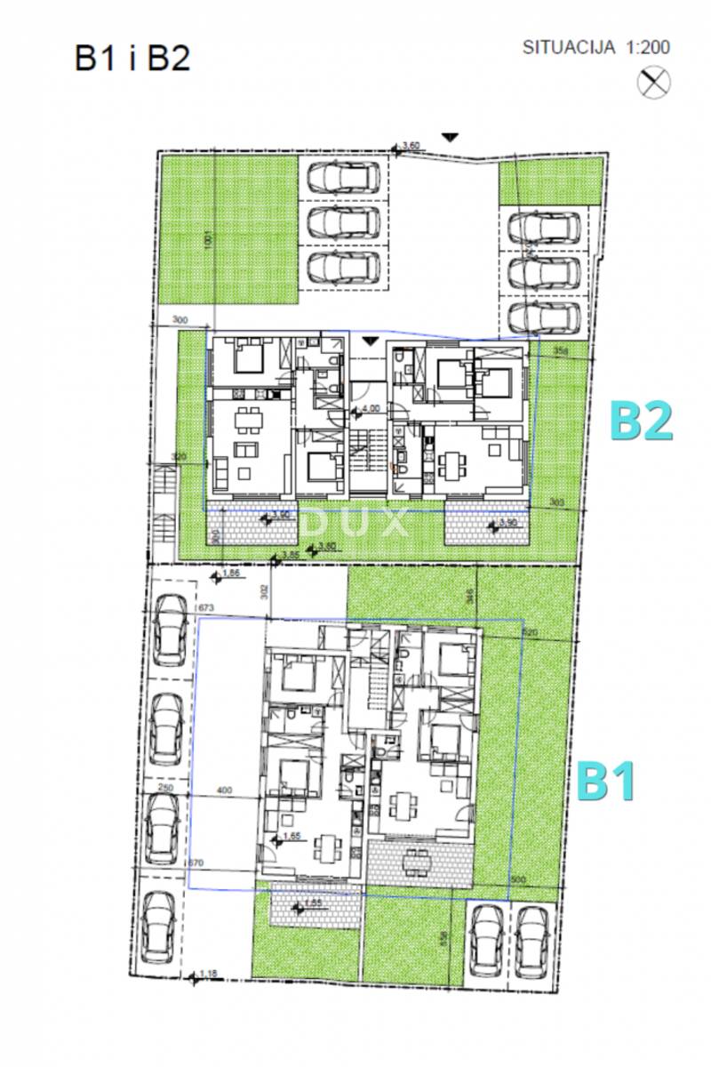
Projekt se sastoji od dvije manje zgrade s po 6 stanova, raspoređenih kroz prizemlje i dva kata, što znači samo 2 stana po etaži i značajno više privatnosti.
Zgrade su pozicionirane u 1. i 2. redu uz more, pri čemu svi stanovi imaju pogled na more. Ova mikrolokacija donosi ono što je najteže pronaći – neposrednu blizinu mora bez kompromisa i dugoročno jednu od najvrjednijih pozicija na tržištu.
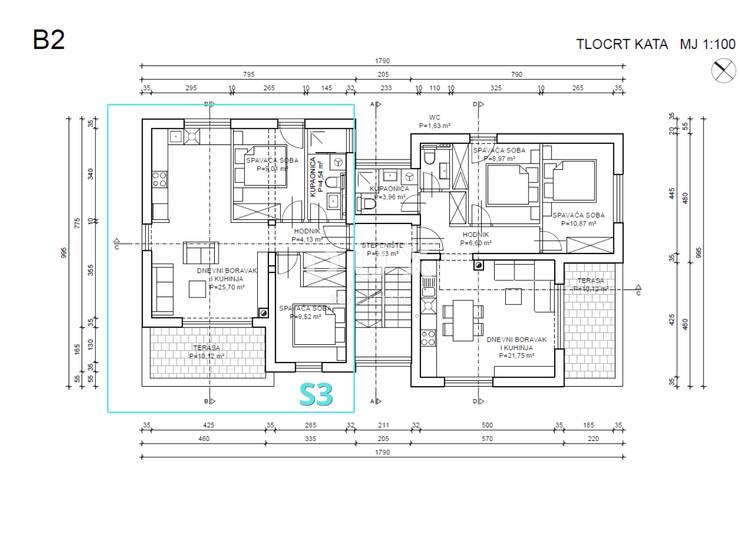
Stan S3 nalazi se na 1. katu zgrade B2 (2. red uz more), ima 66,77 m² neto površine (63,20 m² unutarnje stambene površine) i južne je orijentacije.
Sastoji se od 2 spavaće sobe, hodnika, kupaonice te dnevnog boravka s kuhinjom i blagovaonicom koji se prirodno otvara prema terasi s pogledom na more.
Velika staklena stijena u dnevnom prostoru, u kombinaciji sa staklenim ogradama na terasi, dodatno naglašava pogled na more i stvara snažan osjećaj povezanosti interijera s vanjskim prostorom.
RASPORED
• open space dnevni boravak s kuhinjom i blagovaonicom
• izlaz na terasu s prekrasnim otvorenim pogledom na more
• 2 spavaće sobe
• kupaonica
• parkirno mjesto
KVALITETA GRADNJE I OPREMA
• podno grijanje (dnevni dio + kupaonica)
• klima uređaji u svim
Kontakt info
- Agencija
-
DUX NEKRETNINE
- Kontakt osoba
- Dux Nekretnine
- Telefon 1
- + 385 51 518... Prikaži broj
- Telefon 2
- + 385 91 480 ... Prikaži broj
- Adresa
- Tizianova 8
- Rijeka, Hrvatska
Slične nekretnine
Penthouse, 150 m od mora - novogradnja
- 440.000€ 131 m2
BRODARICA, PENTHOUSE, PREDIVAN POGLED NA MORE, 100M OD MORA
- 440.000€ 131 m2
BRODARICA- STAN SA NEVJEROJATNIM POGLEDOM NA MORE- 6B
- 396.999€ 99 m2
BRODARICA- TROSOBNI STAN NA PRVOM KATU- NOVI PROJEKT- 4B
- 456.000€ 114 m2
Dvosobni stanovi, 1. red od mora - novogradnja
- 470.000€ 72 m2