SVETVINČENAT, GRAĐEVINSKO ZEMLJIŠTE SA GRAĐEVINSKOM DOZVOLOM
Svetvinčenat
110.000€
134 €/m2
Tip
Zemljiste
Površina
820 m2
Detalji
- Tip
- Zemljiste
- Cijena
- 110.000€
- Površina
- 820 m2 (134 €/m2)
- Ažuriran
- 16.10.2025
- ID
- 93090
Opis
SVETVINČENAT, u ponudi imamo građevinsko zemljište pravilnog oblika površine 820 m², smješteno u mirnom okruženju s pogledom na zelenilo. Idealna lokacija za one koji traže privatnost, mir i sklad s prirodom, a pritom žele moderan dom po mjeri suvremenog života.
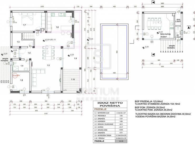
Građevinska dozvola odnosi se na kuću koja se sastoji od prizemlja, kata, ljetne kuhinje i bazena.
PRIZEMLJE se sastoji od:
- natkrivenog ulaza 2.13 x 0.50 =1.07 m2
- predsoblja 3.56 m2
- spremišta 5.33 m2
- kupaonice 4.98 m2
- dnevnog boravka i blagovaonice 48.57 m2
- kuhinje 13.17 m2
- spavaće sobe 15.83 m2
- spremišta 8.72 m2
- natkrivene terase17.10 x 0.50 =8.55m2
- pergole 10.20 x 0.25 =2.55
PRIZEMLJE UKUPNO: 112.33 m2
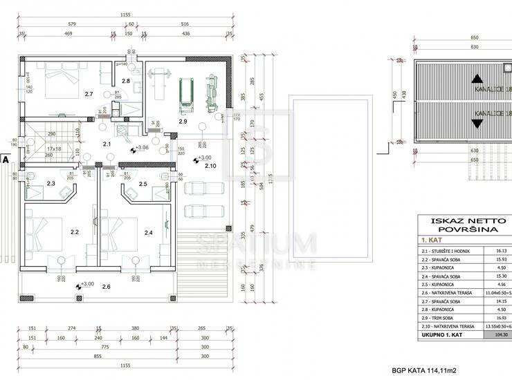
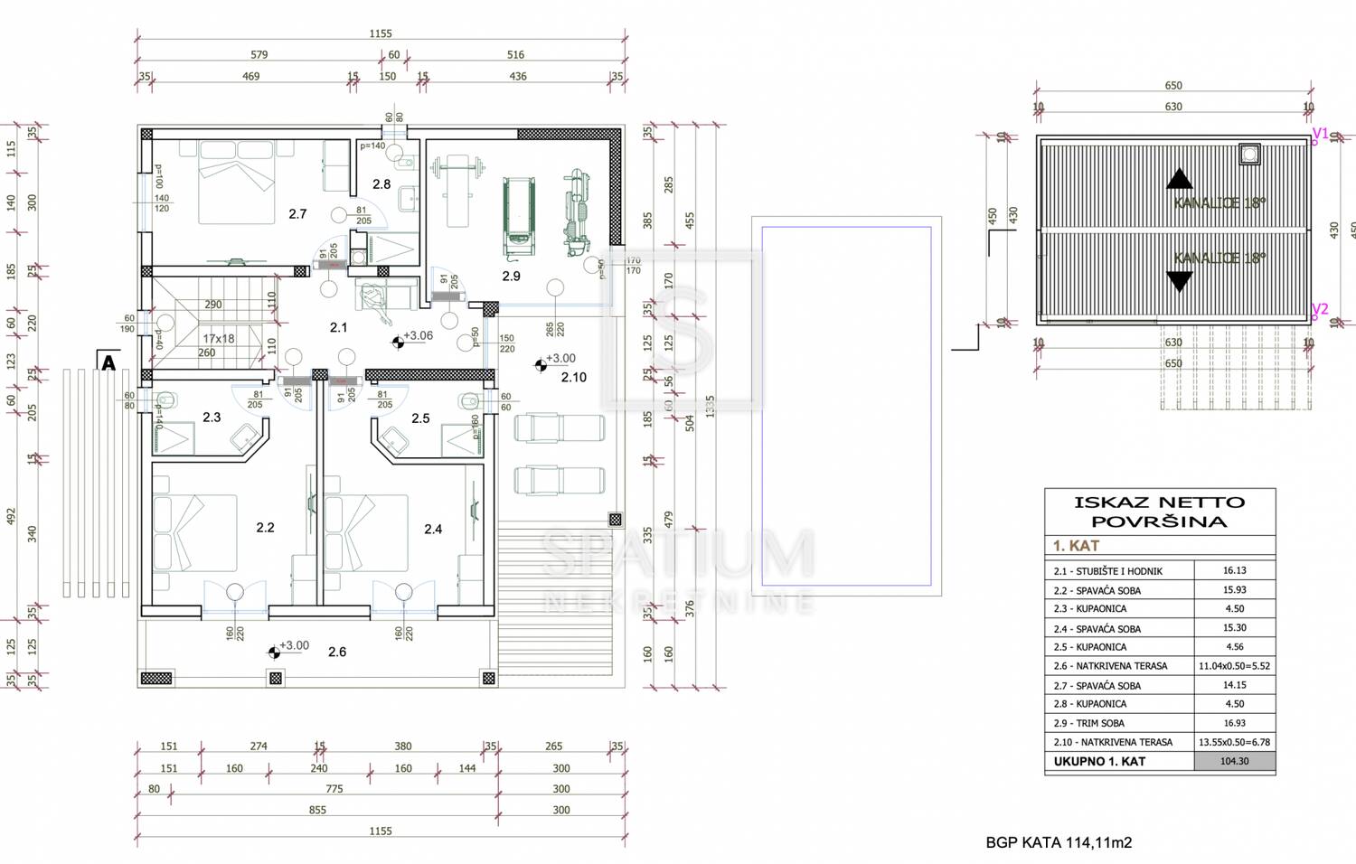
KAT se sastoji od:
- stubište i hodnik 16.13 m2
- spavaća soba 15.93 m2
- kupaonica 4.50 m2
- spavaća soba 15.30 m2
- kupaonica 4.56 m2
- natkrivena terasa 11.04 x 0.50 =5.52 m2
- spavaća soba 14.15 m2
- kupaonica 4.50 m2
- trening soba 16.93 m2
- natkrivena terasa 13.55 x 0.50 =6.78
KAT UKUPNO: 104.30 m2
Ukupno prizemlje i kat: 216.63 m2
Pomoćna zgrada (ljetna kuhinja, wc i strojarnica): 29.25 m2
BAZEN je veličine 8.50 m x 4 m =34 m2
VODNJAN: 15 min vožnje
BALE: 25 min vožnje
PULA: 25 min vožnje
Svetvinčenat je slikovito istarsko mjesto poznato po svojoj bogatoj povijesti, renesansnom kaštelu Morosini-Grimani i šarmantnom srednjovjekovnom trgu. Smješten u središtu Istre, okružen je netaknutom prirodom, vinogradima i maslinicima, što ga čini savrš
Kontakt info

- Agencija
-
Spatium Nekretnine
- Kontakt osoba
- Vedran Prica
- Telefon 1
- + 385 51 272... Prikaži broj
- Telefon 2
- + 385 95 812 ... Prikaži broj
- Adresa
- Šetalište Andrije Kačića Miošića 5
- Rijeka Centar
- Rijeka, Hrvatska
Slične nekretnine

Svetvinčenat, prekrasno zemljište na super lokaciji
- 109.500€ 1152 m2

Istra, Svetvinčenat, 612m2, zemljište s građevinskom dozvolom
- 109.000€ 612 m2

Istra, Svetvinčenat, poljoprivredno zemljište 8.700m2
- 108.000€ 8700 m2

Građevinsko zemljište od 1536 m2, okolica Svetvinčenta
- 112.000€ 1536 m2

Istra, Svetvinčenat - okolica, zemljište s građevinskom dozvolom
- 115.000€ 502 m2

SVETVINČENAT, ZEMLJIŠTE SA GRAĐEVINSKOM DOZVOLOM
- 105.000€ 750 m2

Prostrano zemljište na mirnoj lokaciji blizu Svetvinčenta
- 105.000€ 1580 m2

Istra, Svetvinčenat - okolica, građevinsko zemljište, 586m2
- 102.000€ 586 m2