ISTRA, VIŠNJAN - Zemljište s građevinskom dozvolom
Višnjan
162.000€
175 €/m2
Tip
Zemljiste
Površina
925 m2
Detalji
- Tip
- Zemljiste
- Cijena
- 162.000€
- Površina
- 925 m2 (175 €/m2)
- Ažuriran
- 13.03.2026
- ID
- 104035
Opis
ISTRA, VIŠNJAN - Zemljište s građevinskom dozvolom
Višnjan je slikovit i živopisan gradić i općina u zapadnom dijelu Istre. Općina Višnjan broji 56 naselja i nalazi na prostoru između rijeke Mirne na sjeveru i Limskog kanala na jugu. Romantični Višnjan smjestio se na blagoj uzvisini od 244 m nadmorske visine okružen livadama, oranicama i šumama hrasta medunca i bijeloga graba. Danas je Višnjan najpoznatiji po svojoj jedinstvenoj zvjezdarnici, koja je po broju otkrivenih asteroida jedna od dvanaest najproduktivnijih zvjezdarnica svijeta svih vremena.
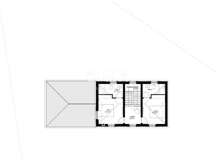
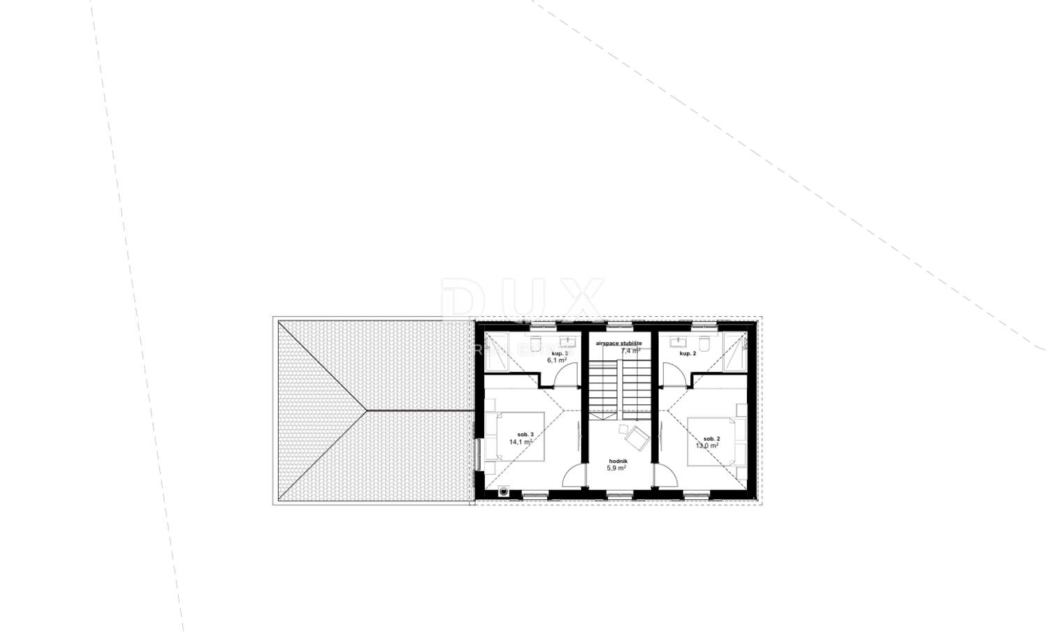
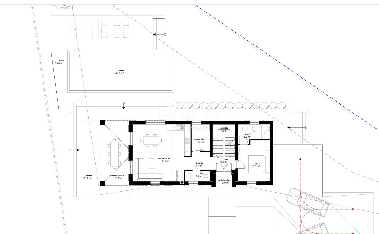
Prodaje se atraktivno građevinsko zemljište površine 925 m² s pravomoćnom građevinskom dozvolom i gotovim projektom moderne obiteljske kuće s bazenom.
Ova nekretnina predstavlja izvrsnu priliku za sve koji žele odmah započeti gradnju bez dugotrajnog procesa ishođenja dozvola i projektiranja.
Projekt je osmišljen u suvremenom arhitektonskom stilu te uključuje funkcionalan raspored prostorija, prostrane staklene površine, terasu i privatni bazen – idealno za ugodan obiteljski život ili luksuznu kuću za odmor.
Komunalna infrastruktura je osigurana, a na zemljištu su dostupni priključci vode i struje, što dodatno olakšava i ubrzava početak gradnje.
Zemljište se prostire na 925 m², pružajući dovoljno prostora za kuću, dvorište, vrt i dodatne sadržaje.
Projekt je pažljivo planiran kako bi maksimalno iskoristio zemljište i osigurao privatnost te kvalitetan boravak na otvoreno
Kontakt info
- Agencija
-
DUX NEKRETNINE
- Kontakt osoba
- Dux Nekretnine
- Telefon 1
- + 385 51 518... Prikaži broj
- Telefon 2
- + 385 91 480 ... Prikaži broj
- Adresa
- Tizianova 8
- Rijeka, Hrvatska
Slične nekretnine
ISTRA,VIŠNJAN - Prostrano zemljište sa pogledom na more
- 165.000€ 1350 m2
Istra, Višnjan - okolica, poljoprivredno zemljište 38.900m2
- 167.000€ 38900 m2
VIŠNJAN, POLJOPRIVREDNO ZEMLJIŠTE S POGLEDOM NA MORE
- 156.000€ 5623 m2
Višnjan, Istra: Građ. zemljište s pogledom na more i dozvolom
- 155.000€ 980 m2
Višnjan, Istra – Građevinska zemljišta na prodaju
- 154.000€ 750 m2
ISTRA, VIŠNJAN, GRAĐEVINSKO ZEMLJIŠTE NA MIRNOJ LOKACIJI
- 149.000€ 1144 m2
Istra, Višnjan - okolica, poljoprivredno zemljište 44.600m2
- 140.000€ 44600 m2
ISTRA, VIŠNJAN - Zemljište s građevinskom dozvolom
- 140.000€ 780 m2
ISTRA, VIŠNJAN - Prostrano poljoprivredno zemljište
- 139.000€ 13835 m2