Vodice - luksuzan dvosobni stan u novogradnji, 500 m od mora i centra grada
Vodice
290.000€
4 084 €/m2
Tip
Stan
Površina
71 m2
Struktura
3
Detalji
- Tip
- Stan
- Struktura
- 3
- Cijena
- 290.000€
- Površina
- 71 m2 (4 084 €/m2)
- Kat
- 1
- Grijanje
- Sustav grijanja, klimatizacije i ventilacije
- Udaljenost od mora
- 500m
- Garaža
- Da
- Parkirno mjesto
- Da
- Ažuriran
- 14.11.2025
- ID
- 95178
Opis
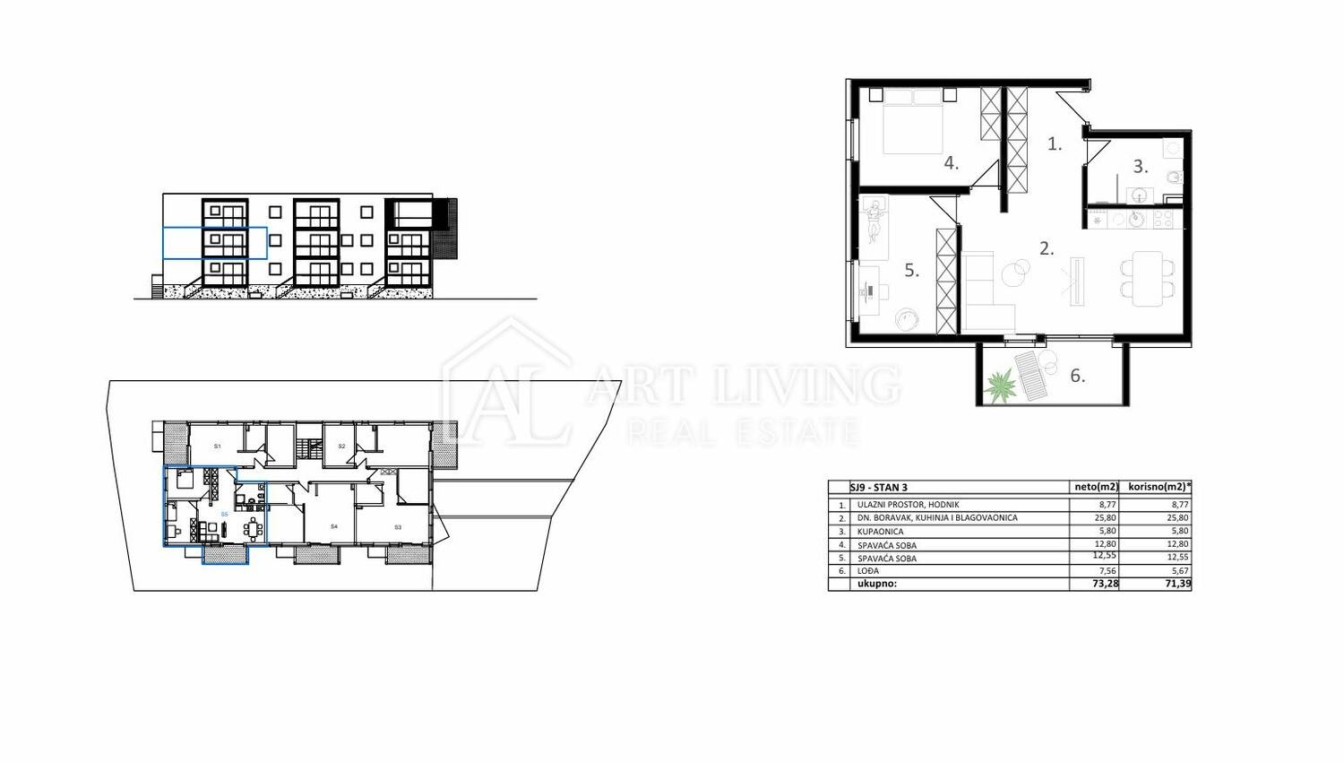
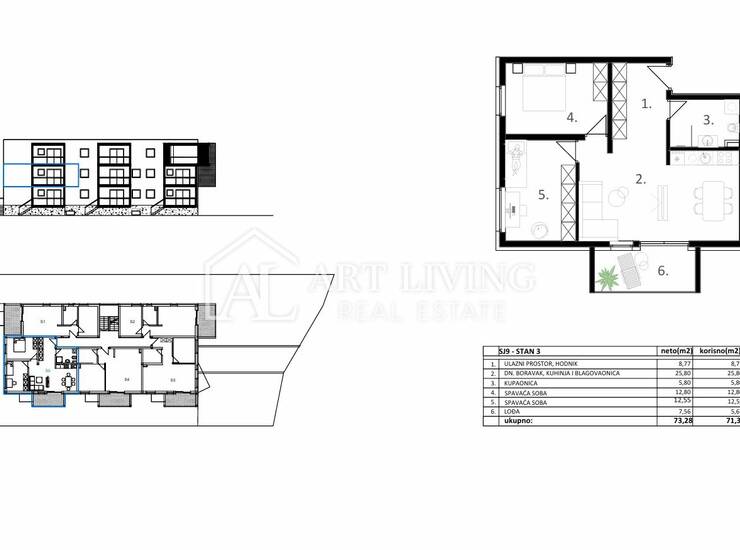
Na odličnoj lokaciji udaljenoj samo cca 500 metara od mora te 400 metara od trgovina i centra Vodica započela je izgradnja moderne i visokokvalitetne stambene zgrade s 14 stambenih jedinica koje su raspoređene na 3 etaže, prizemlje, 1. kat i 2. kat. U suterenu zgrade smještena su garažna mjesta dok se ispred zgrade nalaze otvorena parkirališta.
Stan SJ9, ukupne neto stambene površine 71,39 m2, smješten je na 1. katu stambeno poslovne zgrade. Sastoji se od ulaznog prostora, dnevnog boravka s kuhinjom i blagovaonicom, dvije spavaće sobe, kupaonice te loggie površine 7,56 m2
Stanu pripadaju i dva garažna parkirna mjesta.
Svi stanovi će biti moderno i funkcionalno izgrađeni te opremljeni kvalitetnim sustavima za grijanje i hlađenje.
Nekretnina se nalazi na mirnoj lokaciji u blizini svih bitnih sadržaja te je idealna prilika za sve one koji traže modernu nekretninu pogodnu kako za stanovanje i odmor, tako i za iznajmljivanje u turističke svrhe.
Kupac je oslobođen plaćanja poreza na promet nekretninama.
Završetak radova se očekuje 06/2026. godine.
Poštovani klijenti, moguće je razgledati nekretninu isključivo uz potpisani ugovor o posredovanju koji je temelj za daljnje radnje vezane za kupoprodaju i naplatu provizije, a sve sukladno Zakonu o posredovanju u prometu nekretnina.
Agencija „ART LIVING REAL ESTATE“ kao ovlašteni posrednik u prometu nekretninama, za uslugu posredovanja naplaćuje posredničku naknadu u iznosu od 3% + PD
Slične nekretnine
ŠIBENIK, VODICE - Stan S5 u novogradnji na odličnoj lokaciji
- 289.830€ 96 m2
ŠIBENIK, VODICE - Stan u novogradnji s krovnom terasom S3
- 286.416€ 119 m2
Trosoban dvoetažni stan u Vodicama sa velikom terasom
- 286.392€ 119 m2
ŠIBENIK, VODICE - Stan S1 u novogradnji na odličnoj lokaciji
- 294.750€ 98 m2
ŠIBENIK, VODICE - Dvoetažni stan S3 na mirnoj lokaciji
- 295.000€ 112 m2
VODICE, S3, DVOETAŽNI STAN, NOVOGRADNJA
- 295.000€ 112 m2
Dalmacija, Vodice, moderna novogradnja, 2s+db
- 284.164€ 74 m2
VODICE, S1, STAN U PRIZEMLJU
- 284.164€ 74 m2
VODICE, S4 NA PRVOM KATU S POGLEDOM NA MORE
- 282.500€ 81 m2
VODICE, NOVOGRADNJA ODLIČAN 1S + DB APARTMAN
- 282.000€ 76 m2
Dvosoban apartman u prizemlju s dvorištem, novogradnja
- 282.000€ 76 m2