LABIN, SAMOSTOJEĆA KUĆA S BAZENOM
Labin
320.000€
2 909 €/m2
Tip
Kuća
Površina
110 m2
Struktura
4
Detalji
- Tip
- Kuća
- Struktura
- 4
- Cijena
- 320.000€
- Površina
- 110 m2 (2 909 €/m2)
- Površina zemljišta
- 550
- Terasa
- Da
- Parkirno mjesto
- Da
- Ažuriran
- 20.02.2026
- ID
- 102443
Opis
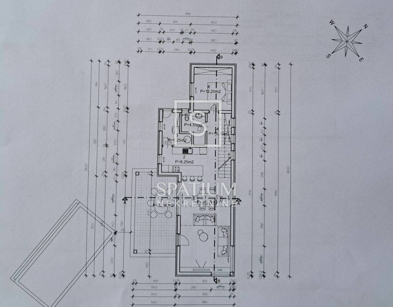
LABIN – u ponudi imamo samostojeću kuću s preljevnim bazenom smještenu na zemljištu površine 550 m². Nekretnina se prodaje po principu "ključ u ruke" i obuhvaća 110 m² stambene površine raspoređene na dvije etaže.
Prizemlje je projektirano kao "open space" prostor u kojem su sjedinjeni kuhinja, blagovaonica i dnevni boravak s izlazom na vanjsku terasu, a na istoj se etaži nalaze još jedna spavaća soba s pripadajućom kupaonicom te spremište. Unutarnje stubište vodi na kat na kojem su smještene dvije spavaće sobe, kupaonica i dodatna terasa.
Vanjski dio objekta uključuje dvije nenatkrivene terase, pri čemu ona u prizemlju iznosi 22,90 m², dok površina terase na katu iznosi 8,80 m². U dvorištu se nalazi preljevni bazen ukupne površine 38,25 m². Za potrebe grijanja i hlađenja predviđeni su klima uređaji s inverterskim sustavom. Nekretnina će se nalaziti na mirnoj lokaciji u okolici Labina u okruženju malog broja objekata.
Labin je grad u istočnoj Istri s uređenom infrastrukturom i dobrom prometnom povezanošću. Nudi sve potrebne sadržaje za svakodnevni život te se nalazi u neposrednoj blizini mora i turističkih zona, što ga čini praktičnim mjestom za stanovanje i ulaganje.
Za sve ostale informacije kao i dogovor oko razgleda obratite se s povjerenjem.
Mario Miletić
Asistent u posredovanju
+ 385 91 763 ... Prikaži broj
mario@spatium.hr
Spatium nekretnine
+ 385 51 272... Prikaži broj
info@spatium.hr
ID KOD AGENCIJE: 7418
Mario Miletić
As
Kontakt info
- Agencija
-
Spatium Nekretnine
- Kontakt osoba
- Vedran Prica
- Telefon 1
- + 385 51 272... Prikaži broj
- Telefon 2
- + 385 95 812 ... Prikaži broj
- Adresa
- Šetalište Andrije Kačića Miošića 5
- Rijeka Centar
- Rijeka, Hrvatska
Slične nekretnine
ISTRA, LABIN - SKITAČA: AUTENTIČNA RENOVIRANA KAMENA KUĆA
- 320.000€ 90 m2
LABIN, OKOLICA, KAMENA KUĆA NA MIRNOJ LOKACIJI
- 320.000€ 90 m2
Labin, okolica, kuća za adaptaciju u blizini mora
- 320.000€ 300 m2
Labin, novoizgrađena prizemnica na top lokaciji
- 324.000€ 108 m2
ISTRA, LABIN - Komforna kuća s dva stana
- 325.000€ 160 m2
Kuća za adaptaciju na super lokaciji u Labinu
- 315.000€ 330 m2
ISTRA, LABIN - Kuća s prostranim građevinskim zemljištem
- 312.000€ 180 m2
Obiteljska kuća za adaptaciju,LABIN
- 311.500€ 336 m2
ISTRA, LABIN - Kuća s garažom i bazenom u izgradnji
- 311.000€ 186 m2
Labin - Restaurirana kamena kuća
- 329.000€ 90 m2
Istra, Labin, moderna prizemnica s bazenom i ljetnom kuhinjom
- 310.000€ 130 m2