RIJEKA, DRENOVA - građevinsko zemljište 6500m2 za gradnju stambenih zgrada -
Drenova, Rijeka
260.000€
40 €/m2
Tip
Zemljiste
Površina
6500 m2
Detalji
- Tip
- Zemljiste
- Cijena
- 260.000€
- Površina
- 6500 m2 (40 €/m2)
- Ažuriran
- 09.12.2025
- ID
- 64918
Opis
RIJEKA, DRENOVA - građevinsko zemljište 6500m2 za gradnju stambenih zgrada - stanova
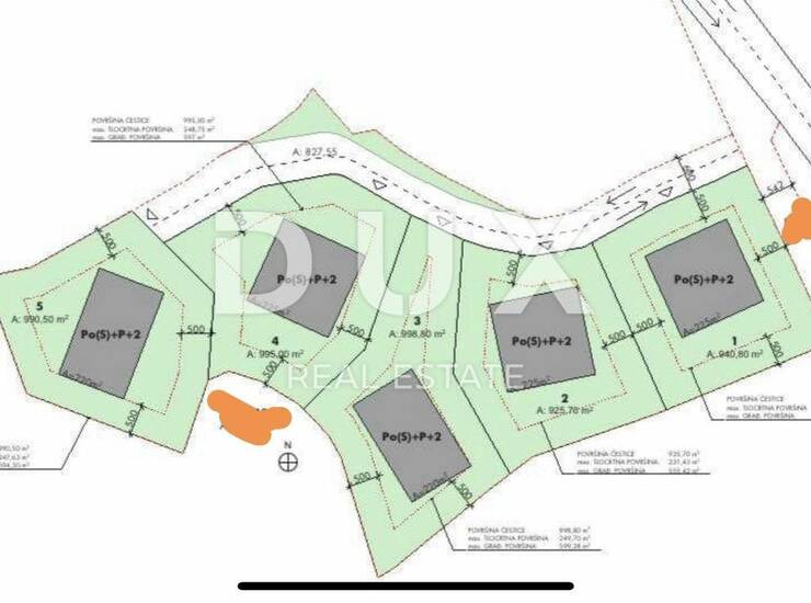
Građevinsko zemljište od 6500 m2 za gradnju 5 objekata.
Zemljište je parcelizirano na 5 manjih terena po 11000 m2.
Svaki objekt može imati max 8 stanova P(0) + S + 2.
Bruto razvijena površina po objektu je cca 600m2.
Teren je konfiguracijski u padu/ima nekoliko padajućih kaskada/ potpuno ravan.
Teren se nalazi na tihoj i mirnoj poziciji i odmah do asfaltiranog puta.
Sve komunalije do terena.
Čisto i uredno vlasništvo.
Dobra prilika za investitore koji se bave izgradnjom stambenih zgrada – stanova
DRENOVA:
Ukoliko želite život ‘punim plućima’ Drenova je riječki kvart o kojem biste trebali razmisliti pri odabiru nekretnine. Ime je dobila po drenu, šumskoj voćki koja raste u drenovskim šumama. Smještena na rubnom području grada predstavlja idealan spoj urbanog i ruralnog.
Povijesno se sstoji od dvije cjeline (Gornje Drenove i Donje Drenove), danas sjedinjene u jednu gradsku četvrt.
Priroda je nešto što većini kvartova nedostaje, a ovaj dio grada odlikuje napretek stoga se već na par koraka od svoje nekretnine možete upustiti u planinarenje, trail trčanje, sportsko penjanje ili jednostavnu opuštajuću šetnju. Upravo navedeno zelenilo osigurava Drenovi epitet najmirnijeg naselja i moto mjesnog odbora - 'Drenova - zelena pluća grada'.
Na području Drenove nalazi se Osnovna škola 'Fran Franković' koja nosi ime prema jednom od najznačajnijih Dr
Kontakt info
- Agencija
-
DUX NEKRETNINE
- Kontakt osoba
- Dux Nekretnine
- Telefon 1
- + 385 51 518... Prikaži broj
- Telefon 2
- + 385 91 480 ... Prikaži broj
- Adresa
- Tizianova 8
- Rijeka, Hrvatska
Slične nekretnine
Rijeka, Gornja Drenova, zemljište 2.502m2
- 260.000€ 2502 m2
Gornja Drenova – Građevinsko zemljište za stambenu gradnju, 1250 m²
- 257.500€ 2500 m2
Rijeka, Gornja Drenova, građevinsko zemljište
- 224.000€ 5680 m2
Drenova - prodaja građevinskog zemljišta za izgradnju 16 stanova
- 301.000€ 1460 m2
Rijeka, Gornja Drenova, zemljište od 3875m2
- 216.000€ 3875 m2
GORNJA DRENOVA, GRAĐEVINSKO ZEMLJIŠTE ZA 16 STANOVA
- 305.000€ 1460 m2