Vodice - atraktivan dvosoban stan s terasom i vrtom, 500 m od mora
Vodice
240.000€
4 363 €/m2
Tip
Stan
Površina
55 m2
Struktura
3
Detalji
- Tip
- Stan
- Struktura
- 3
- Cijena
- 240.000€
- Površina
- 55 m2 (4 363 €/m2)
- Površina zemljišta
- 20
- Kat
- Prizemlje
- Grijanje
- Sustav grijanja, klimatizacije i ventilacije
- Udaljenost od mora
- 500m
- Garaža
- Da
- Parkirno mjesto
- Da
- Ažuriran
- 18.11.2025
- ID
- 95185
Opis
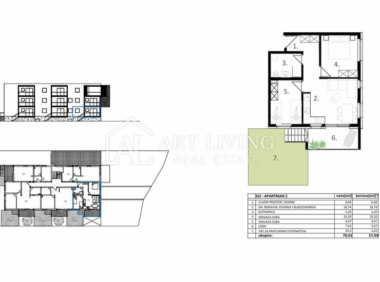
Na odličnoj lokaciji udaljenoj samo cca 500 metara od mora te 400 metara od trgovina i centra Vodica započela je izgradnja moderne i visokokvalitetne stambene zgrade s 14 stambenih jedinica koje su raspoređene na 3 etaže, prizemlje, 1. kat i 2. kat. U suterenu zgrade smještena su garažna mjesta dok se ispred zgrade nalaze otvorena parkirališta.
Stan SJ2, ukupne neto stambene površine 55,92 m2, smješten je u prizemlju stambeno poslovne zgrade. Sastoji se od ulaznog prostora, dnevnog boravka s kuhinjom i blagovaonicom, dvije spavaće sobe, kupaonice te loggie površine 7.56 m2
Stanu pripada i jedno garažno parkirno mjesto, jedno vanjsko parkirno mjesto te vlastiti vrt površine 20.20 m2
Svi stanovi će biti moderno i funkcionalno izgrađeni te opremljeni kvalitetnim sustavima za grijanje i hlađenje.
Nekretnina se nalazi na mirnoj lokaciji u blizini svih bitnih sadržaja te je idealna prilika za sve one koji traže modernu nekretninu pogodnu kako za stanovanje i odmor, tako i za iznajmljivanje u turističke svrhe.
Kupac je oslobođen plaćanja poreza na promet nekretninama.
Završetak radova se očekuje 06/2026. godine.
Poštovani klijenti, moguće je razgledati nekretninu isključivo uz potpisani ugovor o posredovanju koji je temelj za daljnje radnje vezane za kupoprodaju i naplatu provizije, a sve sukladno Zakonu o posredovanju u prometu nekretnina.
Agencija „ART LIVING REAL ESTATE“ kao ovlašteni posrednik u prometu nekretninama, za uslug
Slične nekretnine
ŠIBENIK, VODICE - Stan S6 u novogradnji
- 240.000€ 99 m2
ŠIBENIK, VODICE - Stan S4 u novogradnji
- 240.000€ 99 m2
Dalmacija, Vodice, 2s+db, 79.76m2, pogled na more
- 240.000€ 79 m2
VODICE, NOVOGRADNJA ODLIČAN 2S + DB STAN
- 240.000€ 65 m2
VODICE- STAN NA PRVOM KATU NOVOGRADNJE- 65.04M2- S2
- 240.000€ 65 m2
ŠIBENIK, VODICE - Trosobni stan S2 u novogradnji
- 241.000€ 94 m2
VODICE, STAN NA DRUGOM KATU S POGLEDOM NA MORE, S5
- 238.623€ 69 m2
ŠIBENIK, VODICE - Stan S3 u novogradnji s pogledom na more
- 242.000€ 69 m2
VODICE, STAN NA DRUGOM KATU S POGLEDOM NA MORE, S6
- 237.105€ 68 m2
VODICE, STAN S POGLEDOM NA MORE, PRVI KAT, S3
- 236.352€ 71 m2
VODICE, NOVOGRADNJA ODLIČAN 2S + DB STAN
- 245.000€ 67 m2
VODICE- MODERAN STAN U PRIZEMLJU S DVORIŠTEM- 67.89M2- S1
- 245.000€ 67 m2