Vodice - moderan stan s terasom i vrtom na odličnoj lokaciji
Vodice
210.000€
3 818 €/m2
Tip
Stan
Površina
55 m2
Struktura
2
Detalji
- Tip
- Stan
- Struktura
- 2
- Cijena
- 210.000€
- Površina
- 55 m2 (3 818 €/m2)
- Površina zemljišta
- 20
- Kat
- Prizemlje
- Grijanje
- Sustav grijanja, klimatizacije i ventilacije
- Udaljenost od mora
- 500m
- Parkirno mjesto
- Da
- Ažuriran
- 14.11.2025
- ID
- 95184
Opis
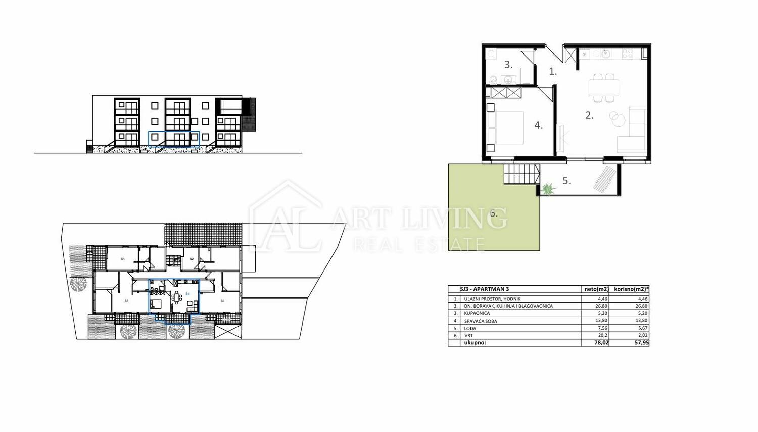
Na odličnoj lokaciji udaljenoj samo cca 500 metara od mora te 400 metara od trgovina i centra Vodica započela je izgradnja moderne i visokokvalitetne stambene zgrade s 14 stambenih jedinica koje su raspoređene na 3 etaže, prizemlje, 1. kat i 2. kat. U suterenu zgrade smještena su garažna mjesta dok se ispred zgrade nalaze otvorena parkirališta.
Stan SJ3, ukupne neto stambene površine 55,93 m2, smješten je u prizemlju stambeno poslovne zgrade. Sastoji se od ulaznog prostora, dnevnog boravka s kuhinjom i blagovaonicom, spavaće sobe, kupaonice te loggie površine 7.56 m2
Stanu pripada i jedno vanjsko parkirno mjesto te vlastiti vrt površine 20.20 m2
Svi stanovi će biti moderno i funkcionalno izgrađeni te opremljeni kvalitetnim sustavima za grijanje i hlađenje.
Nekretnina se nalazi na mirnoj lokaciji u blizini svih bitnih sadržaja te je idealna prilika za sve one koji traže modernu nekretninu pogodnu kako za stanovanje i odmor, tako i za iznajmljivanje u turističke svrhe.
Kupac je oslobođen plaćanja poreza na promet nekretninama.
Završetak radova se očekuje 06/2026. godine.
Poštovani klijenti, moguće je razgledati nekretninu isključivo uz potpisani ugovor o posredovanju koji je temelj za daljnje radnje vezane za kupoprodaju i naplatu provizije, a sve sukladno Zakonu o posredovanju u prometu nekretnina.
Agencija „ART LIVING REAL ESTATE“ kao ovlašteni posrednik u prometu nekretninama, za uslugu posredovanja naplaćuje posredničku
Slične nekretnine
VODICE, NOVOGRADNJA ODLIČAN 1S + DB STAN
- 205.000€ 54 m2
VODICE- STAN U PRIZEMLJU S DVORIŠTEM- NOVOGRADNJA- 54M2- S1
- 205.000€ 54 m2
ŠIBENIK, VODICE - Stan S4 u novogradnji na odličnoj lokaciji
- 216.664€ 81 m2
VODICE, S4, UPRAVO ZAVRŠEN STAN, PRVI KAT S POGLEDOM NA MORE
- 217.000€ 81 m2
ŠIBENIK, VODICE - Stan S6 u novogradnji na odličnoj lokaciji
- 220.000€ 82 m2
VODICE, S1 U PRIZEMLJU, NOVOGRADNJA
- 200.000€ 64 m2
VODICE - dvoetažni stan, 105 m2 s panoramskim pogledom na otoke!
- 199.000€ 105 m2
ŠIBENIK, VODICE - Stan S2 u novogradnji s pogledom na more
- 222.500€ 63 m2
VODICE- MODERNI STANOVI U MIRNOM DIJELU PO POVOLJNOJ CIJENI
- 195.000€ 74 m2