ISTRA, PIĆAN - Novoizgrađena vila smještena u prirodnom okruženju
Pićan
487.000€
2 705 €/m2
Tip
Kuća
Površina
180 m2
Struktura
4
Detalji
- Tip
- Kuća
- Struktura
- 4
- Cijena
- 487.000€
- Površina
- 180 m2 (2 705 €/m2)
- Površina zemljišta
- 612
- Udaljenost od mora
- 17000m
- Parkirno mjesto
- Da
- Ažuriran
- 23.01.2026
- ID
- 66318
Opis
ISTRA, PIĆAN - Novoizgrađena vila smještena u prirodnom okruženju
Pićan je višestoljetni istarski gradić bogate materijalne i kulturne baštine. Mjesto je to na uzvisini s kojeg se sa svih strana pruža neodoljiv pogled na okolna mjesta, vinograde, maslinike i Učku. Pićan je poznat po prekrasnim vidikovcima i dobrom vinu te po mnogim poznatim legendama. Tu je izgrađen i zvonik, treći po veličini u Istri, visine 48 m. Poznate su pješačke staze svetoga Roka i staza svetog Šimuna te prekrasno izletište slap Sopot.
U pitomom okruženju nedaleko samog gradića, smjestila se ova moderna vila u izgradnji, koja obuhvaća 180 m2 stambenog prostora raspoređenog na dvije etaže. Ova nekretnina savršena je kombinacija suvremenog dizajna i udobnosti, pružajući idealan prostor za obitelji ili sve one koji traže mirno utočište blizu prirode.
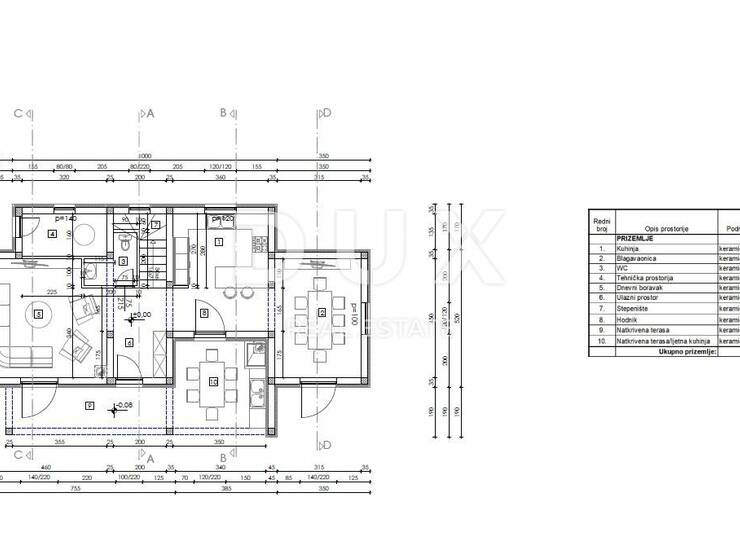
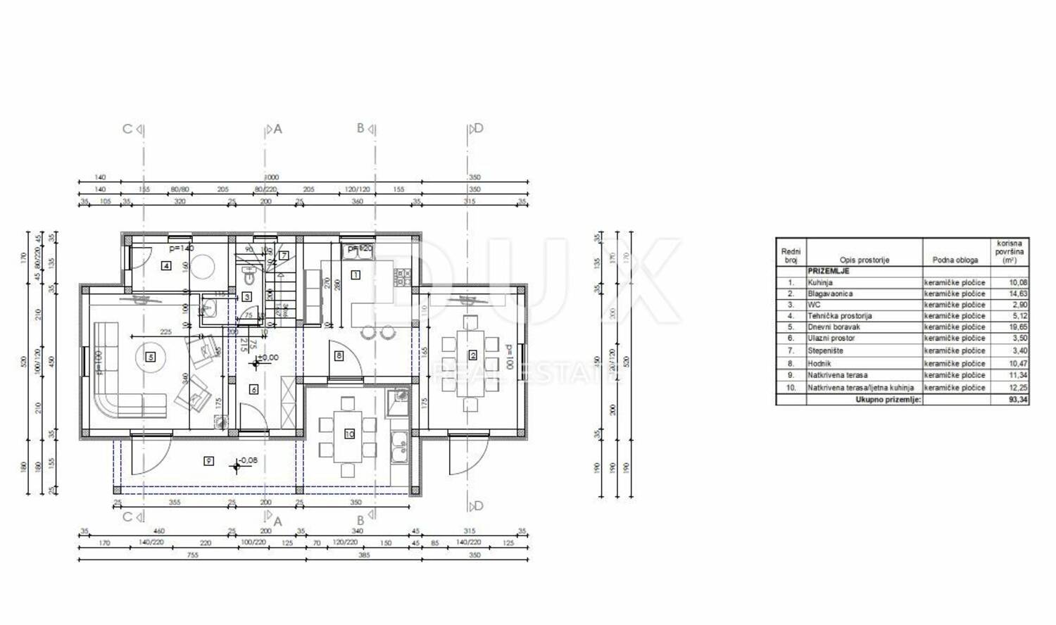
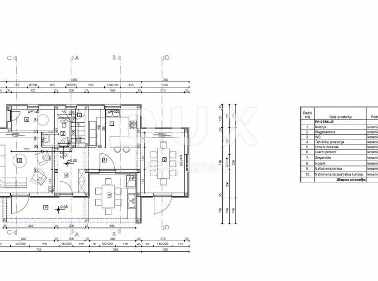
Prizemlje sa svojih 93,34 m2, nudi prostranu kuhinju, blagovaonicu i dnevni boravak, koji su savršeno povezani u jedan otvoreni "open space" prostor. Veliki prozori omogućuju obilje prirodne svjetlosti i pružaju izravan izlaz na natkrivenu terasu, idealnu za uživanje na na svježem zraku uz cvrkute ptica.
Prizemlje također nudi ljetnu kuhinju u kojoj možete pripremiti svoje najdraže delicije, zatim tehničku sobu te WC za goste.
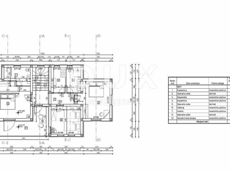
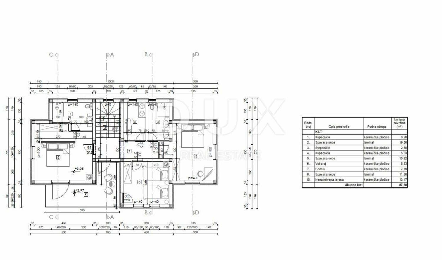
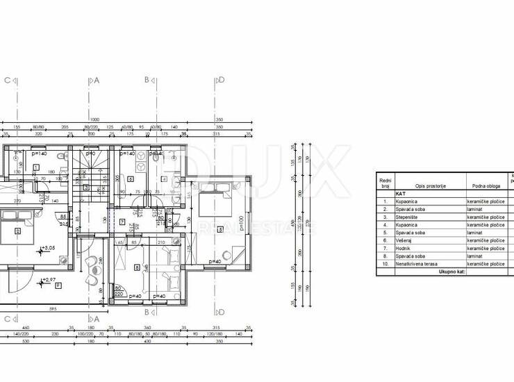
Unutarnje stepenice vode na gornju etažu površine 87,68 m2, gdje se nalaze tri komforne spavaće sobe. Master spavaća soba sadrži vlastitu kupaonicu, pružajući privatnost i udobn
Kontakt info
- Agencija
-
DUX NEKRETNINE
- Kontakt osoba
- Dux Nekretnine
- Telefon 1
- + 385 51 518... Prikaži broj
- Telefon 2
- + 385 91 480 ... Prikaži broj
- Adresa
- Tizianova 8
- Rijeka, Hrvatska
Slične nekretnine
ISTRA, LABIN, KUĆA ZA ODMOR S BAZENOM I DVA STANA
- 495.000€ 158 m2
ISTRA, PIĆAN OKOLICA, RENOVIRANA ISTARSKA KUĆA S BAZENOM
- 495.000€ 158 m2
PIĆAN, KUĆA S BAZENOM NA MIRNOJ LOKACIJI, NOVOGRADNJA
- 470.000€ 181 m2
Središnja Istra, kuća s bazenom
- 470.000€ 181 m2
ISTRA, PIĆAN - Vila s bazenom u novogradnji
- 415.000€ 132 m2
PIĆAN, KATNICA S BAZENOM NA MIRNOJ LOKACIJI, NOVOGRADNJA
- 400.000€ 154 m2
Središnja Istra, atraktivna vila u idiličnom okruženju
- 400.000€ 120 m2
Pićan, villa s pogledom
- 390.000€ 143 m2
ISTRA, PIĆAN - Prostrano imanje sa starinom za adaptaciju
- 360.000€ 258 m2
ISTRA, PIĆAN - Moderna vila s bazenom u mirnom selu
- 353.000€ 102 m2