ISTRA, POREČ - Luksuzan stan u novogradnji, blizina mora
Poreč
355.000€
3 622 €/m2
Tip
Stan
Površina
98 m2
Struktura
4
Detalji
- Tip
- Stan
- Struktura
- 4
- Cijena
- 355.000€
- Površina
- 98 m2 (3 622 €/m2)
- Površina zemljišta
- 84
- Kat
- Prizemlje
- Grijanje
- Podno grijanje/Dizalica topline
- Terasa
- Da
- Udaljenost od mora
- 1200m
- Parkirno mjesto
- Da
- Ažuriran
- 09.10.2025
- ID
- 84725
Opis
ISTRA, POREČ - Luksuzan stan u novogradnji, blizina mora
Grad Poreč, jedan od najljepših bisera Jadranskog mora, smjestio se na zapadnoj obali Istre. Na relativno malom poluotočnom prostoru na kojemu je grad iznikao i danas su jasno vidljivi tragovi susreta slavenskog, romanskog i germanskog svijeta, koji ujedno svjedoče o mnogobrojnosti promjena – političkih, društvenih i etničkih – što ih je ovaj istarski gradić doživio u povijesti. Povijest Poreča povijest je stalnih promjena, kretanja i previranja, nestalnosti naroda, uzleta i padova, u kojoj se kao konstanta javlja povijest novih početaka. Ovaj grad neprestano otkriva tragove života mnogih civilizacija i kultura koje su izgradile njegov urbani i povijesni identitet.
Smješten na odličnoj i mirnoj lokaciji u Poreču, ovaj prekrasan stan nudi idealnu kombinaciju udobnosti i praktičnosti. Na samo nekoliko minuta udaljenosti do mora i prvih plaža, te s brzim pristupom centru grada i svim potrebnim sadržajima (restorani, trgovine, škola, vrtić), ovaj stan predstavlja savršen dom za opuštanje i uživanje u mediteranskom načinu života.
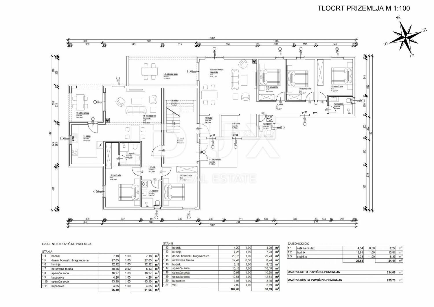
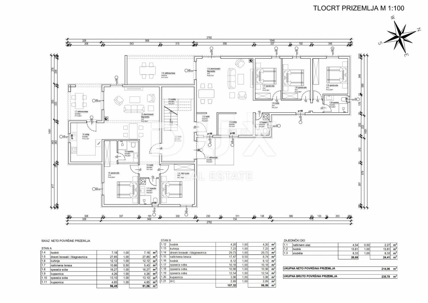
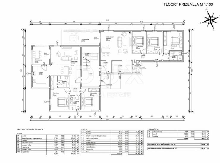
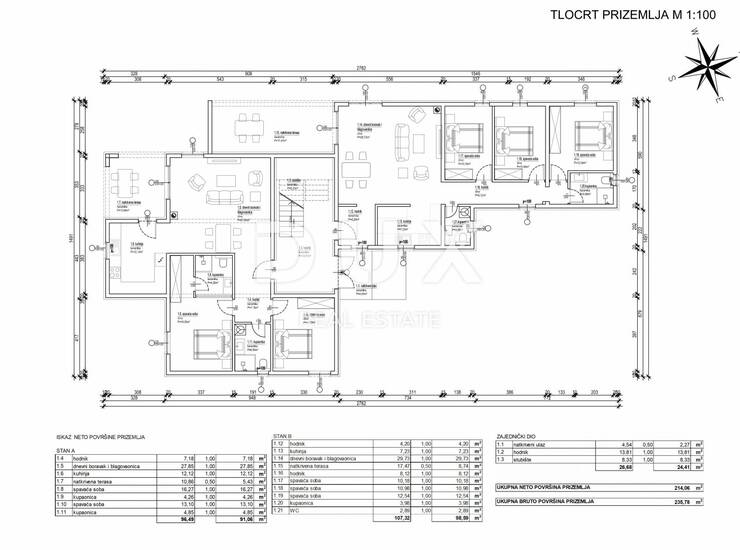
Stan se nalazi u manjoj stambenoj zgradi koja se sastoji od samo pet stambenih jedinica, što pruža dodatnu privatnost i osjećaj ekskluzivnosti.
Stan B, smješten u prizemlju, prostire se na ukupnoj površini od 98,59 m2. Sastoji se od hodnika, wc-a za goste, kupaone, tri spavaće sobe, kuhinje te dnevnog boravka s blagovaonom. Iz dnevnog boravka vodi i
Kontakt info

- Agencija
-
DUX NEKRETNINE
- Kontakt osoba
- Dux Nekretnine
- Telefon 1
- + 385 51 518... Prikaži broj
- Telefon 2
- + 385 91 480 ... Prikaži broj
- Adresa
- Tizianova 8
- Rijeka, Hrvatska
Slične nekretnine

ISTRA, POREČ - Luksuzan stan u prizemlju sa vrtom
- 355.000€ 85 m2

Istra, Poreč, 3s+db s okućnicom - novogradnja
- 355.000€ 75 m2

POREČ, PROSTRANI STAN U PRIZEMLJU S OKUĆNICOM
- 355.000€ 99 m2

POREČ, MODERAN STAN U PRIZEMLJU
- 355.000€ 75 m2

Poreč, trosoban stan u prizemlju sa vrtom u blizini mora!
- 355.000€ 111 m2

Poreč, stan na 1. katu novogradnje blizu mora
- 356.000€ 91 m2

Poreč - okolica, atraktivan stan 600 metar od mora s vrtom
- 356.800€ 94 m2