PULA, STAN NA 1.KATU - 51 m2 B
Šijana, Pula
210.000€
4 117 €/m2
Tip
Stan
Površina
51 m2
Struktura
3
Detalji
- Tip
- Stan
- Struktura
- 3
- Cijena
- 210.000€
- Površina
- 51 m2 (4 117 €/m2)
- Kat
- 1
- Parkirno mjesto
- Da
- Ažuriran
- 20.10.2025
- ID
- 93473
Opis
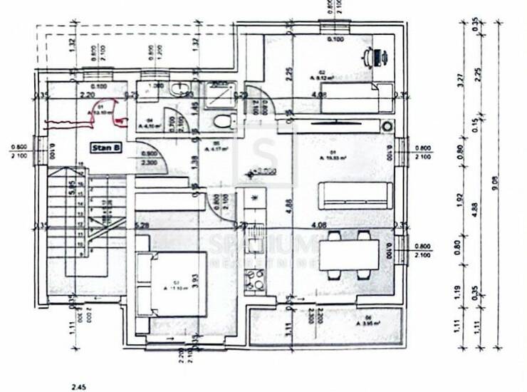
PULA, u ponudi imamo stan na 1. katu manje zgrade s ukupno tri stana.
Stan je ukupne neto površine od 51.39 m² sastoji se od:
- kuhinje s blagovaonicom i dnevnim boravkom (19.93 m²),
- spavaće sobe (9.12 m²),
- spavaće sobe (11.10 m2)
- kupaonice (4 m²),
- lođe 3.95 m2 x 0.75 (reducirane površine 2.97 m2)
- hodnika 4.17 m2
Stanu pripada jedno parkirno mjesto.
U izgradnji i opremanju koriste se kvalitetni materijali – električno podno grijanje, klima inverter, te PVC stolarija s dvoslojnim staklom osiguravaju ugodnu temperaturu i energetsku učinkovitost tijekom cijele godine.
Stan je u vlasništvu pravne osobe, što znači da kupac ne plaća porez na promet nekretnina.
Predviđeno useljenje je 1. rujna 2026. godine.
Pula je najveći istarski grad smješten na samom jugu poluotoka. Poznata je po svojoj dugoj povijesti, antičkim spomenicima poput rimskog amfiteatra – Arene, te po razvijenom turizmu, brodogradnji i sve većem broju novih stambenih projekata. Grad nudi dobru infrastrukturu, razne sadržaje i ugodan život uz more.
Za dodatne informacije i razgled nekretnine obratite se s povjerenjem:
Verona Plejić
asistent u posredovanju
+ 385 95 394 ... Prikaži broj
verona@spatium.hr
Roberta Poropat
agent s licencom
+ 385 95 528 ... Prikaži broj
roberta@spatium.hr
Spatium nekretnine
+ 385 51 272... Prikaži broj
info@spatium.hr
ID KOD AGENCIJE: 6528
Roberta Poropat
Agent s licencom
Mob: + 385 95 528 ... Prikaži broj
Tel: + 385 51 272... Prikaži broj
E-mail: roberta@spatium.hr
www.spatium.hr
Verona Pleji
Kontakt info

- Agencija
-
Spatium Nekretnine
- Kontakt osoba
- Vedran Prica
- Telefon 1
- + 385 51 272... Prikaži broj
- Telefon 2
- + 385 95 812 ... Prikaži broj
- Adresa
- Šetalište Andrije Kačića Miošića 5
- Rijeka Centar
- Rijeka, Hrvatska
Slične nekretnine

Istra, Pula, 59.69m2, lijep stan s lođom
- 215.000€ 59 m2

ISTRA, PULA - Stan 97m2. Blizina mora!
- 219.000€ 97 m2

ISTRA, PULA - Dvosobni stan 69 m2 na odličnoj lokaciji!
- 200.000€ 69 m2

Istra, Pula - Šijana, 69.01m2, 2s+db, lođa + balkon
- 200.000€ 69 m2

PULA, STAN NA 2.KATU - 55 m2 C
- 220.000€ 55 m2

PULA, STAN U PRIZEMLJU SA BAZENOM - 44 m2 A
- 220.000€ 44 m2

Stan s prostranim vrtom u okolici Pule, novogradnja!
- 196.000€ 67 m2

Pula, Monte Turco - Stan S2, 54m2, 1 parking, 100m2 vrt
- 224.900€ 54 m2

ISTRA, PULA - Stan 3SS+DB, 80 m2 u Šijani
- 228.000€ 80 m2

ISTRA, PULA 2S+DB stan u Šijani 69 m2 - ODLIČNA POZICIJA!!
- 187.000€ 69 m2