Tar, novoizgrađeni stan u prizemlju sa vrtom
Tar, Tar-Vabriga
267.000€
3 513 €/m2
Tip
Stan
Površina
76 m2
Struktura
3
Detalji
- Tip
- Stan
- Struktura
- 3
- Cijena
- 267.000€
- Površina
- 76 m2 (3 513 €/m2)
- Površina zemljišta
- 80
- Kat
- Prizemlje
- Grijanje
- Sustav grijanja, klimatizacije i ventilacije
- Terasa
- Da
- Udaljenost od mora
- 2000m
- Parkirno mjesto
- Da
- Ažuriran
- 23.04.2026
- ID
- 75078
Opis
Istra, Tar
Prodaje se novoizgrađeni stan u prizemlju sa vrtom u Taru.
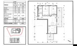
Stan se nalazi u prizemlju novoizgrađene stambene zgrade sa 11 stambenih jedinica. Površina stana iznosi 76.27 m2. Stan se sastoji od dnevnog boravka sa kuhinjom i blagovaonicom open space koncepta, 2 spavaće sobe, 2 kupaonice, ulaznog prostora i natkrivene terase. Na terasu se dolazi iz kuhinje. Sa terase se izlazi na ograđeni vrt površine 80 m2.
Stan se grije putem podnog grijanja na struju, a završena je i prva faza za ugradnju klima uređaja. Stan se prodaje u fazi ključ u ruke (završeni podovi i sanitarije, bez namještaja). U izgradnji su korišteni kvalitetni materijali, a stolarija je troslojna PVC.
Zgrada u kojoj se stan nalazi ima lift.
Stanu pripadaju 2 parkirna mjesta koja se nalaze odmah pored same zgrade.
Planirani završetak gradnje je ljeto 2025.godine.
Iskazana cijena je cijena s PDV-om.
Stan se nalazi na traženoj lokaciji u Taru. Stan je udaljen svega nekoliko minuta vožnje od lijepih plaža i centra Poreča. U neposrednoj blizini stana se nalaze trgovine, restorani, kafići, trgovina, park, igralište, šetnice, biciklističke staze, škola, vrtić, banka, pošta i razni drugi sadržaji.
S obzirom da se radi o novoizgrađenom prostranom stanu sa vlastitim vrtom, stan je idealan za cjelogodišnje stanovanje, ali i za odmor i turističke svrhe.
ID KOD AGENCIJE: 463
SPECTRUM REAL ESTATE
Mob: + 385 91 955 ... Prikaži broj
E-mail: info@spectrum-realestate.eu
www.spectrum-realestate.eu
Kontakt info
- Agencija
-
SPECTRUM REAL ESTATE
- Reg. posrednika br.
- 75/2024
- Kontakt osoba
- Davide Malinarich
- Telefon 1
- 091955... Prikaži broj
- Adresa
- Ulica rijeke Dragonje 7
- Novigrad, Hrvatska
Slične nekretnine
Tar, novoizgrađeni stan u prizemlju sa vrtom
- 266.000€ 75 m2
Vabriga, novogradnja, stan na 1.katu
- 277.460€ 68 m2
ISTRA, TAR - Gospodski stan u blizini svih sadržaja
- 255.000€ 105 m2
Tar, prostrani stan sa vrtom
- 255.000€ 104 m2
Poreč, Tar - prodaja stana sa 2 terase i 2 parkinga
- 253.000€ 104 m2
Tar - kvalitetni stan u vrhunskoj novogradnji
- 281.000€ 93 m2
Tar, uređeni stan sa pogledom na more
- 250.000€ 58 m2
Tar, moderan stan sa pogledom na more
- 250.000€ 63 m2
Tar, renovirani stan na traženoj lokaciji
- 250.000€ 57 m2
Tar - kvalitetni stan u vrhunskoj novogradnji
- 284.000€ 94 m2
Tar - kvalitetni stan u vrhunskoj novogradnji
- 284.000€ 94 m2