Trosoban dvoetažni stan u Vodicama sa velikom terasom
Vodice
286.392€
2 406 €/m2
Tip
Stan
Površina
119 m2
Struktura
4
Detalji
- Tip
- Stan
- Struktura
- 4
- Cijena
- 286.392€
- Površina
- 119 m2 (2 406 €/m2)
- Kat
- 1
- Terasa
- Da
- Parkirno mjesto
- Da
- Ažuriran
- 20.10.2025
- ID
- 70403
Opis
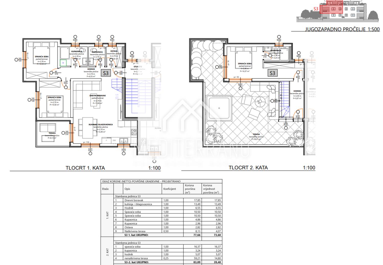
Trosoban stan na prodaju u Vodicama, na top lokaciji u mirnom dijelu grada.
Stan se nalazi u maloj stambenoj zgradi od svega 4 stana, a prostire se na dvije etaže.
Na prvoj etaži, na prvom katu zgrade nalazi se:
- dnevni boravak
- kuhinja s blagovaonicom
- hodnik
- 2 spavaće sobe
- 2 kupaonice
- ostava
- natkrivena terasa od 8 m2
Na drugoj etaži, na drugom (zadnjem) katu zgrade nalazi se:
- spavaća soba
- kupaonica
- hodnik
- prostrana terasa od 60 m2
Stanu pripadaju i 2 parkirna mjesta.
oprema u stanu:
- podno grijanje
- kvalitetna PVC stolarija
- rolete s električnim podizačima
- kvalitetna keramika
- podizna klizna stijenka za povezivanje vanjskog i unutarnjeg prostora
Zgrada se očekuje da će biti gotova do ljeta 2025-e godine.
Za više info, slobodno nas kontaktirajte!
ID KOD AGENCIJE: 62
Pavla Škugor
Agent s licencom
Mob: + 385 99 412 ... Prikaži broj
Tel: + 385 99 412 ... Prikaži broj
E-mail: pavla@mediterrano-agency.com
www.mediterrano-agency.com
Kontakt info
- Agencija
-
Mediterrano nekretnine
- Reg. posrednika br.
- 69/2024
- Kontakt osoba
- Pavla Škugor
- Telefon 1
- + 385 99 412 ... Prikaži broj
- Adresa
- fra Jerolima Milete 6
- Šibenik, Hrvatska
Slične nekretnine
ŠIBENIK, VODICE - Stan u novogradnji s krovnom terasom S3
- 286.416€ 119 m2
VODICE, S1, STAN U PRIZEMLJU
- 284.164€ 74 m2
Dalmacija, Vodice, moderna novogradnja, 2s+db
- 284.164€ 74 m2
ŠIBENIK, VODICE - Stan S5 u novogradnji na odličnoj lokaciji
- 289.830€ 96 m2
VODICE, S4 NA PRVOM KATU S POGLEDOM NA MORE
- 282.500€ 81 m2
VODICE, NOVOGRADNJA ODLIČAN 1S + DB APARTMAN
- 282.000€ 76 m2
Dvosoban apartman u prizemlju s dvorištem, novogradnja
- 282.000€ 76 m2
ŠIBENIK, VODICE - Stan S1 u novogradnji na odličnoj lokaciji
- 294.750€ 98 m2
ŠIBENIK, VODICE - Dvoetažni stan S3 na mirnoj lokaciji
- 295.000€ 112 m2
VODICE, S3, DVOETAŽNI STAN, NOVOGRADNJA
- 295.000€ 112 m2
ŠIBENIK, VODICE - Stan S3 u novogradnji na odličnoj lokaciji
- 275.670€ 91 m2