Ičići okolica, vila sa bazenom i prekrasnim pogledom, u izgradnji
Ičići, Opatija
1.020.000€
2 451 €/m2
Tip
Kuća
Površina
416 m2
Struktura
5+
Detalji
- Tip
- Kuća
- Struktura
- 5+
- Cijena
- 1.020.000€
- Površina
- 416 m2 (2 451 €/m2)
- Ažuriran
- 05.10.2025
- ID
- 81872
Opis
Prodaje se vila s bazenom na prekrasnoj lokaciji s otvorenim pogledom na prirodu i more, udaljena samo 900 m zračne linije od mora.
Budući da nema drugih nekretnina ispred, kao niti mogućnosti gradnje oko ovog terena, pogled će i ostati tako krasan.
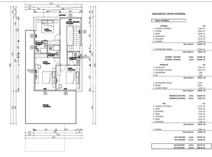
PROJEKT ZA KUĆU:
- Zemljište ima građevinsku dozvolu i projekt za modernu kuću
- Prema projektu kuća ima 416,70 m2
- Sastoji se od suterena, prizemlja i 1.kata
- Suteren: fitness, wellness, soba s kupaonicom, natkrivena terasa, tehnička soba
- Prizemlje: ulazni hodnik, WC, garderoba, zatim veliki otvoreni prostor u kojem se nalaze kuhinja, blagovaonica i dnevni boravak (65 m2) s
izlazom na natkrivenu terasu (42 m2), ispred koje se nalazi bazen (19 m2)
- 1. kat: 3 spavaće sobe s vlastitim kupaonicama
- Spavaće sobe su veličine 12-17 m2
- Detalji oko grijanja, stolarije i izgleda kuće, kao i eventualne izmjene rasporeda dogovarat će se s kupcem
OKUĆNICA:
- Parcela 650 m2
- Sa zemljišta se pruža predivan otvoreni i nesmetani pogled na more i Kvarner, koji ostaje jer nema mogućnosti gradnje oko ovog projekta
- Zračna udaljenost od mora 900 m
- Udaljenost od mora - pješice 1100 m
- Udaljenost od mora - autom 2600 m
Vila još nije izgrađena i za sada se može graditi prema sugestijama kupca, što otvara brojne mogućnosti i za udovoljenje željama kupca. Nakon ljeta se svakako počinje sa gradnjom, a ova cijena vrijedi za način plaćanja po fazama radova.
Poštovani kl
Kontakt info

- Agencija
-
Inspire
- Reg. posrednika br.
- 11/2025
- Kontakt osoba
- Ana Baumgarten
- Telefon 1
- 00385 95 587 ... Prikaži broj
- Adresa
- Berte Jardas 34
- Zamet
- Rijeka, Hrvatska