ISTRA, POREČ - Luksuzan stan u prizemlju sa vrtom
Poreč
355.000€
4 176 €/m2
Tip
Stan
Površina
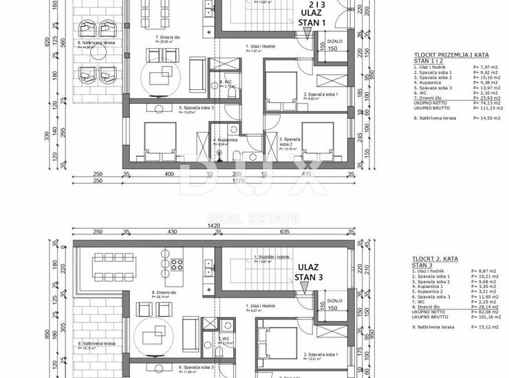
85 m2
Struktura
4
Detalji
- Tip
- Stan
- Struktura
- 4
- Cijena
- 355.000€
- Površina
- 85 m2 (4 176 €/m2)
- Kat
- Prizemlje
- Grijanje
- Podno grijanje
- Terasa
- Da
- Udaljenost od mora
- 1300m
- Parkirno mjesto
- Da
- Ažuriran
- 07.12.2025
- ID
- 48906
Opis
ISTRA, POREČ - Luksuzan stan u prizemlju sa vrtom
Okupan ugodnom mediteranskom klimom, smješten u srcu zapadne istarske obale, antički gradić Poreč i njegovo priobalje sačuvanih prirodnih ljepota, uređenih parkova, borovih i hrastovih šumaraka koji sežu do samoga mora, duž kojeg se izmjenjuju čisto more, plaže, zaljevi i otoci rasprostire se na području od 139 km² a sastoji se od 58 naselja. S identitetom urbanog primorskog grada, Poreč je grad kulture, sporta, zabave, grad turizma i istinske gostoljubivost. Jedan od najatraktivnijih gradova hrvatskog turizma koji na jedinstven način spaja prirodne ljepote Istre, bogato kulturno-povijesno naslijeđe i najmodernjie pogodnosti vrhunske turističke destinacije. Sklad starogradske jezgre koja je spomenik kulture s jednim od najpoznatijih istarskih kulturnih spomenika, Eufrazijevom bazilikom koja se nalazi na UNESCO-voj listi svjetske baštine i najuređenijih i najbolje opremljenih turističkih naselja na Jadranu formira mozaik nezaboravnih iskustava.
Poreč je i grad koji je mnogo više od ljetne destinacije sunca i mora. Poreč je grad po mjeri čovjeka. Grad u kojem postoji stalni impuls da uvjeti života budu bolji, a napredak u raznim sferama veći. Grad koji je ugodno, sigurno i kvalitetno uređeno mjesto za život gdje svatko može pronaći svoje mjesto, grad bez prireza s visokom socijalnom osjetljivošću za sve generacije.
U modernoj zgradi na svega 1000 m od mora prodaje se ovaj prekrasan st
Kontakt info
- Agencija
-
DUX NEKRETNINE
- Kontakt osoba
- Dux Nekretnine
- Telefon 1
- + 385 51 518... Prikaži broj
- Telefon 2
- + 385 91 480 ... Prikaži broj
- Adresa
- Tizianova 8
- Rijeka, Hrvatska
Slične nekretnine
Istra, Poreč, 3s+db s okućnicom - novogradnja
- 355.000€ 75 m2
ISTRA, POREČ - Luksuzan stan u novogradnji, blizina mora
- 355.000€ 98 m2
Poreč, trosoban stan u prizemlju sa vrtom u blizini mora!
- 355.000€ 111 m2
POREČ, PROSTRANI STAN U PRIZEMLJU S OKUĆNICOM
- 355.000€ 99 m2
POREČ, MODERAN STAN U PRIZEMLJU
- 355.000€ 75 m2
Poreč, stan na 1. katu novogradnje blizu mora
- 356.000€ 91 m2
Poreč - okolica, atraktivan stan 600 metar od mora s vrtom
- 356.800€ 94 m2