ISTRA, BARBARIGA - 2SS+DB luksuzni stan na prizemlju nadomak plaža
Barbariga, Vodnjan
290.000€
2 589 €/m2
Tip
Stan
Površina
112 m2
Struktura
3
Detalji
- Tip
- Stan
- Struktura
- 3
- Cijena
- 290.000€
- Površina
- 112 m2 (2 589 €/m2)
- Kat
- Prizemlje
- Grijanje
- Podno grijanje
- Terasa
- Da
- Udaljenost od mora
- 350m
- Ažuriran
- 23.04.2026
- ID
- 106896
Opis
ISTRA, BARBARIGA – Luksuzan stan na prizemlju novogradnje, nadomak plaža
Na iznimnoj lokaciji u mirnom i sve traženijem dijelu Istre, u naselju Barbariga, smjestio se ovaj ekskluzivan stan, koji predstavlja savršen spoj suvremenog dizajna, komfora i jedinstvenog mediteranskog okruženja.
Riječ je o nekretnini koja već na prvi pogled osvaja svojom pozicijom, otvorenim pogledima i osjećajem privatnosti, a zahvaljujući blizini mora i prirode nudi idealno mjesto za život, odmor ili investiciju visoke vrijednosti.
OPIS STANA – suvremena arhitektura i maksimalan komfor
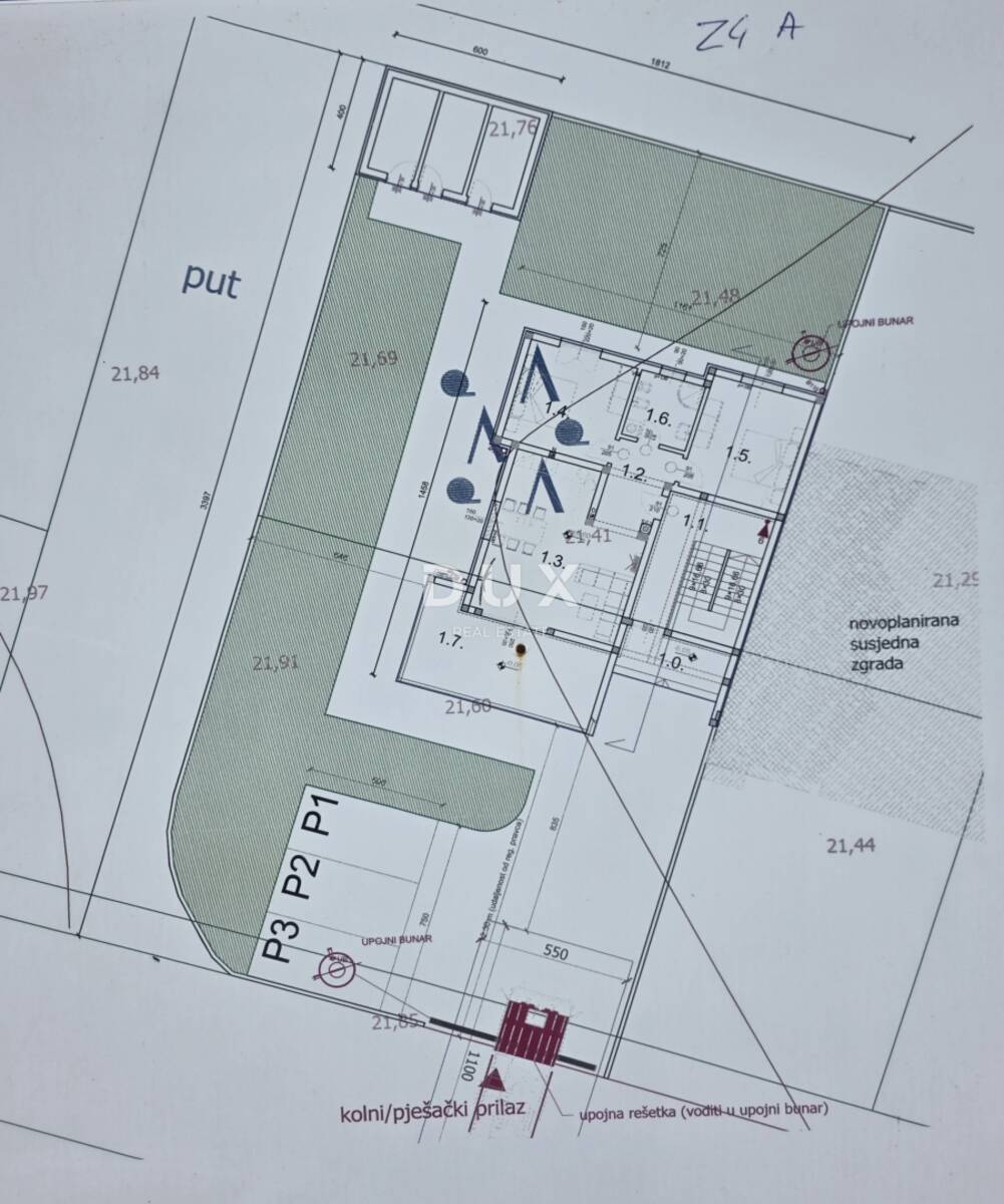
Stan ukupne stambene površine 112,13 m2 smješten je na prizemlju moderne novogradnje koja je trenutačno u fazi izgradnje, s planiranim završetkom radova u lipnju 2027. godine.
Ulazom u stan dolazi se u prostrano predvorje s predviđenim prostorom za garderobu, koje uvodi u centralni dio stana – elegantno osmišljen dnevni prostor u open space konceptu.
Dnevni boravak, blagovaonica i kuhinja čine skladnu cjelinu ispunjenu prirodnim svjetlom, dok velike staklene stijene omogućuju izravan izlaz na natkrivenu terasu.
Terasa predstavlja pravu oazu ovog stana – s nje se pruža neometani pristup privatnoj okućnici stana od cca 40m2, stvarajući jedinstven ambijent za opuštanje i uživanje u svakom trenutku dana.
Stan dodatno raspolaže s:
* dvije prostrane i svijetle spavaće sobe
* moderno dizajniranom kupaonicom
DODATNE INFORMACIJE – kvaliteta gradnje i suvremena oprema
* proda
Kontakt info
- Agencija
-
DUX NEKRETNINE
- Kontakt osoba
- Dux Nekretnine
- Telefon 1
- + 385 51 518... Prikaži broj
- Telefon 2
- + 385 91 480 ... Prikaži broj
- Adresa
- Tizianova 8
- Rijeka, Hrvatska
Slične nekretnine
ISTRA, BARBARIGA - Apartman 80m2, dvije stambene jedinice!
- 280.000€ 80 m2
ISTRA, BARBARIGA - 2SS+DB luksuzni stan na 1.katu nadomak plaža
- 300.000€ 113 m2
Barbariga, dvije etaže u nizu s pogledom na more
- 364.000€ 100 m2
BARBARIGA, VODNJAN, APARTMAN S TRI ZASEBNE STAMBENE JEDINICE
- 365.000€ 138 m2
ISTRA, BARBARIGA – Prodaja apartmana s terasom
- 185.500€ 45 m2
Istra, Barbariga, 40m2, garsonijera, balkon, parkirno mjesto
- 161.000€ 40 m2
ISTRA, BARBARIGA - Dvoetažni stan s pogledom na more!
- 157.000€ 41 m2