Građevinsko zemljište u Vrbniku s pogledom na more!
Vrbnik
250.000€
488 €/m2
Tip
Zemljiste
Površina
512 m2
Detalji
- Tip
- Zemljiste
- Cijena
- 250.000€
- Površina
- 512 m2 (488 €/m2)
- Udaljenost od mora
- 350m
- Ažuriran
- 06.03.2026
- ID
- 97239
Opis
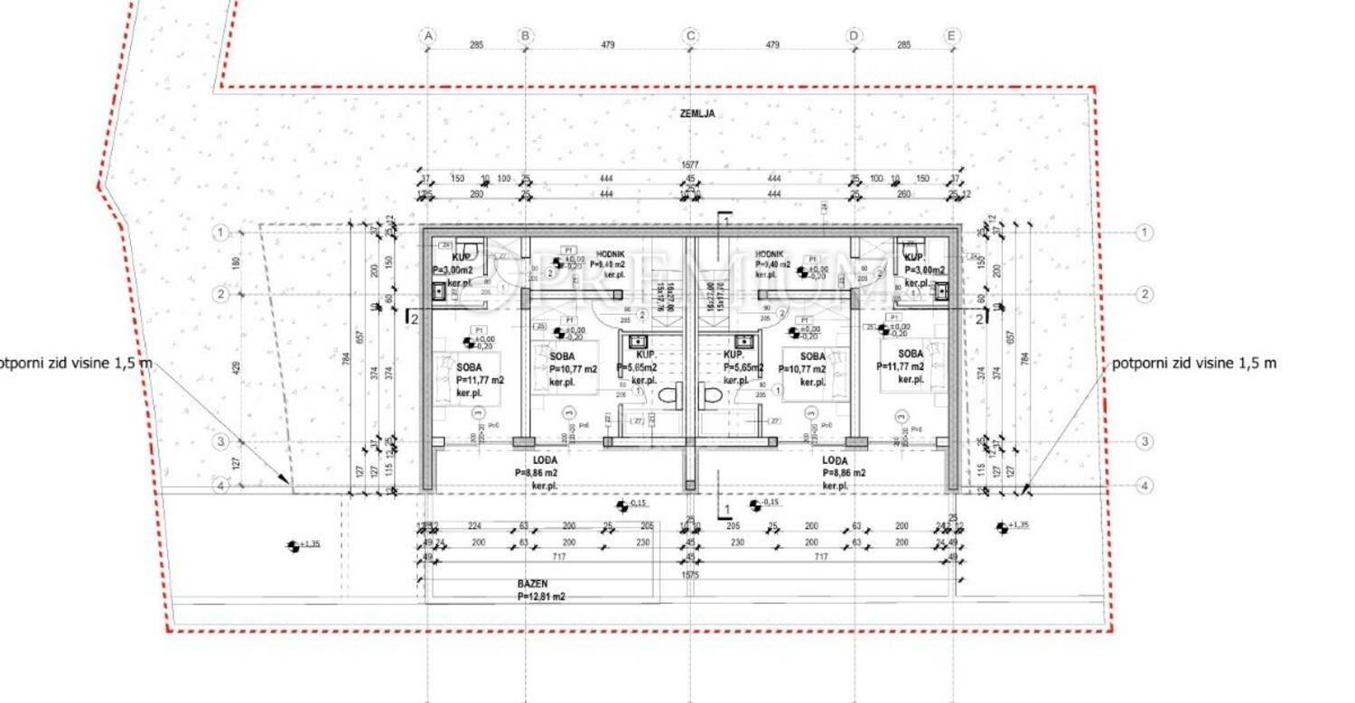
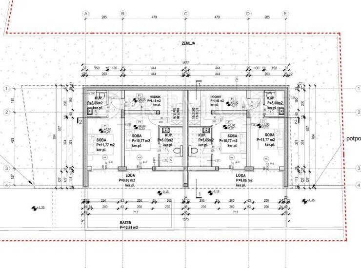
Prodaje se građevinsko zemljište u Vrbniku na otoku Krku, smješteno oko 350 metara od mora. Parcela je pravilnog oblika, što omogućuje jednostavno planiranje budućeg objekta. Lokacija je mirna i ugodna, u blizini plaže i svih potrebnih sadržaja, što je čini idealnom za gradnju obiteljske kuće ili kuće za odmor.
Pokrenut je postupak ishođenja građevinske dozvole na temelju glavnog projekta, koji predviđa izgradnju samostojeće kuće s dvije stambene jedinice, od kojih svaka ima predviđen vlastiti bazen. Komunalna infrastruktura nalazi se u neposrednoj blizini, a pogled na more pruža dodatnu vrijednost i poseban ugođaj.
Riječ je o parceli s odličnim potencijalom, pogodnoj za vlastitu upotrebu ili investiciju.
ID KOD AGENCIJE: 4573
Premium nekretnine Malinska
Mob: + 38591547... Prikaži broj
Tel: + 3855185... Prikaži broj
E-mail: info@premium-nekretnine.com
Kontakt info
- Agencija
-
Premium Nekretnine
- Kontakt osoba
- Premium Nekretnine
- Telefon 1
- + 385 91 5474... Prikaži broj
- Telefon 2
- + 385 51 858... Prikaži broj
- Dubašljanska 76
- Krk, Hrvatska
Slične nekretnine
Vrbnik, građevinsko zemljište sa projektom
- 258.000€ 646 m2
Vrbnik
- 267.000€ 1231 m2
KRK, VRBNIK, ZEMLJIŠTE S ISHODOVANOM GRAĐEVINSKOM DOZVOLOM
- 220.000€ 877 m2
Vrbnik, okolica, građevinsko zemljište s glavnim projektom!
- 180.000€ 846 m2
VRBNIK, GRAĐEVINSKI TEREN OD 1037 m2
- 320.000€ 1037 m2
Zemljište s građevinskom dozvolom
- 169.000€ 990 m2
Otok Krk, Vrbnik, građevinsko zemljište, 655m2
- 169.000€ 655 m2
Okolica Vrbnika, građevinski teren na mirnoj lokaciji!
- 332.000€ 4145 m2
Građevinsko zemljište s pogledom na more
- 335.000€ 1603 m2
OTOK KRK, VRBNIK - Savršeno građevinsko zemljište - 200m od mora
- 160.000€ 537 m2