OPATIJA, IČIĆI - građevinsko zemljište 1400m2 S LOKACIJSKOM DOZVOLOM!! i s
Ičići, Opatija
550.000€
392 €/m2
Tip
Zemljiste
Površina
1400 m2
Detalji
- Tip
- Zemljiste
- Cijena
- 550.000€
- Površina
- 1400 m2 (392 €/m2)
- Ažuriran
- 09.12.2025
- ID
- 89269
Opis
OPATIJA, IČIĆI - građevinsko zemljište 1400m2 S LOKACIJSKOM DOZVOLOM!! I s pogledom na more za stambenu zgradu–stanove /apartmane
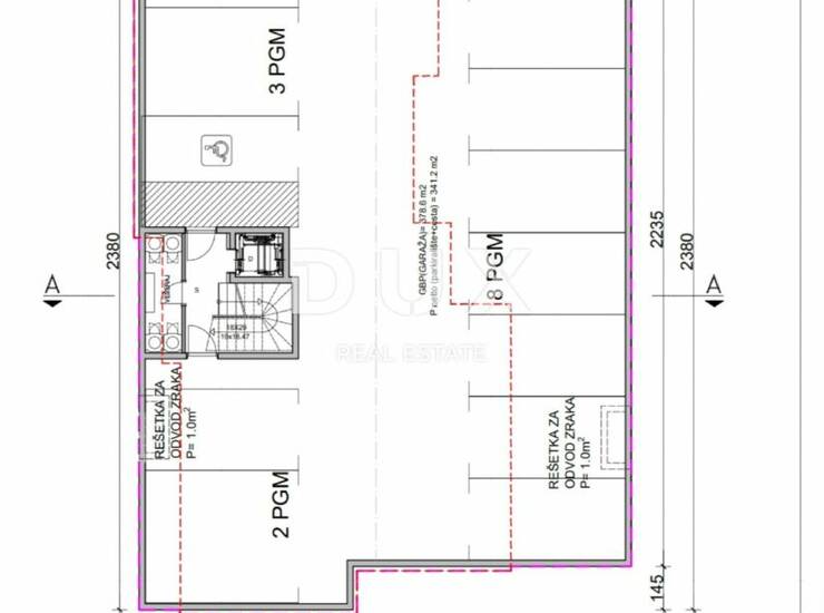
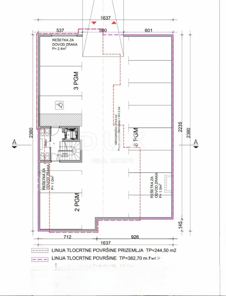
Zemljište ima shodovanu je lokacijsku dozvolu za objekt od 1131m2 (BRP) + bazen.
Lokacijska dozvola je dobivena za zgradu koja se sastoji od (po projektu koji je na slikama):
-PODRUM ukupne površine 381m2 – garažni prostor s parking mjestima + prostor za spremnike + wellnes (ili neki drugi sadržaj po želji potencijalnog kupca)
-PRIZEMLJE- ukupne površine 250m2 – 3 stana (dva stana 1S+DB i jedan stan 2S+DB)
- 1.KAT ukupne površine 250m2 – 2 stana – (dva stana 3S+DB)
- 2.KAT ukupne površine 250m2 – 1 penthouse (3S+DB)
Građevinsko zemljište je udaljeno 700 m zračne linije od mora, ima pogled na more i južnu orijentaciju.
Teren je konfiguracijski potpuno ravan.
Teren se nalazi na tihoj i mirnoj poziciji i odmah do asfaltiranog puta.
Sve komunalije do terena.
Čisto i uredno vlasništvo.
Teren je očišćen i spreman za gradnju.
Buduće izgrađena nekretnina na ovoj parceli bi imala pogled na more čak iz prizemlja, ali s prve etaže pružao bi se panoramski otvoreni pogled na more, cijeli Kvarnerski zaljev i otoke.
Građevinsko zemljište je na pravnu osobu (firmu) koja je otvorena samo za ovaj projekt, tako da postoji i opcija da se kupi cijala firma zajedno s zemljištem.
Ova nekretnina je udaljena 700m zračne linije od mora, odnosno 1,6km automobilom (cca 4 min).
Dobra prilika za investitore koji
Kontakt info
- Agencija
-
DUX NEKRETNINE
- Kontakt osoba
- Dux Nekretnine
- Telefon 1
- + 385 51 518... Prikaži broj
- Telefon 2
- + 385 91 480 ... Prikaži broj
- Adresa
- Tizianova 8
- Rijeka, Hrvatska
Slične nekretnine
TEREN POLJANE ZAPOČETA GRADNJA
- 515.000€ 800 m2
Opatija, Ičići, 3565m2, građevinsko zemljište
- 420.000€ 3565 m2
Opatija, Ičići, građevinsko zemljište 649m2, pogled na more
- 353.000€ 649 m2
Ičići, građevinski teren s pogledom
- 310.000€ 771 m2
Oglas
- 300.000€ 1368 m2