PULA, DVOSOBAN STAN A15 NA 1. KATU 86.50 m2
Pula
270.000€
3 139 €/m2
Tip
Stan
Površina
86 m2
Struktura
3
Detalji
- Tip
- Stan
- Struktura
- 3
- Cijena
- 270.000€
- Površina
- 86 m2 (3 139 €/m2)
- Kat
- 1
- Grijanje
- Sustav grijanja, klimatizacije i ventilacije
- Udaljenost od mora
- 850m
- Garaža
- Da
- Parkirno mjesto
- Da
- Ažuriran
- 20.04.2026
- ID
- 88644
Opis
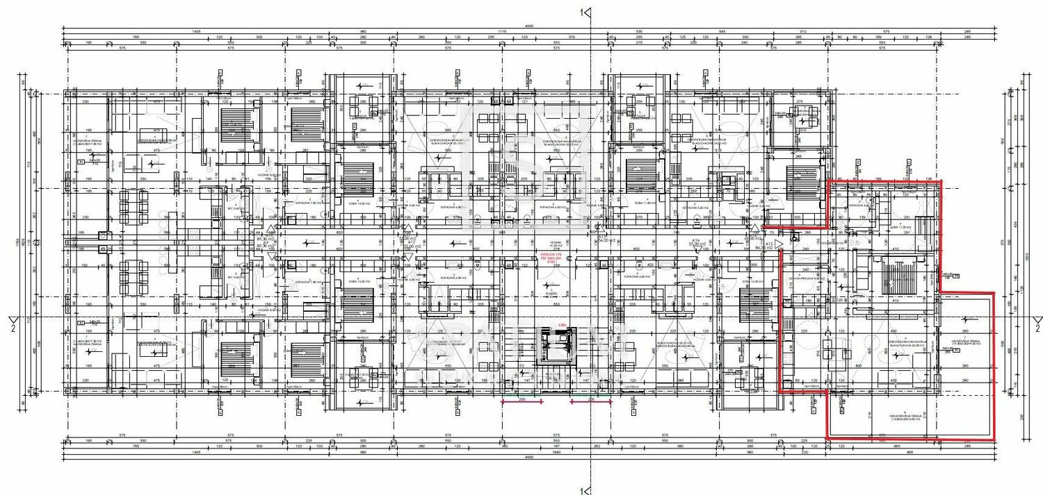
PULA, u ponudi imamo stan na 1. katu stambene zgrade s četiri nadzemne i dvije podzemne etaže smještena je na mirnoj lokaciji u blizini svih potrebnih sadržaja – škole, vrtića, restorana, benzinske postaje i ambulante. Udaljena je samo 4 km od jedne od najatraktivnijih plaža u okolici.
Zgrada sadrži ukupno 36 stambenih jedinica, a u podzemnim etažama nalaze se garaže na dvije razine, dok je izvan objekta osigurano dodatnih 11 parkirnih mjesta. Parkirna mjesta se naplaćuju posebno, a ovisno o veličini stana, stanu pripada jedno ili dva parkirna mjesta. Garaže su izvedene s industrijskim podom, a pristup svim etažama omogućen je liftom.
Stanovi su opremljeni električnim podnim grijanjem u svim prostorijama, klima uređajem inverter tipa (3 kW u manjim, 5 kW u većim stanovima) te opcijom ugradnje kamina ili peći na kruta goriva. Stolarija je PVC na prozorima i aluminijska na kliznim stijenama s troslojnim staklima. Na terasama su postavljene dvostruke staklene ograde.
Podne i zidne obloge čini talijanska keramika, a sanitarna oprema uključuje Dolomite elemente, Tece vodokotliće i Grohe slavine. Toplinska izolacija zgrade izvedena je sa 10 cm stiropora i mineralne vune.
Stanovi se prodaju nenamješteni, a planirani završetak gradnje je krajem 2025. godine.
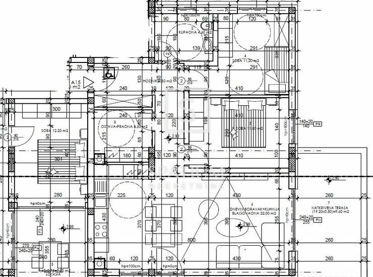
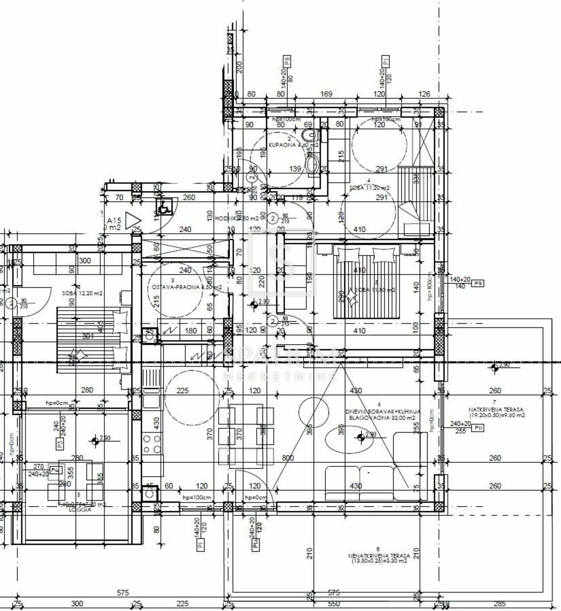
STAN na 1. katu sastoji se od:
- hodnik 9.50 m2
- kupaona 4.60 m2
- ostava - praona 4.50 m2
- spavaća soba 11.20 m2
- spavaća soba 11.80 m2
- dnevni boravak, blagovaona i kuhinja 32.00 m
Kontakt info
- Agencija
-
Spatium Nekretnine
- Kontakt osoba
- Vedran Prica
- Telefon 1
- + 385 51 272... Prikaži broj
- Telefon 2
- + 385 95 812 ... Prikaži broj
- Adresa
- Šetalište Andrije Kačića Miošića 5
- Rijeka Centar
- Rijeka, Hrvatska
Slične nekretnine
PULA, DVOSOBAN STAN A1 U PRIZEMLJU 89.30 m2
- 270.000€ 89 m2
PULA, DVOSOBAN STAN A2 U PRIZEMLJU 89.30 m2
- 270.000€ 89 m2
Dvosoban stan s okućnicom u blizini centra – top lokacija
- 271.530€ 64 m2
Istra, Pula - prodaja stana, balkon, drvarnica, 71m2!
- 278.100€ 71 m2
Veli Vrh – dvosoban stan s pogledom prema Brijunima
- 261.000€ 66 m2
Pula, trosoban stan u modernoj novogradnji!
- 279.400€ 87 m2
PULA, DVOSOBAN STAN A31 NA 3. KATU 81.40 m2
- 260.500€ 81 m2
Pula, Centar - prodaja stana, 62m2 u centru grada!
- 259.500€ 62 m2
PULA, TROSOBNI STAN
- 285.000€ 88 m2