VRBNIK, OTOK KRK, TEREN S GRAĐEVINSKOM DOZVOLOM
Vrbnik
420.000€
435 €/m2
Tip
Zemljiste
Površina
965 m2
Detalji
- Tip
- Zemljiste
- Cijena
- 420.000€
- Površina
- 965 m2 (435 €/m2)
- Udaljenost od mora
- 500m
- Ažuriran
- 15.10.2025
- ID
- 79511
Opis
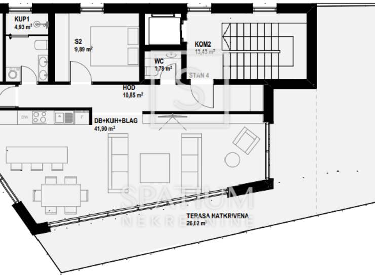
VRBNIK, OTOK KRK, u ponudi je građevinsko zemljište s pravomoćnom dozvolom za gradnju zgrade s garažom i četiri stana.
Odličan projekt predviđa podrumsku garažu za četiri automobila te četiri spremišta iz koje bi lift vodio na ostale etaže, dva stana u prizemlju i stan na katu s okućnicom i bazenima te drugi kat gdje je predviđen stan s terasom. Sveukupna je netto kvadratura 513,47 m2.
Izuzetno zanimljiva nekretnina zbog mogućnosti gradnje više stambenih jedinica.
Zemljište je smješteno na lijepoj, mirnoj lokaciji s koje se pruža pogled na more.
Stavka PDV-a nije uračunata u oglašenu cijenu.
Vrbnik će vas očarati svojom starogradskom jezgrom, povijesnom baštinom, zanimljivim plažama, okusima vina i izvornim krčkim jelima te jedinstvenim vidikovcima. Nalazi se na istočnoj obali otoka Krka u Kvarnerskom zaljevu. Pravi je izbor za sve znalce koji ne žele masovni turizam već su u potrazi za izvornim mediteranskim šarmom. Tko jednom doživi Vrbnik, uvijek se iznova u njega vraća.
Za ostale informacije obratite se s povjerenjem.
Azalea Kegalj
agent s licencom
+ 385 95 905 ... Prikaži broj
azalea@spatium.hr
Spatium nekretnine
+ 385 51 272... Prikaži broj
info@spatium.hr
ID KOD AGENCIJE: 5173
Azalea Kegalj
Agent s licencom
Mob: + 385 95 905 ... Prikaži broj
Tel: + 385 51 272... Prikaži broj
E-mail: azalea@spatium.hr
www.spatium.hr
Kontakt info
- Agencija
-
Spatium Nekretnine
- Kontakt osoba
- Vedran Prica
- Telefon 1
- + 385 51 272... Prikaži broj
- Telefon 2
- + 385 95 812 ... Prikaži broj
- Adresa
- Šetalište Andrije Kačića Miošića 5
- Rijeka Centar
- Rijeka, Hrvatska
Slične nekretnine
Vrbnik, zemljište s pravomoćnom građevinskom dozvolom!
- 420.000€ 965 m2
Zemljište s pogledom na more - otok Krk
- 465.000€ 4248 m2
Vrbnik, građevinsko zemljište s prekrasnim pogledom na more!
- 339.000€ 646 m2
Građevinsko zemljište s pogledom na more
- 335.000€ 1603 m2
Okolica Vrbnika, građevinski teren na mirnoj lokaciji!
- 332.000€ 4145 m2
Vrbnik, građevinsko zemljište 200 m od mora! Pogled na more!
- 320.000€ 1037 m2
VRBNIK, GRAĐEVINSKI TEREN OD 1037 m2
- 320.000€ 1037 m2
Vrbnik
- 267.000€ 1231 m2
Vrbnik, građevinsko zemljište sa projektom
- 258.000€ 646 m2
KRK, VRBNIK, ZEMLJIŠTE S ISHODOVANOM GRAĐEVINSKOM DOZVOLOM
- 220.000€ 877 m2