OPATIJA, CENTAR - luksuzan stan u novogradnji iznad centra Opatije
Opatija - Centar, Opatija
700.000€
7 692 €/m2
Tip
Stan
Površina
91 m2
Struktura
3
Grijanje
Sustav grijanja, klimatizacije i ventilacije
Detalji
- Tip
- Stan
- Struktura
- 3
- Cijena
- 700.000€
- Površina
- 91 m2 (7 692 €/m2)
- Kat
- 1
- Grijanje
- Sustav grijanja, klimatizacije i ventilacije
- Terasa
- Da
- Udaljenost od mora
- 250m
- Garaža
- Da
- Ažuriran
- 05.12.2025
- ID
- 67541
Opis
OPATIJA, CENTAR - luksuzan stan u novogradnji iznad centra Opatije
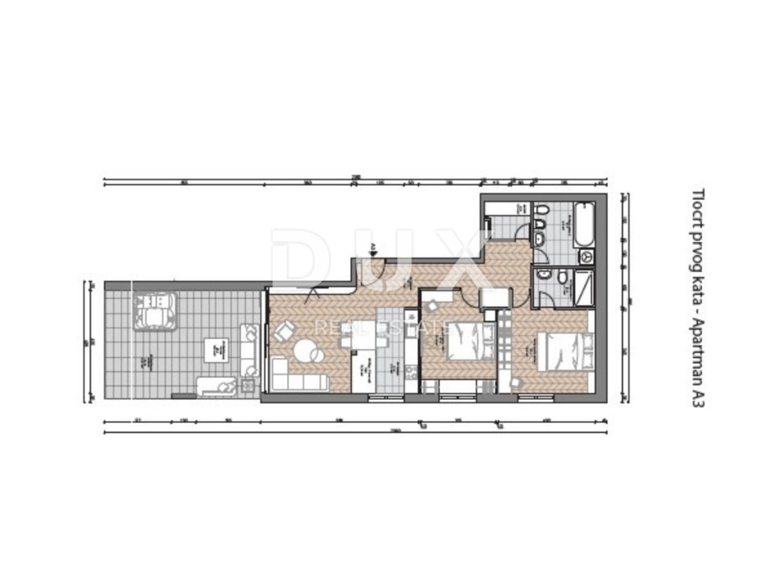
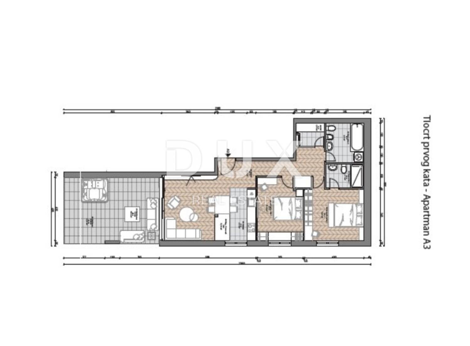
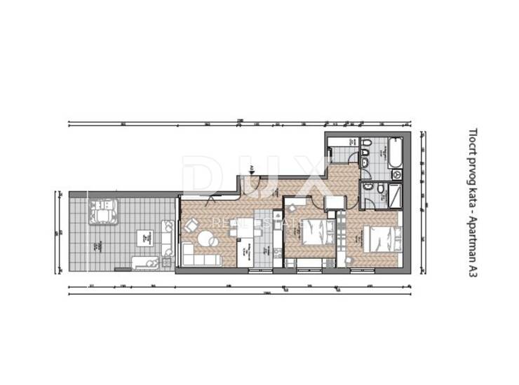
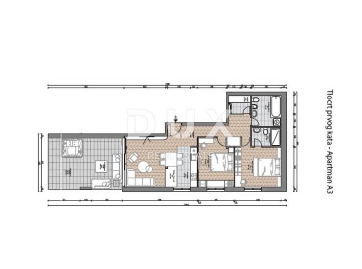
U ponudi je ekskluzivan stan A3 površine 91, 47 m2 na prvom katu novogradnje iznad centra Opatije, velikom terasom i garažom.
Stan se sastoji od dvije spavaće sobe s en suite kupaonicama, prekrasnim open space dnevnim boravkom, blagovaonicom i kuhinjom kvadrature 24,39 m2.
Veliki open space otvara se ka terasi od 16 m2 s jacuzzijem i vanjskim prostorom za druženje što omogućuje nevjerojatne mogućnosti za opuštanje na otvorenom.
Stan se nalazi u novogradnji od 10 stanova na odličnoj lokaciji - iznad centra Opatije te tako jamči odličan pristup svim popratnim sadržajima grada - šetnici Lungomare, plaži u centru, ljetnoj pozornici u Opatiji i kulturnom centru Gervais. Nalazi se na 250 metara zračne udaljenosti od mora.
Stanu pripada mjesto u garaži i spremište od 2 m2.
Savršena je ovo prilika za kupnju nekretnine u Opatiji, savršene za život, kao i turistički najam.
Poštovani klijenti, agencijska provizija se naplaćuje u skladu s Općim uvjetima poslovanja.
https://www.dux-nekretnine.hr/opci-uvjeti-poslovanja
ID KOD AGENCIJE: 29911
Marko Šutanovac
Agent s licencom
Mob: + 385 91 189 ... Prikaži broj
Tel: + 385 91 480 ... Prikaži broj
E-mail: marko@dux-nekretnine.hr
www.dux-opatija.com
Kontakt info
- Agencija
-
DUX NEKRETNINE
- Kontakt osoba
- Dux Nekretnine
- Telefon 1
- + 385 51 518... Prikaži broj
- Telefon 2
- + 385 91 480 ... Prikaži broj
- Adresa
- Tizianova 8
- Rijeka, Hrvatska
Slične nekretnine
Opatija - stan u urbanoj vili sa terasom!
- 700.000€ 170 m2
Opatija, luksuzan stan, 95.63m2, 2s+db, terasa
- 700.000€ 95 m2
Vrhunska novogradnja u samom centru Opatije
- 696.000€ 88 m2
Opatija, luksuzan stan, 96.86m2, 2s+db, terasa
- 695.000€ 96 m2
OPATIJA, ODLIČAN STAN U NOVOGRADNJI S POGLEDOM NA MORE
- 706.200€ 112 m2
Opatija, vrhunska novogradnja, 2s+db, pogled na more
- 691.300€ 109 m2